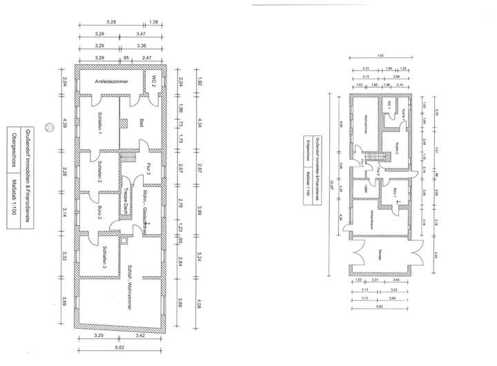
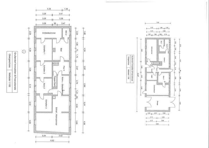
Zum Verkauf steht ein Wohnhaus im Fachwerkstil mit einer ehemaligen Gewerbeeinheit, einem Anbau und einer Scheune in zentraler Ortslage. Das Objekt bietet eine Vielzahl von Nutzungsmöglichkeiten. Hier kann z.B. das EG zu Wohnzwecken oder auch wie einst zu gewerblichen Zwecken genutzt werden. Im EG befinden sich ein Wohnraum, ein Büro, eine Küche, ein Bad, zwei Lagerräume und ein Verkaufsraum mit sep. Eingangsbereich. Das OG wird nur zu Wohnzwecken genutzt und verfügt über sechs Wohn-Schlafräume, ein Ankleidezimmer und ein Bad. Auf dem Dachboden ist ausreichend Abstellfläche vorhanden. Vom Flur im EG haben Sie einen Zugang zum überdachten Außensitzbereich. Von hier gelangen Sie auch in den Anbau mit Lager- und Wirtschaftsräumen, sowie in den Innenhof. Im rückliegenden Bereich des Wohnhauses sind weiterhin eine Scheune mit Stallungen, eine Garage und ein Gartengrundstück vorhanden. Am Wohnhaus befinden sich eine zweite Garage mit Zufahrt zum Innenhof und 2-6 KFZ-Außenstellplätze.
In zentraler Ortslage! Ehemaliges Wohn- und Geschäftshaus mit individuellen Nutzungsmöglichkeiten
38458 Velpke
Die vollständige Adresse der Immobilie erhalten Sie vom Anbieter.
Auf Karte anzeigen
Die vollständige Adresse der Immobilie erhalten Sie vom Anbieter.
Finanzierungszertifikat
In nur zwei Minuten zu Ihrem persönlichen Finanzierungszertifkat.
Infos
| Haustyp | Einfamilienhaus |
|---|---|
| Etagenzahl | 2 |
| Wohnfläche ca. | 196 m2 |
| Nutzfläche | 300 m2 |
| Grundstücksfläche | 1.136 m2 |
| Bezugsfrei ab | nach Vereinbarung |
| Zimmer | 8 |
| Schlafzimmer | 7 |
| Badezimmer | 2 |
| Garage/Stellplatz | Garage |
| Anzahl Garage/Stellplatz | 6 |
Kosten
| Kaufpreis |
119.000 € |
|---|---|
| Provision |
2,98% Käuferprovision: 2,98% v. KP, inkl. d. gesetzl. Mwst. 19%, fällig n. Unterz. eines notariellen KV, zahlbar v. Käufer! Verkäuferprovision: 2,98% v. KP, inkl. d. gesetzl. Mwst. 19%, fällig n. Unterz. eines notariellen KV, zahlbar v. Verkäufer! |
Finanzierungsrechner:
Kaufpreis:
600.000 €
Eigenkapital:
600.000 €
Monatliche Rate
0 €
Effektiver Jahreszins
0 %
Sollzinsbindung
10 Jahre
Bausubstanz & Energieausweis
| Baujahr | 1850 |
|---|---|
| Letzte Sanierung | 1990 |
| Objektzustand | Renovierungsbedürftig |
| Qualität der Austattung | Einfach |
| Heizungsart | Zentralheizung |
| Wesentliche Energieträger | Gas |
| Energieausweis | liegt vor |
| Energieausweistyp | Bedarfsausweis |
| Energieverbrauchskennwert | 280,1 kWh/(m²*a) |
| Energieeffizienzklasse | H |
280,1
kWh/(m²*a)
Energieeffizienzklasse H
- A+
- A
- B
- C
- D
- E
- F
- G
- H
- 0
- 25
- 50
- 75
- 100
- 125
- 150
- 175
- 200
- 225
- >250
Beschreibung des Objekts
Ausstattung
-Fachwerk
-Dacheindeckung Betondachziegel
-Kunststofffenster mit 2-fach Isolierverglasung
-manuelle Rollläden im EG und im OG
-Bodenbeläge: Fliesen, Teppich, Laminat, Parkett
-Bad im EG ist mit Dusche, WC und Waschbecken ausgestattet (innenliegend)
-Bad im OG ist mit Badewanne, WC und Waschtisch ausgestattet (innenliegend)
-Gas-Zentral-Heizung mit Flüssiggastank
-Teilkeller
-überdachter Außensitzbereich
-zwei Garagen, 2-6 KFZ-Außenstellplätze
-ausreichend Lager- und Wirtschaftsräume
Lage
Das EFH befindet sich in ruhiger und zentraler Wohnlage in Velpke. Velpke ist eine Gemeinde im Landkreis Helmstedt, in Niedersachen und liegt ca. 10 km östlich von Wolfsburg entfernt. Einkaufsmöglichkeiten, Ärzte, Schulen und Kitas sind vor Ort vorhanden und innerhalb weniger Minuten zu Fuß, mit dem Rad oder PKW erreichbar. Die Anbindung in die Innenstadt von Wolfsburg und zum VW-Werk wird durch öffentliche Verkehrsmittel sichergestellt.
Sonstige Angaben
Das Betreten des Grundstücks ist ohne vorherige Terminabsprache mit unserem Maklerbüro nicht gestattet!
Die Objektdaten wurden mit großer Sorgfalt zusammengestellt und basieren auf den Angaben der Verkäufer!
Für die Richtigkeit der im Exposé enthaltenen Angaben übernehmen wir keine Gewähr!
Von Grussendorf Immobilien & Finanzdienste werden keinerlei Zusicherungen über den Baulichen Zustand einer Immobilie gemacht!
Besuchen Sie unsere Homepage unter: www.grussendorfimmobilien.de
Adresse
38458 Velpke
Interessante Orte
Preis- und Lageinformationen
Preistrend für Bestandsimmobilien in Velpke
>