Diese Immobilie wurde ursprünglich im Jahr 1958 auf einem ca. 611 m² großen Grundstück errichtet und verfügt über ca. 76 m² Wohnfläche. Bei dem Grundstück handelt es sich um ein Erbbaurechtsgrundstück der Freien und Hansestadt Hamburg. Der Erbbaurechtsvertrag läuft noch bis September 2056 und der jährliche Erbbauzins beträgt 110,44 €.
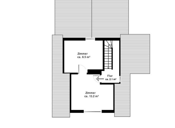
Sie betreten das Haus über einen Windfang und gelangen in den Flur. Von hier betreten Sie die Küche, welche Sie in das Wohn- und Esszimmer mit Ausgang auf die Terrasse führt. Das Schlafzimmer und das Badezimmer kompletteren das Raumangebot im Erdgeschoss. Über eine offene Holztreppe gelangen Sie ins Dachgeschoss. Hier bieten ein Zimmer und ein halbes Zimmer viele Gestaltungsmöglichkeiten. Rückwärtig auf dem Grundstück befindet sich ein großzügiger und massiver Abstell- oder Hobbyraum. Für Ihre Fahrräder und Gartengeräte steht im vorderen Bereich des Grundstückes ein Gartenhaus zur Verfügung. Für gemütliche Stunden lädt ein Gartenpavillon ein. Die Beheizung erfolgt über eine Gasheizung aus dem Jahr 2012.
Erbbaurecht auf sonnigem Grundstück
22043 Hamburg
Die vollständige Adresse der Immobilie erhalten Sie vom Anbieter.
Auf Karte anzeigen
Die vollständige Adresse der Immobilie erhalten Sie vom Anbieter.
Finanzierungszertifikat
In nur zwei Minuten zu Ihrem persönlichen Finanzierungszertifkat.
Infos
| Haustyp | Einfamilienhaus |
|---|---|
| Wohnfläche ca. | 76 m2 |
| Grundstücksfläche | 611 m2 |
| Bezugsfrei ab | nach Absprache |
| Zimmer | 4 |
| Badezimmer | 1 |
Kosten
| Kaufpreis |
249.000 € |
|---|---|
| Provision |
3,57 % inkl. MwSt. |
Finanzierungsrechner:
Kaufpreis:
600.000 €
Eigenkapital:
600.000 €
Monatliche Rate
0 €
Effektiver Jahreszins
0 %
Sollzinsbindung
10 Jahre
Bausubstanz & Energieausweis
| Baujahr | 1958 |
|---|---|
| Objektzustand | Gepflegt |
| Heizungsart | Zentralheizung |
| Wesentliche Energieträger | Gas |
| Energieausweis | liegt vor |
| Energieausweistyp | Bedarfsausweis |
| Energieverbrauchskennwert | 301,1 kWh/(m²*a) |
| Energieeffizienzklasse | H |
301,1
kWh/(m²*a)
Energieeffizienzklasse H
- A+
- A
- B
- C
- D
- E
- F
- G
- H
- 0
- 25
- 50
- 75
- 100
- 125
- 150
- 175
- 200
- 225
- >250
Beschreibung des Objekts
Ausstattung
Im Jahr 2012 wurde die Immobilie aufwendig renoviert. Sämtliche Fußbodenbeläge im Wohn- und Schlafzimmer erhielten Laminatböden.
Eine moderne und geschmackvolle Einbauküche mit allen erforderlichen Geräten und viel Stauraum bietet Entfaltungsmöglichkeiten für Kochliebhaber. Das Duschbad ist mit großformatigen Fliesen und einem Handtuchheizkörper ausgestattet und bietet Platz für Ihre Waschmaschine.
Ein Fenster sorgt für eine gute Be- und Entlüftung. Die Fenster sind isolierverglast und in Kunststoff gefasst. Der Garten ist pflegeleicht mit Rasen, Beeten und Hecken angelegt.
Lassen Sie sich bei einer Besichtigung von dem Potenzial dieses Hauses überzeugen.
Lage
Dieses Einfamilienhaus befindet sich in einer verkehrsberuhigten Straße in Hamburg-Jenfeld. Das grüne Wohngebiet grenzt an den Stadtteil Marienthal. Das Umfeld mit gepflegten Gärten und Häusern und verkehrsberuhigten Straßen bietet eine ideale Infrastruktur und eine hohe, familienfreundliche Wohnqualität. Schulen und Kindergärten gehören zum Einzugsgebiet von Marienthal und sind zu Fuß nur rund 10 bis 15 Minuten entfernt. Auch diverse Einkaufszentren wie z. B. das EKZ Tondo und das EKZ Wandsbeker Quarree, mit einem großen Wochenmarkt, sind bequem erreichbar. Verschiedene Buslinien bringen Sie in wenigen Minuten nach Wandsbek, Rahlstedt, Billstedt oder in die City. Direkt am EKZ Tondo befindet sich die Regionalbahn-Station „Tonndorf“, die Fahrzeit zum Hamburger Hauptbahnhof beträgt nur ca. 12 Minuten. Die Autobahn A24 in Richtung Berlin und Innenstadt sowie der Zubringer zur A1 Richtung Lübeck und Hannover sind ebenfalls schnell erreichbar. Das Jenfelder Moor beginnt in unmittelbarer Nähe und lädt zum Spazierengehen, Joggen und Radfahren ein. Mit dem Fahrrad erreicht man in weniger als 10 Minuten das Wandsbeker Gehölz oder den Wanderweg im Eichtalpark, der entlang der Wandse bis zur Alster führt.
Grundriss
Grundriss EG
>
>
Grundriss DG
>
>
Adresse
22043 Hamburg
Interessante Orte
Preis- und Lageinformationen
Preistrend für Bestandsimmobilien in Jenfeld