Willkommen in Ihrem Traumhaus – architektonisch wurde sehr viel Wert auf eine klare aber hochwertige Bauweise gelegt und gepaart mit einem luxuriösen und erstklassigen Komfort ausgestatteten Innenbereich.
Diese exklusive Immobilie, erbaut im Jahr 2018, erstreckt sich über eine großzügige Wohnfläche von insgesamt 428 m² auf einem Erbpachtgrundstück von 1031 m². Das Einfamilienhaus mit Einliegerwohnung präsentiert sich auf 4 Etagen, inklusive des Untergeschosses mit zusätzlichen 185 m² und bietet Ihnen ein Höchstmaß an Wohnqualität und Funktionalität.
Der Grundriss des Hauses wurde mit Bedacht entworfen und umfasst 4 Bäder für maximale Privatsphäre und Komfort. Eine besondere Attraktion ist der mögliche Wellnessbereich im Untergeschoss, der bereits teilweise als Wohnfläche ausgebaut wurde und Raum für Entspannung und Erholung bietet.
Das Anwesen besticht nicht nur durch seine inneren Werte, sondern auch durch die äußeren Vorzüge: Ein Bio-Schwimmteich lädt zum erfrischenden Baden in natürlicher Umgebung ein, während eine riesige Terrasse im Obergeschoss und eine Loggia im ausgebauten Dachgeschoss mit Nachmittags- und Abendsonne sowie Blick in Richtung Wald, einen idyllischen Rückzugsort im Freien bieten.
Die Immobilie verfügt über eine Garage mit 2 Sektionaltoren sowie 2 Freiplätze vor der Garage, mit ausreichend Platz für Fahrzeuge. Zusätzlich stehen Ihnen zahlreiche Räumlichkeiten im ausgebauten Untergeschoss zur Verfügung, die vielfältige Nutzungsmöglichkeiten bieten. Darunter ein Weinkeller, ein Wellnessraum für eine mögliche Sauna und weitere Hobbyräume.
Die hohen Decken von bis zu 2,70 m verleihen den Räumen ein großzügiges und luftiges Ambiente, während ein ausgebautes Dachstudio mit geringem Aufwand in eine weitere Wohnung umgewandelt werden kann, was zusätzliches Potenzial für individuelle Gestaltungsideen bietet.
Ein weiteres Highlight ist der liebevoll gestaltete Gartensitzplatz, der mit Mittagssonne zum Verweilen im Freien einlädt und den perfekten Rahmen für gesellige Stunden im Kreise Ihrer Familie und Freunde bildet.
Dieses außergewöhnliche Anwesen präsentiert ein Understatement mit luxuriösem Innenleben, das höchsten Wohnansprüchen gerecht wird und Ihnen ein Leben in Eleganz und Komfort bietet. Erfüllen Sie sich Ihren Wohntraum und lassen Sie sich von diesem exklusiven Angebot begeistern.
Wohnen mit allen Sinnen – Ihr Architektenhaus mit Gartenparadies und Naturteich
63263 Neu-Isenburg
Die vollständige Adresse der Immobilie erhalten Sie vom Anbieter.
Auf Karte anzeigen
Die vollständige Adresse der Immobilie erhalten Sie vom Anbieter.
Finanzierungszertifikat
In nur zwei Minuten zu Ihrem persönlichen Finanzierungszertifkat.
Infos
| Haustyp | Einfamilienhaus |
|---|---|
| Etagenzahl | 4 |
| Wohnfläche ca. | 430 m2 |
| Nutzfläche | 185 m2 |
| Grundstücksfläche | 1.031 m2 |
| Zimmer | 10 |
| Schlafzimmer | 7 |
| Badezimmer | 4 |
| Garage/Stellplatz | Garage |
| Anzahl Garage/Stellplatz | 1 |
Kosten
| Kaufpreis |
0 € |
|---|---|
| Provision |
3,57 % inkl. der gesetzl. MwSt., bezogen auf den beurkundeten Kaufpreis |
Finanzierungsrechner:
Kaufpreis:
600.000 €
Eigenkapital:
600.000 €
Monatliche Rate
0 €
Effektiver Jahreszins
0 %
Sollzinsbindung
10 Jahre
Bausubstanz & Energieausweis
| Baujahr | 2018 |
|---|---|
| Objektzustand | Neuwertig |
| Heizungsart | Fußbodenheizung |
| Wesentliche Energieträger | Erdgas leicht |
| Energieausweis | liegt vor |
| Energieausweistyp | Bedarfsausweis |
| Energieverbrauchskennwert | 14,7 kWh/(m²*a) |
| Energieeffizienzklasse | A+ |
14,7
kWh/(m²*a)
Energieeffizienzklasse A+
- A+
- A
- B
- C
- D
- E
- F
- G
- H
- 0
- 25
- 50
- 75
- 100
- 125
- 150
- 175
- 200
- 225
- >250
Beschreibung des Objekts
Ausstattung
* 10 Zimmer
* 8 Schlafzimmer
* 4 Badezimmer
* WC im Untergeschoss
* Räumlichkeiten im Untergeschoss inklusive Saunaraum mit Dusche, Weinkeller, Tageslicht-Hobbyraum
* Massive Bauweise
* Einliegerwohnung im Erdgeschoss
* rein mineralischer Außenputz
* Innenwände mit mineralischer Farbe
* Alle Badezimmer mit Sumpfkalk und fugenlosen Böden
* dreifachverglaste Fenster mit elektrischen Rollläden
* Smarthome
* KNX Verkabelung im gesamten Haus
* Verkabelung für Lautsprecherboxen
* Bewegungsmelder
* Alarmanlage vorbereitet
* Kamin im Wohnzimmer
* Echtholz-Dielenboden
* Fußbodenheizung
* Deckenhöhe bis 2,70 Meter
* große Sonnenterrasse im OG
* große Gartenterrasse
* Bio-Schwimmteich
* Loggia im ausgebauten Dachgeschoss
* Brennstoffzellen Heizsystem für Strom, Heizung und Warmwasser
* Garage mit 2 Sektionaltoren
* 2 PKW-Stellplätze vor der Garage
Lage
Die Immobilie befindet sich in einer der attraktivsten Wohngegenden von Neu-Isenburg, einer Stadt mit einer reichen Geschichte und einem modernen Lebensstil. Gelegen im Rhein-Main-Gebiet, zeichnet sich Neu-Isenburg durch seine hervorragende Anbindung an die Wirtschaftszentren Frankfurt am Main und Offenbach aus. Diese erstklassige Lage bietet sowohl eine optimale Erreichbarkeit der Metropolregion als auch eine ruhige, grüne Umgebung für Wohnkomfort auf höchstem Niveau.
Der Dr.-Eckener-Platz, benannt nach dem renommierten deutschen Luftschiffkapitän Hugo Eckener, ist ein Ort von besonderer Bedeutung und repräsentiert eine erstklassige Wohnadresse.
Die Nachbarschaft ist geprägt von einer harmonischen Mischung aus traditioneller Architektur und modernen Wohngebäuden, wodurch eine ansprechende und vielfältige Wohnatmosphäre entsteht. Die umliegenden Naturgebiete wie der nahegelegene Wald, der Langener Waldsee und der Walldorfer See bieten vielfältige Möglichkeiten zur Erholung und Entspannung im Freien.
Fußläufig erreichbar ist die Kindertagesstätte Zeppelinheim, die Hundertmorgen-Grundschule sowie Freizeiteinrichtungen wie Fussball- und Tennisplätze.
Zwei Restaurants befinden sich Vorort und alternativ bietet die Stadt Neu-Isenburg ein umfassendes internationales, kulinarisches Angebot und Einkaufsmöglichkeiten, wie z.B. das Isenburg-Zentrum.
Es bietet sich ebenfalls eine optimale Verkehrsanbindung an: Die Autobahnen A3, A5 und A661 sind in wenigen Minuten zu erreichen um eine schnelle und unkomplizierte Anbindung an die umliegenden Städte und den Flughafen Frankfurt zu gewährleisten. Darüber hinaus ist die Anbindung an das öffentliche Verkehrsnetz ausgezeichnet mit Bushaltestellen in unmittelbarer Nähe und dem Bahnhof Zeppelinheim in fußläufiger Entfernung von ca. 5 Minuten. Der Frankfurter Hauptbahnhof ist mit der S-Bahn S7 in ca. 13 Minuten schnell zu erreichen.
Insgesamt bietet die Lage eine einzigartige Kombination aus urbaner Lebensqualität, exzellenter Infrastruktur und naturnahem Wohnumfeld – ein idealer Ort, um Ihr neues Zuhause zu finden.
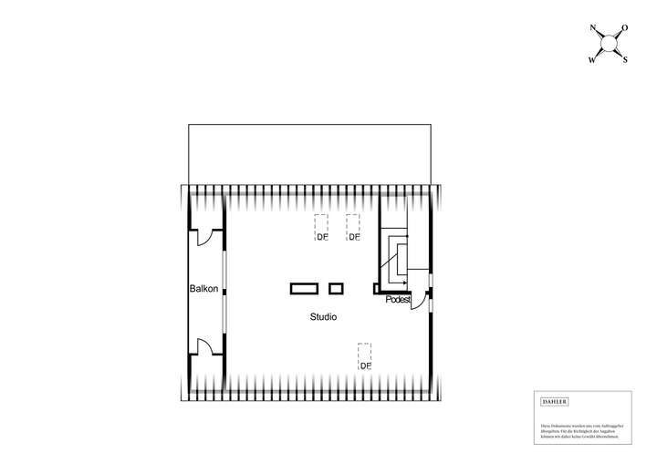
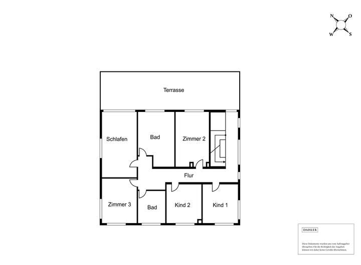
Grundriss
Erdgeschoss
>
>
Obergeschoss
>
>
Dachgeschoss
>
>
Untergeschoss
>
>
Adresse
63263 Neu-Isenburg
Interessante Orte
Preis- und Lageinformationen
Preistrend für Bestandsimmobilien in Neu-Isenburg