Willkommen in Ihrem neuen Zuhause! Dieses projektierte Einfamilienhaus erstreckt sich über zwei Etagen und bietet eine großzügige Wohnfläche von ca. 179,18 m² auf einem weitläufigen Grundstück von ca. 1.084 m². Die Immobilie besticht durch ihre Energieeffizienzklasse A und mit einer Frischluft Wärmetechnik Heizungsanlage inkl. Lüftungsanlage des Herstellers Proxon .
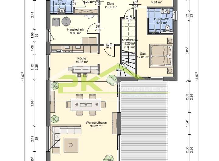
Mit insgesamt fünf Zimmern, darunter drei Schlafzimmer, einem Badezimmer und einem Dusch-WC, bietet dieses Haus ausreichend Platz für die ganze Familie. Die moderne Gestaltung der Räumlichkeiten sorgt für ein helles und freundliches Ambiente. Im Erdgeschoss erwartet Sie eine offene Küche mit angrenzendem Essbereich sowie ein geräumiges Wohnzimmer, das direkt auf die Terrasse führt – perfekt für entspannte Abende im Freien.
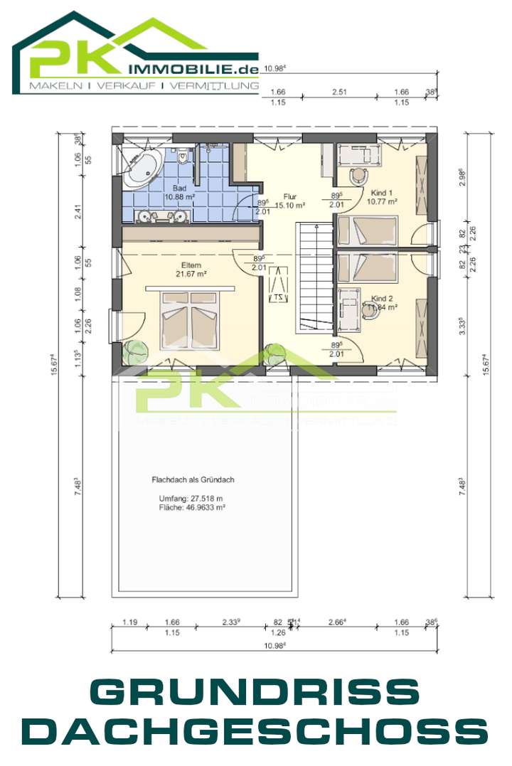
Das Obergeschoss beherbergt die Schlafzimmer und das Badezimmer, die alle mit hochwertigen Materialien ausgestattet sind, um höchsten Wohnkomfort zu gewährleisten.
Die Immobilie befindet sich in einer ruhigen, aber dennoch zentrumsnahen Lage, ideal für Familien. Einkaufsmöglichkeiten, Schulen und öffentliche Verkehrsmittel sind bequem erreichbar. Das große Grundstück bietet viel Raum für Entfaltung und Erholung.
Dieses Einfamilienhaus ist das perfekte Zuhause für anspruchsvolle Interessenten, die Wert auf Qualität und eine hochwertige Ausstattung legen. Das Einfamilienhaus ist wird mit einer Holzrahmenkonstruktion hergestellt.
Das Grundstück kann auf Wunsch vergrößert oder verkleinert werden.
Lassen Sie sich diese Gelegenheit nicht entgehen!
Neubau mit zentraler Lage
56412 Nentershausen
Die vollständige Adresse der Immobilie erhalten Sie vom Anbieter.
Auf Karte anzeigen
Die vollständige Adresse der Immobilie erhalten Sie vom Anbieter.
Finanzierungszertifikat
In nur zwei Minuten zu Ihrem persönlichen Finanzierungszertifkat.
Infos
| Haustyp | Einfamilienhaus |
|---|---|
| Etagenzahl | 2 |
| Wohnfläche ca. | 179 m2 |
| Grundstücksfläche | 1.084 m2 |
| Bezugsfrei ab | 2025 |
| Zimmer | 5 |
| Schlafzimmer | 3 |
| Badezimmer | 2 |
| Anzahl Garage/Stellplatz | 2 |
Kosten
| Kaufpreis |
732.400 € |
|---|---|
| Provision | Nein |
Finanzierungsrechner:
Kaufpreis:
600.000 €
Eigenkapital:
600.000 €
Monatliche Rate
0 €
Effektiver Jahreszins
0 %
Sollzinsbindung
10 Jahre
Bausubstanz & Energieausweis
| Baujahr | 2025 |
|---|---|
| Qualität der Austattung | Normal |
| Heizungsart | Wärmepumpe |
| Wesentliche Energieträger | Strom |
| Energieausweis | laut Gesetz nicht erforderlich |
Beschreibung des Objekts
Ausstattung
Innovative Heiz- und Lüftungstechnik für Ihr Zuhause
In Ihrem neuen Zuhause wird anstelle der herkömmlichen Heizungsanlage eine hochmoderne PROXON Frischluft-Wärmetechnik (FWT-Serie 2.0) mit Wärmerückgewinnung installiert. Diese fortschrittliche Lüftungsheizung kombiniert die Vorteile einer Wärmepumpe mit einer kontrollierten Wohnraumlüftung, um ein gesundes und behagliches Raumklima zu schaffen.
Die Lüftungsheizung reduziert effektiv die Staub-, Pollen- und Schadstoffbelastung in Ihrem Zuhause. Der zentrale Bestandteil dieser Anlage ist das Lüftungszentralgerät, das mit einem Zu- und Abluftventilator, einem Kreuzstrom-Wärmetauscher, Luftfiltern sowie einer Luft-Luft-Wärmepumpe ausgestattet ist.
Verbrauchte Luft aus Bad, Küche und WC wird durch den Abluftventilator abgesaugt und die Wärme über den Wärmetauscher an die Frischluftseite weitergegeben, bevor sie nach außen geleitet wird. Gleichzeitig saugt der Frischluftventilator gefilterte Frischluft von außen an, die im Wärmetauscher vorgewärmt und sanft sowie zugfrei in die Wohnräume verteilt wird.
In den Wohnräumen sind Zuluft-Auslässe und in Bädern, der Küche sowie im WC-Abluftauslässe gemäß Planvorgabe eingebaut. Die integrierten elektrischen Wärmeelemente in den Zuluftkanälen ermöglichen eine individuelle Anpassung der Raumtemperatur über Einzelraumthermostate.
Je nach Planung können in bestimmten Räumen wie dem Dusch-WC oder dem Badezimmer Elektroheizkörper zum Einsatz kommen, die im Leistungsumfang enthalten sind. Eine mikroprozessorgesteuerte zentrale Regelung am Bedienteil im Wohnbereich ermöglicht es Ihnen, die Anlage optimal an Ihre Bedürfnisse anzupassen.
Die Warmwasserbereitung erfolgt über eine an die Lüftungsheizung angeschlossene Trinkwarmwasser-Wärmepumpe mit einem Fassungsvermögen von 300 Litern und integriertem Elektroheizstab. Diese arbeitet unter optimalen ökologischen und ökonomischen Gesichtspunkten.
Erleben Sie höchsten Komfort und Effizienz mit dieser innovativen Heiz- und Lüftungslösung in Ihrem neuen Zuhause!
Lage
Nentershausen liegt im Westerwaldkreis in Rheinland-Pfalz und ist Teil der Verbandsgemeinde Montabaur. Die Region zeichnet sich durch ihre zentrale Lage zwischen den Ballungsräumen Rhein-Main und Köln/Bonn aus, was sie zu einem attraktiven Wohnort für Pendler macht. Die Nähe zur A3 und die gute Anbindung an das Schienennetz über den ICE-Bahnhof Montabaur ermöglichen eine schnelle Erreichbarkeit von Städten wie Frankfurt am Main, Wiesbaden und Köln.
Rheinland-Pfalz ist bekannt für seine landschaftliche Schönheit, geprägt von Wäldern, Hügeln und Flusstälern. Diese Umgebung bietet zahlreiche Freizeitmöglichkeiten wie Wandern, Radfahren und andere Outdoor-Aktivitäten. Zudem profitiert die Region von einer stabilen Wirtschaft mit einem Mix aus mittelständischen Unternehmen und Handwerksbetrieben.
Die Ortsgemeinde Nentershausen selbst bietet eine ruhige und familienfreundliche Wohnumgebung. Der Ort verfügt über grundlegende Infrastrukturen wie Kindergärten, Schulen, Einkaufsmöglichkeiten sowie medizinische Versorgungseinrichtungen. Das soziale Leben wird durch ein reges Vereinsleben bereichert, das den Bewohnern zahlreiche Möglichkeiten zur Freizeitgestaltung und zum sozialen Austausch bietet.
Nentershausen besticht durch seinen dörflichen Charme und die enge Gemeinschaft der Einwohner. Die umliegende Natur lädt zu Spaziergängen und Erholung im Grünen ein. Trotz der ländlichen Idylle sind alle wichtigen Einrichtungen des täglichen Bedarfs gut erreichbar, was Nentershausen zu einem idealen Wohnort für Familien und Naturliebhaber macht.
Insgesamt bietet Nentershausen eine hohe Lebensqualität mit einer harmonischen Balance zwischen Ruhe, Naturverbundenheit und guter Anbindung an größere Städte.
Sonstige Angaben
Alle Angaben sind nach bestem Wissen und Gewissen gemacht. Der Makler haftet nicht für Irrtümer oder Schriftfehler. Dieses Exposé ist eine Vorinformation, als Rechtsgrundlage gilt allein der notariell abgeschlossene Kaufvertrag.
Das Gebäude enthält Sonderausstattungen gegenüber der Leistungsbeschreibung. Die Sonderausstattungen sind nicht im Preis inbegriffen.
Grundriss
Grundriss EG_Bergstraße
>
>
Grundriss OG_Bergstraße
>
>
Adresse
56412 Nentershausen
Interessante Orte
Preis- und Lageinformationen
Preistrend für Bestandsimmobilien in Nentershausen