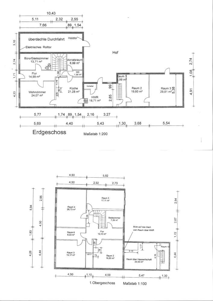
Zum Verkauf steht ein großzügiges Wohnhaus mit einer guten Raumaufteilung auf einem Eigentumsgrundstück in zentraler Wohnlage. Das Wohnhaus bietet viel Platz für eine große Familie sowie individuelle Nutzungsmöglichkeiten z.B. für Arbeit, Hobby und Freizeit. Das EG wurde im Jahr 2022 in verschiedenen Teilbereichen modernisiert und ein schönes Wohnambiente geschaffen. Hier befinden sich das Wohnzimmer, ein Büro- Gäste- oder Esszimmer, die Küche, ein Vorratsraum und ein Gäste-WC. Von der Küche haben Sie einen Zugang zum Hausanschlussraum mit einem Übergang zum Anbau und zum Innenhof. Die Räume im Anbau stellen ideale Bedingungen für Arbeit, Hobby, Freizeit oder auch ggf. zum Wohnen. Über dem Anschlussraum ist zusätzliche Ausbaureserve vorhanden. Das OG verfügt über fünf großzügige Wohn-Schlafräume, ein Bürozimmer, eine Abstellkammer und ein Badezimmer. Die große Durchfahrt zum Innenhof bietet Platz für zwei 2 KFZ-Stellplätze und kann auch als Garage genutzt werden. Der geschützte Innenhof verfügt über zwei Außensitzbereiche (1x überdacht). Im rückliegenden Bereich des Hofes befindet sich die Scheune mit Abstell- und Unterstellmöglichkeiten. Direkt hinter der Scheune fließt ein Arm der Ohre. Über eine kleine Brücke gelangen Sie in den Garten mit individuellen Gestaltungsmöglichkeiten und einem zweiten Zugang am Ende des Grundstücks.
Großzügiges Wohnhaus mit viel Platz für Hobby und Freizeit sowie rückliegendem Gartengrundstück
38465 Brome
Die vollständige Adresse der Immobilie erhalten Sie vom Anbieter.
Auf Karte anzeigen
Die vollständige Adresse der Immobilie erhalten Sie vom Anbieter.
Finanzierungszertifikat
In nur zwei Minuten zu Ihrem persönlichen Finanzierungszertifkat.
Infos
| Haustyp | Einfamilienhaus |
|---|---|
| Wohnfläche ca. | 200 m2 |
| Nutzfläche | 280 m2 |
| Grundstücksfläche | 1.485 m2 |
| Zimmer | 7 |
| Schlafzimmer | 6 |
| Badezimmer | 1 |
| Garage/Stellplatz | Garage |
| Anzahl Garage/Stellplatz | 3 |
Kosten
| Kaufpreis |
249.000 € |
|---|---|
| Provision |
2,38% Käuferprovision: 2,38% v. KP, inkl. gesetzl. Mwst. 19%, fällig n. Unterz. eines notariellen KV, zahlbar v. Käufer! Verkäuferprovision: 2,38% v. KP, inkl. gesetzl. Mwst. 19%, fällig n. Unterz. eines notariellen KV, zahlbar v. Verkäufer! |
Finanzierungsrechner:
Kaufpreis:
600.000 €
Eigenkapital:
600.000 €
Monatliche Rate
0 €
Effektiver Jahreszins
0 %
Sollzinsbindung
10 Jahre
Bausubstanz & Energieausweis
| Baujahr | 1906 |
|---|---|
| Letzte Sanierung | 2022 |
| Objektzustand | Gepflegt |
| Qualität der Austattung | Normal |
| Heizungsart | Zentralheizung |
| Wesentliche Energieträger | Gas |
| Energieausweis | liegt vor |
| Energieausweistyp | Bedarfsausweis |
| Energieverbrauchskennwert | 193,7 kWh/(m²*a) |
Beschreibung des Objekts
Ausstattung
-Dach 2003 neu
-Kunststofffenster und Holzfenster mit 2-fach Isolierverglasung (teilw. 1994 neu)
-manuelle Rollläden außer in der Küche im EG, auf dem Flur und im Bad im OG
-Bodenbeläge: Fliesen, Teppich, PVC
-Gäste-WC im EG ist mit Waschbecken und WC ausgestattet
-Bad im OG ist mit Badewanne + Duschaufsatz, WC und Doppelwaschbecken ausgestattet
-Gas-Heizung 2022 neu
-elektrische Anlage wurde nach und nach bis 1995 modernisiert
-Frisch- und Abwasserleitungen teilw. 1995 neu
-Scheunendach Südseite 2014 neu
-elektrisches Garagentor / Durchfahrt 2011 neu
-Glasfaser liegt im Haus
Lage
Das EFH befindet sich in zentraler Lage, in Brome, im Osten des Landkreises Gifhorn an der Landesgrenze zu Sachsen-Anhalt. Brome liegt ca. 20 PKW-Fahrminuten in nördlicher Richtung von Wolfsburg entfernt und in ca. 5 PKW Fahrminuten erreichen Sie Brome. Brome verfügt über eine gute Infrastruktur. Eine Grundschule, eine Kita, eine Krippe, Einkaufsmöglichkeiten für den täglichen Bedarf, Ärzte, ein Freibad, eine Tankstelle und eine Apotheke sind vor Ort vorhanden. Die Anbindung in nahe Ortschaften, nach Wolfsburg oder Gifhorn, wird durch öffentliche Verkehrsmittel sichergestellt.
Sonstige Angaben
Das Betreten des Grundstücks ist ohne vorherige Terminabsprache mit unserem Maklerbüro nicht gestattet!
Die Objektdaten wurden mit großer Sorgfalt zusammengestellt und basieren auf den Angaben der Verkäufer!
Für die Richtigkeit der im Expose´ enthaltenen Angaben übernehmen wir keine Gewähr!
Von Grussendorf Immobilien & Finanzdienste werden keinerlei Zusicherungen über den Baulichen Zustand einer Immobilie gemacht!
Besuchen Sie unsere Homepage unter: www.grussendorfimmobilien.de
Adresse
38465 Brome
Interessante Orte
Preis- und Lageinformationen
Preistrend für Bestandsimmobilien in Brome
>