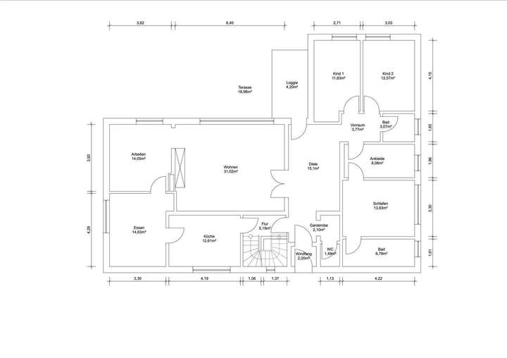
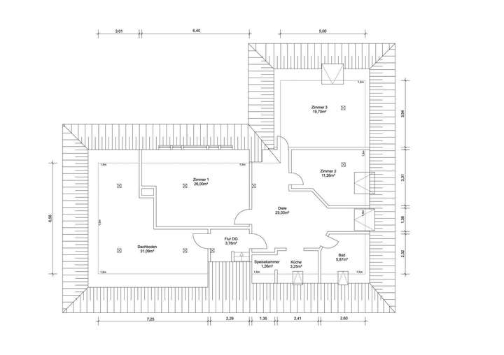
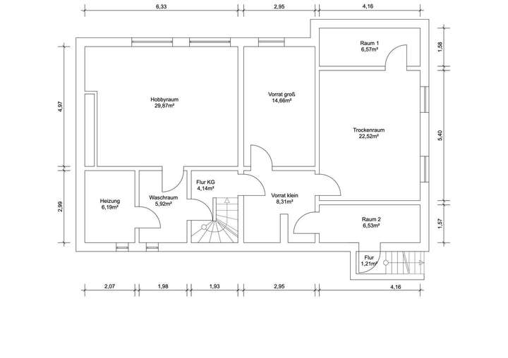
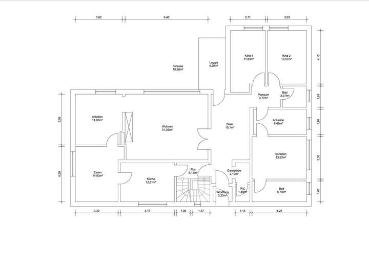
Eine wahre Oase der Ruhe und Erholung bietet dieses großzügige Einfamilienhaus aus dem Jahr 1973. Auf einem ca. 1.393 m² großen Grundstück befindet sich diese beeindruckende Immobilie, die mit einer Wohnfläche von ca. 277 m² und insgesamt 11 Zimmern viel Platz für eine große Familie oder individuelle Nutzungsmöglichkeiten bietet. Drei Bäder sowie ein zusätzliches Gäste-WC sorgen für höchsten Komfort und Flexibilität im Alltag. Im Erdgeschoss befinden sich 7 Wohnräume, 2 Bäder und ein Gäste-WC sowie ein wunderschöner Kamin im Wohnzimmer. Das Elternschlafzimmer verfügt über eine Ankleide und ein Bad en suite, die beiden Kinderzimmer teilen sich ein Bad. Das Haus ist mit einer großzügigen Einbauküche ausgestattet. Die herrliche, nach Südwesten ausgerichtete Terrasse bietet viele Sonnenstunden und Erholung im Freien. Das Dachgeschoss wurde seinerzeit für die Kinder ausgebaut und wurde von diesen genutzt. Es verfügt über 4 Wohnräume, 1 Bad und eine Kochnische. Außerdem gibt es genügend Abstellraum. Zusätzlich ist das Haus nahezu vollständig unterkellert, was noch mehr Stauraum und Nutzfläche bietet. Die Straße am Grundstück ist eine Privatstraße, die zum Grundstück gehört. Im Umkreis von 5-10 Minuten befinden sich diverse Restaurants, Einkaufsmöglichkeiten (Edeka), Kindergärten, Grundschule, Gymnasium und Sportmöglichkeiten sowie der Bahnhof Oberneuland (weniger als 2 km entfernt). Auch die Natur ist direkt vor der Tür, wie der Deich, verschiedene Parks wie Höpkens Ruh oder der Golfclub Oberneuland. Diese Immobilie in der attraktiven Lage Bremen/Oberneuland bietet Ihnen den perfekten Rückzugsort und das ideale Umfeld, um Ihr neues Zuhause nach Ihren Vorstellungen zu gestalten. Lassen Sie sich dieses außergewöhnliche Angebot nicht entgehen!
Freistehendes Einfamilienhaus mit Potenzial in begehrter Sackgassenlage von Oberneuland
28355 Bremen
Die vollständige Adresse der Immobilie erhalten Sie vom Anbieter.
Auf Karte anzeigen
Die vollständige Adresse der Immobilie erhalten Sie vom Anbieter.

Finanzierungszertifikat
In nur zwei Minuten zu Ihrem persönlichen Finanzierungszertifkat.
Infos
Haustyp | Einfamilienhaus |
---|---|
Wohnfläche ca. | 277 m2 |
Nutzfläche | 136,09 m2 |
Grundstücksfläche | 1.393 m2 |
Zimmer | 11 |
Schlafzimmer | 6 |
Badezimmer | 3 |
Kosten
Kaufpreis |
749.000 € |
---|---|
Provision |
2,975 |
Finanzierungsrechner:
Kaufpreis:
600.000 €
Eigenkapital:
600.000 €
Monatliche Rate
0 €
Effektiver Jahreszins
0 %
Sollzinsbindung
10 Jahre
Bausubstanz & Energieausweis
Baujahr | 1973 |
---|---|
Bauphase | Haus fertig gestellt |
Heizungsart | Zentralheizung |
Wesentliche Energieträger | Öl |
Energieausweis | liegt vor |
Energieausweistyp | Bedarfsausweis |
Energieverbrauchskennwert | 181,0 kWh/(m²*a) |
Energieeffizienzklasse | F |
181,0
kWh/(m²*a)
Energieeffizienzklasse F
- A+
- A
- B
- C
- D
- E
- F
- G
- H
- 0
- 25
- 50
- 75
- 100
- 125
- 150
- 175
- 200
- 225
- >250
Beschreibung des Objekts
Ausstattung
• Wohnfläche: ca. 277 m² • davon im Erdgeschoss: ca. 181 m² • davon im Obergeschoss: ca. 95 m²* • Grundstücksgröße: ca. 1.393 m² • Freistehendes Einfamilienhaus • Kamin • 2 Badezimmer im EG • Separates Gäste-WC im EG • 1Badezimmer im OG • Einbauküche im EG • Pantryküche im DG • Voll unterkellert (mit Tageslichtfenstern) • Öl-Heizung aus 1994 • Große Terrasse • Großzügiger Garten • Großzügige Auffahrt mit Garage • Privatstraße
Lage
Das Einfamilienhaus befindet sich in dem begehrten Stadtteil Oberneuland. Diese exklusive Wohngegend zeichnet sich durch ihre ruhige und grüne Umgebung aus, die sowohl Familien als auch anspruchsvolle Einzelpersonen anspricht. Oberneuland liegt im Nordosten Bremens und ist bekannt für seine prächtigen Villen, weitläufigen Gärten und eine exzellente Anbindung an das Stadtzentrum. In unmittelbarer Nähe zur Immobilie finden Sie zahlreiche Einkaufsmöglichkeiten, renommierte Schulen und Kindergärten sowie diverse Freizeit- und Sporteinrichtungen. Die gute Verkehrsanbindung, insbesondere durch die nahegelegene Autobahn und den öffentlichen Nahverkehr, ermöglicht eine schnelle und bequeme Erreichbarkeit des Bremer Zentrums und der umliegenden Regionen. Genießen Sie die Kombination aus urbanem Komfort und naturnaher Idylle, die Oberneuland bietet. Mit ausgedehnten Grünflächen, gepflegten Parkanlagen und historischen Landhäusern vermittelt diese Lage ein einzigartiges Wohnerlebnis, das hohe Lebensqualität und Ruhe vereint.
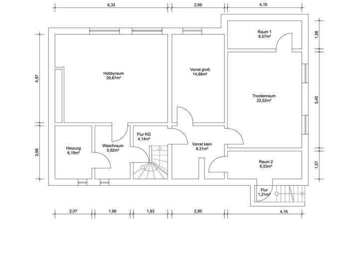
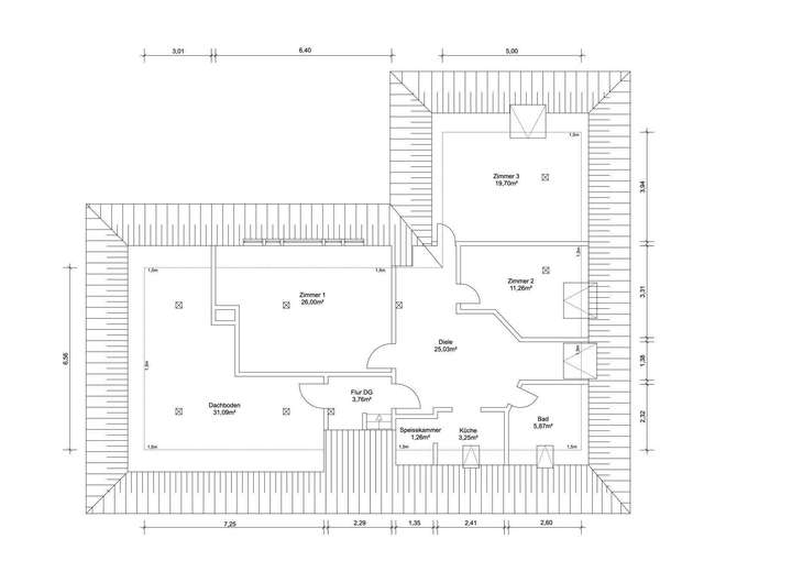
Grundriss
Erdgeschoss
>

Kellergeschoss
>

Erdgeschoss
>

Dachgeschoss
>

Kellergeschoss
>

Adresse
28355 Bremen
Interessante Orte
Preis- und Lageinformationen
Preistrend für Bestandsimmobilien in Oberneuland