_ Die ca. 1899 erbaute Villa mit stilvoller und heller Putzfassade ist aufgeteilt in vier Wohnungen
_ Hochparterre ca.170 m² Wohnfläche, Wohnungen Obergeschoss je ca. 75 m² Wohnfläche, Dachgeschoss ca. 120 m² Wohnfläche
_ Sanierung der Fassade 2022, Ölheizungsanlage von 2017/18, Dichtigkeitsprüfung und Erneuerung der Wasserleitung zur Straße, Erneuerung der Fenster, neues Fenster im Obergeschoss, 2016 neue Leitungen und Küche im Obergeschoss
_ Zentrale Ölheizungsanlage von Viessmann
_ Weitläufiges und sonniges Grundstück mit kleinem Pavillon und einem Gartenteich
_ Die Dachgeschosswohnung wird frei geliefert
Stilvolle Jugendstilvilla auf parkähnlichem Südgrundstück!
22609 Hamburg
Die vollständige Adresse der Immobilie erhalten Sie vom Anbieter.
Auf Karte anzeigen
Die vollständige Adresse der Immobilie erhalten Sie vom Anbieter.
Finanzierungszertifikat
In nur zwei Minuten zu Ihrem persönlichen Finanzierungszertifkat.
Infos
| Haustyp | Villa |
|---|---|
| Etagenzahl | 3 |
| Wohnfläche ca. | 490 m2 |
| Grundstücksfläche | 2.352 m2 |
| Zimmer | 15 |
Kosten
| Kaufpreis |
2.750.000 € |
|---|---|
| Provision |
3,75 % inkl. MwSt. bezogen auf den Kaufpreis |
Finanzierungsrechner:
Kaufpreis:
600.000 €
Eigenkapital:
600.000 €
Monatliche Rate
0 €
Effektiver Jahreszins
0 %
Sollzinsbindung
10 Jahre
Bausubstanz & Energieausweis
| Baujahr | 1899 |
|---|---|
| Objektzustand | Vollständig Renoviert |
| Heizungsart | Zentralheizung |
| Wesentliche Energieträger | Öl |
| Energieausweis | liegt vor |
| Energieausweistyp | Verbrauchsausweis |
| Energieverbrauchskennwert | 168,0 kWh/(m²*a) |
Beschreibung des Objekts
Ausstattung
_ Wertvolle Ausstattungsdetails aus dem Baujahr wie z.B. originale Parkett- und Dielenböden und originale Türen
_ Gut geschnittene Wohnungen mit hellen Küchen und Bädern
_ Doppelgarage auf dem Grundstück
_ Es besteht kein Denkmalschutz
Lage
_ Die Immobilie befindet sich in dem äußerst begehrten Stadtteil Hamburg-Hochkamp, welcher zu den exklusiven Elbvororten gehört.
_ Hochkamp zeichnet sich durch seine repräsentative Villenbebauung auf großzügigen, parkähnlichen Grundstücken aus.
_ Exzellente Verkehrsanbindung durch unmittelbare Nähe zum S-Bahnhof Hochkamp.
_ Renommierte Bildungseinrichtungen wie z. B. die Internationale Schule und das Jenisch Gymnasium
_ Vielseitige Einkaufsmöglichkeiten im malerischen Dorfkern von Nienstedten
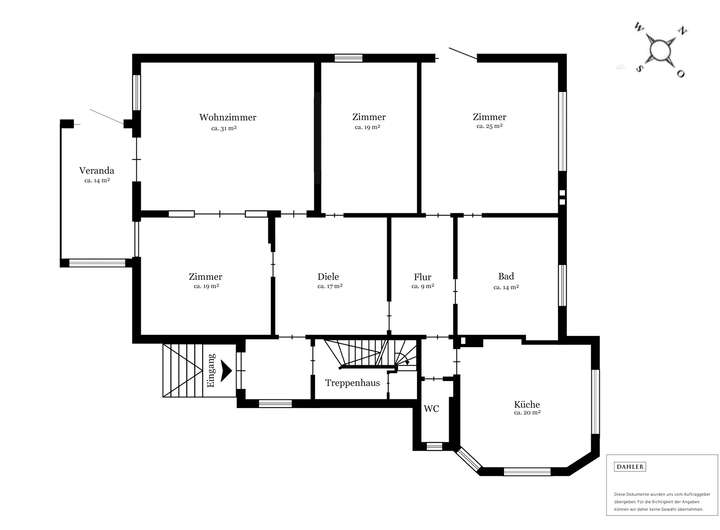
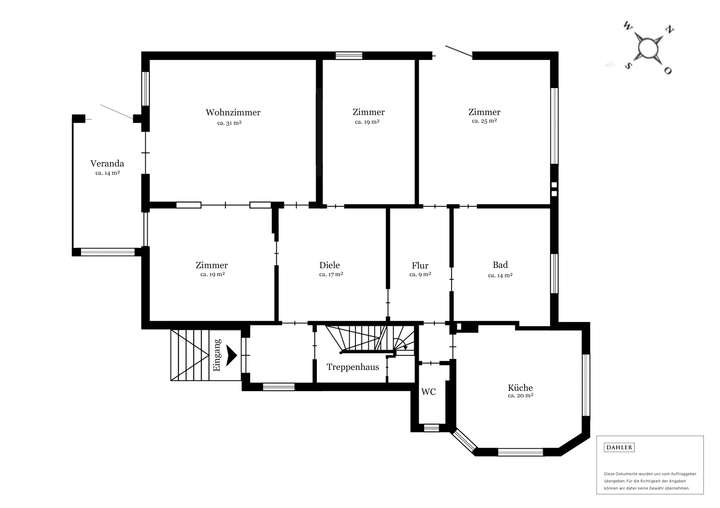
Grundriss
Grundriss Hochparterre
>
>
Grundriss Obergeschoss 1
>
>
Grundriss Obergeschoss 2
>
>
Dachgeschoss
>
>
Untergeschoss
>
>
Adresse
22609 Hamburg
Interessante Orte
Preis- und Lageinformationen
Preistrend für Bestandsimmobilien in Osdorf