Willkommen in Ihrem potenziellen neuen Zuhause oder einer attraktiven Investitionsmöglichkeit – einer modernen Doppelhaushälfte in Oldenburg. Diese neuwertige Immobilie, die sowohl für Investoren als auch als Eigentum interessant ist, wurde im Jahr 2022 erbaut und überzeugt durch eine zeitgemäße Ausstattung sowie energieeffiziente Bauweise nach dem KfW 40 EE Standard.
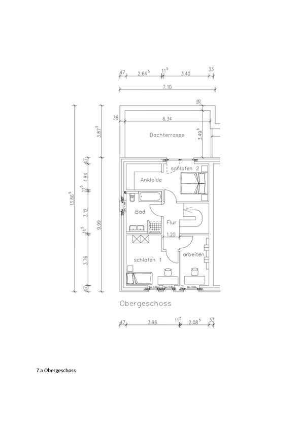
Mit einer Grundstücksgröße von ca. 151 m² und einer Wohnfläche von ca. 113 m² bietet dieses Haus ausreichend Platz und Funktionalität, egal ob zur Eigennutzung oder zur Vermietung. Die Doppelhaushälfte erstreckt sich über zwei Etagen und umfasst insgesamt vier Zimmer, darunter drei gemütliche Schlafzimmer und ein elegant gestaltetes Badezimmer, das sowohl über eine Dusche als auch über eine Badewanne verfügt.
Zusätzliche Highlights wie ein pflegeleichter Garten und eine private Dachterrasse, bieten vielseitige Nutzungsmöglichkeiten und erhöhen den Wohnkomfort erheblich. Der Innenbereich ist mit hochwertigen Materialien ausgestattet: Edles Parkett und stilvolle Fliesen verleihen den Räumen eine moderne Note, während die Fußbodenheizung in allen Räumen für wohlige Wärme sorgt.
Die technischen Merkmale der Immobilie setzen Maßstäbe im Bereich Energieeffizienz: Ein doppelschaliges Mauerwerk, eine umweltfreundliche Luft/Wasser-Wärmepumpe sowie eine leistungsstarke PV-Anlage mit 8,20 kWp und einem 5 kW Speicher tragen zu geringen Betriebskosten bei. Hochwertige Kunststofffenster mit dreifacher Verglasung und elektrische Jalousien runden das Angebot ab.
Ein PKW-Stellplatz ergänzt die Annehmlichkeiten der Immobilie. Derzeit ist diese Doppelhaushälfte vermietet und generiert eine jährliche Mieteinnahme von 18.720 €. Diese Immobilie in Oldenburg bietet die perfekte Kombination aus modernem Wohnen und Nachhaltigkeit und stellt somit sowohl eine attraktive Wohnmöglichkeit für Eigentümer als auch eine lukrative Investitionsgelegenheit dar. Nutzen Sie diese exklusive Chance und kontaktieren Sie uns!
Sichere Kapitalanlage: Doppelhaushälfte mit stabilen Mieteinnahmen & Wertsteigerungspotenzial
26121 Oldenburg (Oldenburg)
Die vollständige Adresse der Immobilie erhalten Sie vom Anbieter.
Auf Karte anzeigen
Die vollständige Adresse der Immobilie erhalten Sie vom Anbieter.
Finanzierungszertifikat
In nur zwei Minuten zu Ihrem persönlichen Finanzierungszertifkat.
Infos
| Haustyp | Doppelhaushaelfte |
|---|---|
| Etagenzahl | 2 |
| Wohnfläche ca. | 112 m2 |
| Grundstücksfläche | 151 m2 |
| Zimmer | 4 |
| Schlafzimmer | 3 |
| Badezimmer | 1 |
| Garage/Stellplatz | Außenstellplatz |
| Anzahl Garage/Stellplatz | 1 |
Kosten
| Kaufpreis |
509.000 € |
|---|---|
| Provision | Nein |
Finanzierungsrechner:
Kaufpreis:
600.000 €
Eigenkapital:
600.000 €
Monatliche Rate
0 €
Effektiver Jahreszins
0 %
Sollzinsbindung
10 Jahre
Bausubstanz & Energieausweis
| Baujahr | 2022 |
|---|---|
| Objektzustand | Neuwertig |
| Heizungsart | Fußbodenheizung |
| Energieausweis | liegt vor |
| Energieausweistyp | Bedarfsausweis |
| Energieverbrauchskennwert | 21,0 kWh/(m²*a) |
| Energieeffizienzklasse | A+ |
21,0
kWh/(m²*a)
Energieeffizienzklasse A+
- A+
- A
- B
- C
- D
- E
- F
- G
- H
- 0
- 25
- 50
- 75
- 100
- 125
- 150
- 175
- 200
- 225
- >250
Beschreibung des Objekts
Ausstattung
- Energieeffizienzhaus - KfW 40 EE Standard
- doppelschaliges Mauerwerk mit hochwertigem Verblender
- Luft / Wasser Wärmepumpe
- PV-Anlage 8,20 kWp mit 5 kw Speicher
- Fußböden: hochwertiges Parkett, Fliesen
- Badezimmer mit Dusche und Badewanne
- Fußbodenheizung in allen Räumen
- Kunststofffenster mit 3-fach-Verglasung
- elektrische Jalousien
- Garten - und Dachterrasse
- 1 PKW-Stellplatz
Lage
Diese charmante Doppelhaushälfte befindet sich in dem begehrten Stadtteil Nadorst der pulsierenden Universitätsstadt Oldenburg in Niedersachsen. Oldenburg, bekannt für seine hervorragende Lebensqualität und sein reiches kulturelles Erbe, bietet alles, was das Herz begehrt: von historischen Sehenswürdigkeiten über vielfältige Freizeitmöglichkeiten bis hin zu einer dynamischen Wirtschaftslandschaft.
Der Stadtteil Nadorst kombiniert städtischen Komfort mit einem grünen, familienfreundlichen Umfeld. Die Lage ist besonders attraktiv für Familien und Berufspendler, da sie eine ausgezeichnete Infrastruktur und Anbindung an den öffentlichen Nahverkehr bietet. Einkaufsmöglichkeiten, Schulen, Kindergärten und ärztliche Versorgungseinrichtungen sind in unmittelbarer Nähe vorhanden und schnell erreichbar.
Für Naturliebhaber und Erholungssuchende liegen der Botanische Garten und der nahegelegene Nordwest-Zentrum Park nur wenige Minuten entfernt und laden zu entspannten Spaziergängen oder sportlichen Aktivitäten ein. Die Anbindung an die Autobahn ist ideal, um sowohl das reizvolle Umland als auch die norddeutschen Großstädte bequem zu erreichen.
Kurze Wege zur lebhaften Innenstadt von Oldenburg mit ihren attraktiven Shoppingmeilen, kulinarischen Angeboten und kulturellen Veranstaltungen machen diesen Standort besonders wertvoll. Dieses Haus vereint somit die Vorzüge eines ruhigen Wohnumfelds mit der Nähe zu urbanem Leben.
Sonstige Angaben
- Ein besonderes Highlight der Immobilie ist die effizient arbeitende Photovoltaikanlage. Der von der PV-Anlage erzeugte Strom steht den Bewohnern unentgeltlich zur Verfügung, was nicht nur die Energiekosten senkt, sondern auch umweltfreundliches Wohnen fördert. Zudem profitieren Sie von einer Einspeisevergütung für den überschüssig erzeugten Strom in Höhe von ca. 20-30 € pro Monat, die dem Eigentümer zugutekommt.
Es stehen insgesamt 6 Doppelhaushälften zur Verfügung:
5a // 5 Zimmer // 118,21 m²
5b // 4 Zimmer // 110,49 m²
7a // 4 Zimmer // 112,83 m²
7b // 5 Zimmer // 128,25 m²
9a // 4 Zimmer // 95,89 m²
9b // 4 Zimmer // 95,43 m²
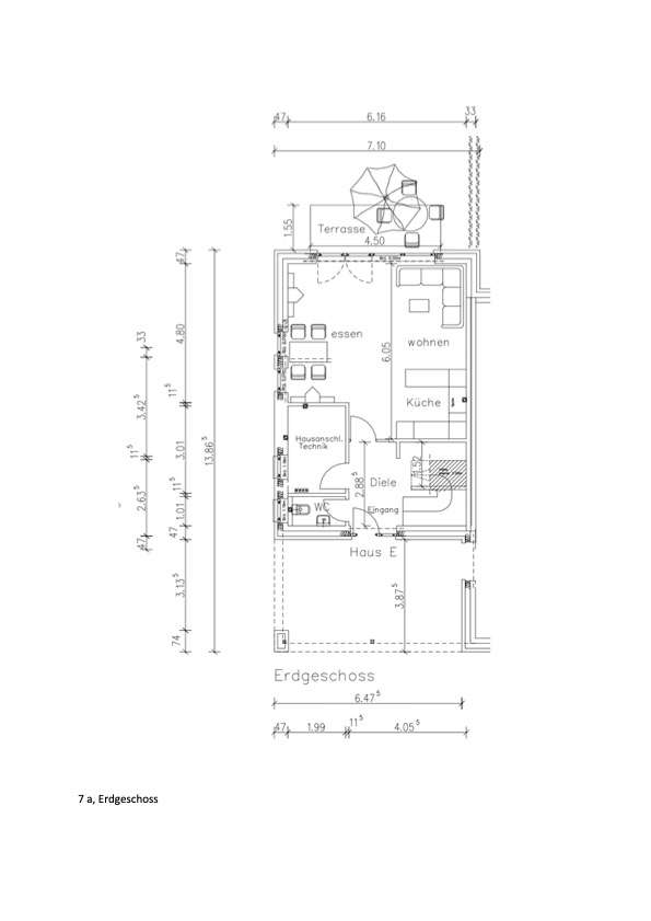
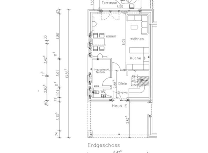
Grundriss
Erdgeschoss
>
>
Obergeschoss
>
>
Adresse
26121 Oldenburg (Oldenburg)
Interessante Orte
Preis- und Lageinformationen
Preistrend für Bestandsimmobilien in Bürgerfelde