Das hier angebotene STREIF Haus präsentiert sich als zeitgemäßes Einzelhaus.
Der Angebotsumfang umfasst das Haus inklusive Fundamentplatte und dem dazugehörigen Grundstück. (Die Option für einen Keller besteht.)
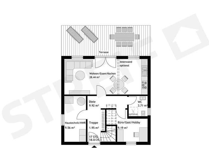
Derzeit haben Sie noch die Möglichkeit, die Größe des Hauses sowie den Grundriss nach Ihren individuellen Vorstellungen anzupassen.
Einzigartige Architektur, moderne Raumkonzepte mit offenen Flächen und attraktive Fassadengestaltungen verleihen unseren Häusern einen ganz besonderen Charakter.
Mit einem STREIF Haus sparen Sie außerdem erhebliche Energiekosten!
Das Haus wird in nahezu fertiger Ausstattung geliefert, was bedeutet, dass Sie nur geringfügige Eigenleistungen erbringen müssen.
STREIF HAUS ist eine der ältesten und renommiertesten Fertighausfirmen in Deutschland. Profitieren Sie von unserem umfangreichen Fachwissen, das wir über viele Jahre gesammelt haben!
Wir errichten Häuser für alle Generationen, Häuser voller Lebendigkeit.
Streif Aktionshaus als Effizienzhaus 40 incl. Grundstück
55543 Bad Kreuznach
Die vollständige Adresse der Immobilie erhalten Sie vom Anbieter.
Auf Karte anzeigen
Die vollständige Adresse der Immobilie erhalten Sie vom Anbieter.
Finanzierungszertifikat
In nur zwei Minuten zu Ihrem persönlichen Finanzierungszertifkat.
Infos
| Haustyp | Einfamilienhaus |
|---|---|
| Etagenzahl | 2 |
| Wohnfläche ca. | 120 m2 |
| Grundstücksfläche | 540 m2 |
| Zimmer | 5 |
| Schlafzimmer | 3 |
| Badezimmer | 1 |
Kosten
| Kaufpreis |
549.500 € |
|---|---|
| Provision | Nein |
Finanzierungsrechner:
Kaufpreis:
600.000 €
Eigenkapital:
600.000 €
Monatliche Rate
0 €
Effektiver Jahreszins
0 %
Sollzinsbindung
10 Jahre
Bausubstanz & Energieausweis
| Baujahr | 2026 |
|---|---|
| Bauphase | Haus in Planung (projektiert) |
| Objektzustand | Erstbezug |
| Qualität der Austattung | Gehoben |
| Heizungsart | Wärmepumpe |
| Energieausweis | liegt zur Besichtigung vor |
Beschreibung des Objekts
Ausstattung
Bauleistungen im Grundpreis enthalten:
- Niedrigenergiesparhaus Effizienzklasse 40 incl. 40 plus möglich
- Allergikergeeignet mit Tüv Zertifikat
- STREIF PASSIV - WAND
- Fundamentplatte ist incl. Keller ist möglich
- Nutzung regenerativer Energien durch Wärmerückgewinnung
- beste Raumluft-Qualität mit TÜV-Siegel
- variable Grundrissaufteilung
- Festpreis garantiert
- 30 Jahre Garantie auf statische Grundkonstruktion
- garantierter Hausübergabe-Termin
- erstklassige Fachberatung
- das Grundstück
- Baubetreuungs-Service von A-Z
- Komplettausstattung möglich
- Kundendienst auch nach dem Einzug
Gegen Aufpreis bieten wir Ihnen kostengünstig:
- Küche
- Garage
- PV Anlage
- vieles mehr
Jetzt kostenlos bei uns informieren !!!
Gerne können Sie sich unser Musterhaus ansehen, bitte um Terminvereinbarung
Lage
sehr schönes und ruhig gelegenes Grundstück im Baugebiet In den Weinbergen. Wohl eines der letzten freien Grundstücke.
ideal zum bebauen mit einem Einfamilienhaus. Ein 2 FH ist möglich. Weitere Grundstück in der Umgebung vorhanden.
Sonstige Angaben
- zuzüglich Baunebenkosten
- Fundamentplatte ist incl. Keller ist möglich.
- Anbauteile wie Balkon, Eckfenster, Garage sind Zubehör
- der Grundriss oder die Hausgröße können noch verändert werden
- Vorverkauf und Irrtümer sind vorbehalten
- das Grundstück wird von Privat verkauft / vermittelt
Adresse
55543 Bad Kreuznach
Interessante Orte
Preis- und Lageinformationen
Preistrend für Bestandsimmobilien in Bad Kreuznach