Dieses besondere Reihenmittelhaus befindet sich auf einem ca. 185 m² großen Grundstück im beliebten Oldenburger Stadtteil Ohmstede. Die ruhige Wohnlage sowie die außergewöhnliche und zugleich funktionale Raumaufteilung machen diese Immobilie zu einem idealen Zuhause für Paare und Familien.
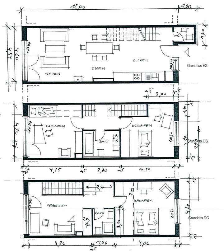
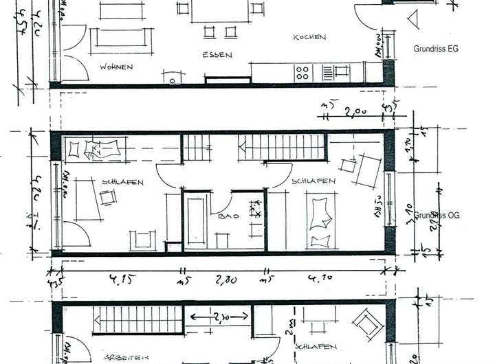
Die Wohnfläche von ca. 123 m² verteilt sich auf drei Etagen:
Im Erdgeschoss befindet sich der Wohn- und Essbereich mit direktem Zugang zum Garten und das Gäste-WC.
Über eine Holztreppe gelangt man in das Obergeschoss. Hier befinden sich zwei Schlafzimmer und ein Badezimmer mit Badewanne.
Das Dachgeschoss verteilt sich auf eine Galerie, ein weiteres Schlafzimmer und ein Badezimmer mit ebenerdiger Dusche und Waschmaschinenanschluss.
Die beigefügten Grundrisse helfen Ihnen dabei erste Eindrücke von der Aufteilung zu bekommen.
Im Außenbereich steht den Bewohnern neben dem Garten ein PKW-Außenstellplatz zur Verfügung.
Kontaktieren Sie uns für weitere Informationen!
Energieeffizientes Reihenmittelhaus in Oldenburg (Ohmstede)!
26125 Oldenburg (Oldenburg)
Die vollständige Adresse der Immobilie erhalten Sie vom Anbieter.
Auf Karte anzeigen
Die vollständige Adresse der Immobilie erhalten Sie vom Anbieter.
Finanzierungszertifikat
In nur zwei Minuten zu Ihrem persönlichen Finanzierungszertifkat.
Infos
| Haustyp | Einfamilienhaus |
|---|---|
| Etagenzahl | 3 |
| Wohnfläche ca. | 123 m2 |
| Grundstücksfläche | 182 m2 |
| Bezugsfrei ab | nach Vereinbarung |
| Zimmer | 5 |
| Schlafzimmer | 3 |
| Badezimmer | 2 |
| Garage/Stellplatz | Außenstellplatz |
| Anzahl Garage/Stellplatz | 1 |
Kosten
| Kaufpreis |
409.000 € |
|---|---|
| Provision |
2,975% inkl. MwSt. Für den Käufer entsteht eine Maklercourtage i.H.v. 2,5 % des notariell beurkundeten Kaufpreises zzgl. 19 % St. |
| Mieteinnahmen | 960 € |
Finanzierungsrechner:
Kaufpreis:
600.000 €
Eigenkapital:
600.000 €
Monatliche Rate
0 €
Effektiver Jahreszins
0 %
Sollzinsbindung
10 Jahre
Bausubstanz & Energieausweis
| Baujahr | 2003 |
|---|---|
| Bauphase | Haus fertig gestellt |
| Objektzustand | Gepflegt |
| Qualität der Austattung | Normal |
| Heizungsart | Fernwärme |
| Wesentliche Energieträger | Fernwärme |
| Energieausweis | liegt vor |
| Energieausweistyp | Verbrauchsausweis |
Beschreibung des Objekts
Ausstattung
- Baujahr 2003
- Fernwärme, Heizung 2017
- ca. 123 m² Wohnfläche
- Einbauküche, Kaminofen und Schuppen im Garten sind Eigentum der Mieter
- seit 01.07.2021 vermietet für monatlich 960,00€ kalt
- 5 Zimmer
- Terrasse
- Garten
- Außenstellplatz
Lage
Das Grundstück liegt in einer Spielstraße in Ohmstede. Die unmittelbare Nachbarschaft ist hauptsächlich von Reihenhäusern sowie Einfamilienhäusern geprägt. Es handelt sich um eine verkehrsgünstige Lage im beliebten Stadtteil Ohmstede im Nordosten von Oldenburg. Die Entfernung zur Oldenburger Innenstadt beträgt nur ca. 4 km und die Geschäfte des täglichen Bedarfs befinden sich in der näheren Umgebung. Den Hauptbahnhof erreichen Sie in nur ca. 3,5 km und die Autobahnauffahrt zum Zubringer zur A 29 liegt sogar nur ca. 800 m entfernt.
Sonstige Angaben
Wir bitten um Verständnis, dass aus Gründen der Privatsphäre nicht von allen Räumen Bilder veröffentlicht werden.
Die Angaben des Angebotes werden uns von Eigentümern oder Dritten geliefert. Trotz der von uns aufgewandten Sorgfalt können wir für die Richtigkeit und Vollständigkeit des Angebotes keine Haftung übernehmen. Das Angebot erfolgt freibleibend; Zwischenverkauf bleibt vorbehalten.
Grundriss
Grundrisse
>
>
Adresse
26125 Oldenburg (Oldenburg)
Interessante Orte
Preis- und Lageinformationen
Preistrend für Bestandsimmobilien in Ohmstede