Herzlich Willkommen in Ihrem neuen Zuhause.
Diese schöne Doppelhaushälfte verkörpert zeitlose Eleganz und Familienfreundlichkeit und präsentiert sich in einem äußerst gepflegten Zustand, was Ihren Charme unterstreicht.
Auf einer großzügigen Wohnfläche von 129 m² bietet Sie genügend Platz für eine Familie mit Kindern. Hier können Sie sich frei entfalten und ein komfortables Leben führen.
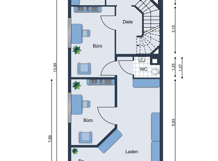
Sie betreten das Haus im Erdgeschoss und schon offenbart sich der besondere Reiz dieser Immobilie, die Wohnen und Arbeiten in Einem vereint.
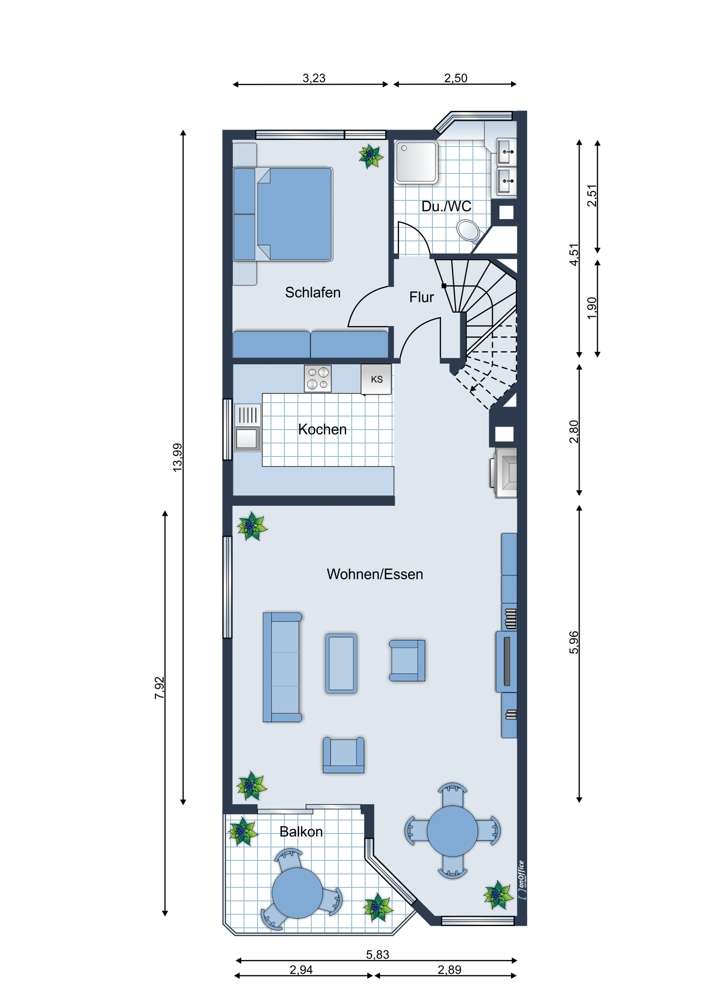
Über eine Treppe gelangen Sie in die erste Etage. Ein lichtdurchflutetes Wohn- und Esszimmer mit einer offenen Einbauküche bildet den Mittelpunkt dieser Doppelhaushälfte. Ein Kaminofen schafft ein harmonisches Wohnambiente und lässt die gemütlichen Familienabende dieser Ebene erahnen. Ein geräumiges Elternschlafzimmer und ein Tageslicht-Bad mit Dusche, WC und Waschbecken vervollständigen diese Etage.
Im Dachgeschoss erwarten Sie zwei weitere helle, freundliche Schlafzimmer und eine gemütliche Dachterrasse. Hier ist ausreichend Platz für Familienmitglieder oder Gäste. Ein Tageslichtbad mit einer großen Badewanne, einem Bidet, einer Toilette und einem Waschbecken bietet Komfort und Entspannung.
Der großzügig ausgebaute Keller im Untergeschoss ist ein weiteres Highlight dieser Immobilie und bietet durch verschiedene Räume vielfältige Nutzungsmöglichkeiten.
Im Erdgeschoss befinden sich Ihre Gewerbe - oder Geschäftsräume auf 54m² mit drei hellen und großzügigen Räumen und einem WC mit Waschbecken.
Ein idyllischer Garten in dem Sie Familienmomente im Freien genießen werden, rundet dieses wunderbare Angebot ab und erhöht die Attraktivität der Immobilie.
Sie suchen ein stillvolles und gepflegtes Zuhause, das Familienleben, Wohnkomfort und Arbeiten in perfekter Harmonie vereint? Dann vereinbaren Sie noch heute einen Besichtigungstermin mit uns. Wir freuen uns auf Sie.
Große Doppelhaushälfte in Kelkheim-Fischbach
65779 Kelkheim (Taunus)
Die vollständige Adresse der Immobilie erhalten Sie vom Anbieter.
Auf Karte anzeigen
Die vollständige Adresse der Immobilie erhalten Sie vom Anbieter.
Finanzierungszertifikat
In nur zwei Minuten zu Ihrem persönlichen Finanzierungszertifkat.
Infos
| Haustyp | Doppelhaushaelfte |
|---|---|
| Wohnfläche ca. | 183 m2 |
| Nutzfläche | 40 m2 |
| Grundstücksfläche | 323 m2 |
| Bezugsfrei ab | sofort |
| Zimmer | 4 |
| Schlafzimmer | 3 |
| Badezimmer | 2 |
| Garage/Stellplatz | Außenstellplatz |
| Anzahl Garage/Stellplatz | 3 |
Kosten
| Kaufpreis |
638.000 € |
|---|---|
| Provision |
3,57% (inkl. 19% MwSt.) |
Finanzierungsrechner:
Kaufpreis:
600.000 €
Eigenkapital:
600.000 €
Monatliche Rate
0 €
Effektiver Jahreszins
0 %
Sollzinsbindung
10 Jahre
Bausubstanz & Energieausweis
| Baujahr | 1986 |
|---|---|
| Objektzustand | Gepflegt |
| Heizungsart | Zentralheizung |
| Wesentliche Energieträger | Gas |
| Energieausweis | liegt vor |
| Energieausweistyp | Verbrauchsausweis |
| Energieverbrauchskennwert | 120,9 kWh/(m²*a) |
| Energieeffizienzklasse | D |
120,9
kWh/(m²*a)
Energieeffizienzklasse D
- A+
- A
- B
- C
- D
- E
- F
- G
- H
- 0
- 25
- 50
- 75
- 100
- 125
- 150
- 175
- 200
- 225
- >250
Beschreibung des Objekts
Ausstattung
Diese Doppelhaushälfte besticht durch:
- die Möglichkeit, Wohnen und Arbeiten in einem Haus zu verbinden
- die großzügige Wohnfläche auf zwei Ebenen
- das lichtdurchflutete Wohn- und Esszimmer
- die offene Einbauküche
- den Kamin
- die beiden Tageslichtbäder
- den Balkon und die Dachterrasse
- den idyllischen Garten
- die große Nutzfläche im Kellergeschoss
- die 54 m² große Gewerbefläche mit drei Räumen und einem WC und separatem Zugang
- die sehr gute Lage in Kelkheim
- die Parkplätze vor dem Haus
Lage
Kelkheim im Taunus ist eine charmante Stadt im hessischen Main-Taunus-Kreis, etwa 15 Kilometer westlich von Frankfurt am Main gelegen. Mit rund 30.000 Einwohnern vereint sie die Vorzüge einer naturnahen Lage mit einer hervorragenden Anbindung an das Rhein-Main-Gebiet. Eingebettet in die sanften Hügel des Taunus und in unmittelbarer Nähe zum Naturpark Taunus bietet Kelkheim eine hohe Lebensqualität für Familien, Pendler und Erholungssuchende gleichermaßen.
Die Stadt besteht aus sechs Ortsteilen: Kelkheim-Mitte, Münster, Fischbach, Hornau, Ruppertshain und Eppenhain. Jeder Stadtteil hat seinen eigenen Charakter, von urban geprägt bis dörflich-idyllisch. Besonders bekannt ist Kelkheim als "Möbelstadt", da hier traditionell zahlreiche Schreinereien und Möbelmanufakturen ansässig sind. Noch heute spielt das Handwerk eine wichtige Rolle im Wirtschaftsleben der Stadt.
Kultur und Freizeit werden in Kelkheim großgeschrieben. Die Stadt verfügt über ein reges Vereinsleben, ein modernes Freibad, zahlreiche Sportanlagen und eine lebendige Kulturszene mit Konzerten, Ausstellungen und Veranstaltungen wie dem traditionellen Stadtfest. Wanderfreunde und Radfahrer kommen auf den gut ausgebauten Wegen rund um den Atzelberg, den Rettershof oder das nahegelegene Feldberggebiet voll auf ihre Kosten.
Eines der bekanntesten Ausflugsziele in der Nähe von Kelkheim ist der Opel-Zoo, der eine beeindruckende Vielfalt an Tieren aus aller Welt beherbergt und sowohl für Kinder als auch Erwachsene ein beliebtes Ziel ist.
Auch Bildung und Betreuung sind in Kelkheim gut aufgestellt: Neben mehreren Grund- und weiterführenden Schulen gibt es vielfältige Angebote für Kinderbetreuung sowie eine Musikschule. Kelkheim ist gut an das Verkehrsnetz angebunden, insbesondere durch die Nähe zum Flughafen und der Großstadt Frankfurt, die mit dem Auto oder der Bahn leicht zu erreichen ist.
Kelkheim ist somit ein lebenswerter Ort, der Naturverbundenheit, Tradition und Modernität auf gelungene Weise verbindet.
Grundriss
Das Erdgeschoss
>
>
Das Obergeschoss
>
>
Das Dachgeschoss
>
>
Das Kellergeschoss
>
>
Adresse
65779 Kelkheim (Taunus)
Interessante Orte
Preis- und Lageinformationen
Preistrend für Bestandsimmobilien in Kelkheim (Taunus)