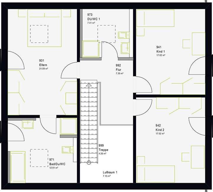
Gestaltet euer Traumhaus mit knapp 182m² Wohnfläche ganz nach euren Vorstellungen. Im Eingangsbereich überkommt euch schon ein warmes Gefühl des nach Hause Kommens. Die wunderschöne Treppe ist gleich ein Blickfang und bringt durch große Fenster im Treppenraum eine ideale Helligkeit in den Eingangsbereich. Der vom Flur aus zu erreichende Hauswirtschaftsraum ist neben dem Flur und der Diele auch ein wahres Platzwunder. Hier kommt Platz sparend die moderne und effiziente Haustechnik des Hauses unter. Gleich daneben befindet sich eins der beiden Badezimmern. Ebenfalls im Erdgeschoss gelegen ist das geräumige Eltern-Schlafzimmer, welches sich auch als Gäste-Zimmer nutzen lässt. Die bis zum Boden führenden Fenster/Terrassentüren geben dem Raum Helligkeit, die zur individuellen Gestaltung einlädt. Der Wohn- und Essbereich ist miteinander verbunden und vom Flur aus mit zwei Türen begehbar. Der helle Raum hat genug Platz für die ganze Familie und natürlich macht das Einladen zum gemeinsamen Spiele-Abend mit Freunden und Familie viel Spaß, da es genug Sitzmöglichkeiten für alle gibt. Die anliegende schöne Küche hat auch ein kleines Extra zu bieten. Sie ist mit einem weiteren kleinen Raum zum Verstauen von zum Beispiel Lebensmitteln ausgestattet. Der mittig gelegene Treppenraum gibt den Räumen im Obergeschoss eine besondere Form. Die Kinder haben in den zwei geräumigen Kinderzimmern genug Platz um sich individuell zu entfalten. Das schön geschnittene Eltern-Schlafzimmer bietet nicht nur genug Platz für ein großes Bett, sondern ist mit einem weiteren Raum verbunden. Hier entsteht euer Ankleidezimmer, somit wirkt der Schlafbereich gleich wesentlich ordentlicher und aufgeräumt. Und wer hat noch nicht von seinem eigenen Ankleidezimmer geträumt? Außerdem ist der Raum mit einem Balkon verbunden und stellt euch vor, ihr werdet von der leichten Helligkeit geweckt, macht die Balkontür auf und räkelt euch mit den ersten Sonnenstrahlen.
Genießt den Tag im eigenen Garten.
28801 Stuhr
Die vollständige Adresse der Immobilie erhalten Sie vom Anbieter.
Auf Karte anzeigen
Die vollständige Adresse der Immobilie erhalten Sie vom Anbieter.

Finanzierungszertifikat
In nur zwei Minuten zu Ihrem persönlichen Finanzierungszertifkat.
Infos
Haustyp | Einfamilienhaus |
---|---|
Etagenzahl | 2 |
Wohnfläche ca. | 181 m2 |
Nutzfläche | 180 m2 |
Grundstücksfläche | 538 m2 |
Bezugsfrei ab | 2026 |
Zimmer | 6 |
Schlafzimmer | 4 |
Badezimmer | 2 |
Kosten
Kaufpreis |
541.928 € |
---|---|
Provision | Nein |
Finanzierungsrechner:
Kaufpreis:
600.000 €
Eigenkapital:
600.000 €
Monatliche Rate
0 €
Effektiver Jahreszins
0 %
Sollzinsbindung
10 Jahre
Bausubstanz & Energieausweis
Baujahr | 2026 |
---|---|
Bauphase | Haus in Planung (projektiert) |
Objektzustand | Erstbezug |
Qualität der Austattung | Gehoben |
Heizungsart | Wärmepumpe |
Beschreibung des Objekts
Ausstattung
Dieses moderne Ausbauhaus mit Energieeffizienzklasse KfW 55, ist bereits ausgestattet mit einem Technikpaket. Dieses Paket enthält bereits folgende Leistungen: + Das Planungsgespräch mit unseren Architekten + Das Erstellen eines fachgerechten Bauantrags + Bodenplatte inklusive eines Bodengutachtens + Eine auswählbare Geschosstreppe + Modernes Heizsystem für sparsames heizen + inkl. Fußbodenheizung für eine perfekte Verteilung + Eine Solaranlage zur Warmwasserbereitung + Eine Lüftungsanlage mit Wärmerückgewinnung für saubere und vorgewärmter Luft + Die Lieferung der Dämmung und Beplankung für den Trockenbau + Die Installation der gesamten Elektrotechnik + Die Rohbauinstallation der Sanitäranlagen + Fensterbänke außen montiert + 3-Fach verglaste Kunststofffenster + Eure individuelle Hauseingangstür + Hauskraftwerk PV-Anlage int. Batteriespeicher Informationen zu weiteren Ausbaupaketen, erhaltet ihr von mir..!
Lage
Ein Grundstück wird vom Käufer meistens separat erworben werden. Der Grundstückspreis ist jedoch schon im Gesamtpreis inbegriffen. Der Grundstücksmarkt ist täglich in Bewegung. Wir bieten Ihnen einen kostenfreien Grundstückservice. Sehr gerne prüfen wir über unser professionelles Netzwerk tagesaktuell zur Verfügung stehende Grundstücke für Sie. Sie besitzen bereits ein für Sie perfekt gelegenes Grundstück? Perfekt! Wir haben das passende energieeffiziente Traumhaus (KFW 55, KFW 40, KFW 40+) für Sie. Lassen Sie uns gemeinsam Ihren Traum auf Ihrem Grundstück wahr werden. Egal ob ein freistehendes Ein- oder Zweifamilienhaus, einen Bungalow, eine Stadtvilla, Doppelhaus oder Doppelhaushälfte.
Sonstige Angaben
Mit Massahaus als Baupartner, spart ihr euch jede Menge Zeit und Geld. Denn mit unseren über 45 Jahren Erfahrung mit mehr als 45.000 gebauten Häusern, wissen wir wie man schnell und effektiv Häuser baut. Gerade in der heutigen Zeit, wo die Rohstoffe knapp sind, haben wir vorgesorgt. Wir binden unsere Lieferanten langfristig. Jetzt mal ehrlich: Wen würdet ihr beliefern, den regionalen Zimmermeister oder Deutschlands größtes Fertighaus unternehmen? Fertighaus von der Stange? Auf keinen Fall, bei uns erhalten Sie ein Architektenhaus gepaart mit den effizienten Prozessen eines großen Unternehmens. Schnell und individuell ans Ziel. Weitere Vorteile mit massahaus zu bauen: + Nebenkosten sparen, durch Energieeffizientes bauen + Zeit sparen, durch schnellen Bauprozess ohne Vorlaufzeit + Auch bei Schäden die Kontrolle bewahren durch, Kostenlose Bauversicherung + Schneller Innenausbau durch trockene und geschlossene Baustelle + Zinsen sparen durch starke Finanzierungspartner + Finanzierung auch ohne Eigenkapital + schnell auf die Baustelle, Montage innerhalb von 2-4 Tagen + Mehr Quadratmeter durch präzise Fertigung + ökologisch unterwegs durch die Zertifizierung der DGNB für Nachhaltiges bauen + Austausch mit anderen Baufamilien bei Baustellenbesichtigungen in Ihrer Region Mein zusätzlicher Service für euch als meine Baupartner: + kostenlose Beratung zu den 3 Säulen des Bauens (Haus, Grundstück, Finanzierung) + Grundrissplanung nach euren Vorstellungen und Wünschen + Baubegleitung vom ersten Kennenlernen bis zum Einzug + Prüfung eures Bauplatzes Und noch vieles mehr...!
Grundriss
Erdgeschoss
>

Obergeschoss
>

Erdgeschoss
>

Obergeschoss
>

Adresse
28801 Stuhr
Interessante Orte
Preis- und Lageinformationen
Preistrend für Bestandsimmobilien in Stuhr