Dieser großzügige Walmdachbungalow mit Einliegerwohnung befindet sich in guter und zentraler Ortslage von Augustfehn - ideal für wohnen und arbeiten unter einem Dach oder als Generationenhaus!
Gliederung der Räumlichkeiten:
A) Bungalow
Kellergeschoss
Heizungsraum, zwei Kellerräume, Kellerflur
Erdgeschoss
Eingangsflur mit Gäste-WC, Diele mit Treppenaufgang, Küche, großzügige Wohn- und Essbereich, Schlafzimmer, Arbeitszimmer, Badezimmer, Flur, Hauswirtschaftsraum mit Zugang in die Garage.
Dachgeschoss
Vier Schlafzimmer, Badezimmer und Flur.
Die Wohnfläche beträgt ca. 175,93 m².
B) Einliegerwohnung
Die ebenerdige Einliegerwohnung ist in sich abgeschlossen, dennoch besteht eine direkt Verbindung in die Hauptwohnung.
Offene Küche mit Wohnzimmer, Flur, Badezimmer und Schlafzimmer.
Die Wohnfläche beträgt ca. 46,74 m².
Der Walmdachbungalow wurde im Jahre 1976 in konventioneller Massivbauweise errichtet und verfügt über einen Teilkeller, Erdgeschoss und ein ausgebautes Dachgeschoss. In 1994 erfolgten umfangreiche Um- und Erweiterungsanbauten. Mit diesen Baumaßnahmen wurde die vorhandene Garage erweitert und zu einer Einliegerwohnung umgebaut. Gleichzeitig entstand im Dachgeschoss ein weiteres Zimmer. Auch wurde in diesem Zusammenhang eine neue Garage mit einem Hauswirtschaftsraum fertig gestellt.
Die Hohlschicht des Außenmauerwerks wurde 2009 nachträglich gedämmt.
Das Verkaufsobjekt befindet grundsätzlich in einem gepflegten Gesamtzustand. Es stehen Instandhaltungsmaßnahmen und Renovierungen an.
Das Haus ist seit dem 01.10.2012 auf unbestimmte Zeit vermietet
Im Falle des Eigenbedarfs beträgt die gesetzliche Kündigungsfrist beträgt neun Monate.
Nach Rücksprache mit dem Mieter kann die Übergabe nach Vereinbarung erfolgen.
+++ Bungalow mit Einliegerwohnung in sehr guter Ortskernlage von Augustfehn! +++
26689 Apen
Die vollständige Adresse der Immobilie erhalten Sie vom Anbieter.
Auf Karte anzeigen
Die vollständige Adresse der Immobilie erhalten Sie vom Anbieter.
Finanzierungszertifikat
In nur zwei Minuten zu Ihrem persönlichen Finanzierungszertifkat.
Infos
| Haustyp | Einfamilienhaus |
|---|---|
| Wohnfläche ca. | 222 m2 |
| Nutzfläche | 49,6 m2 |
| Grundstücksfläche | 708 m2 |
| Bezugsfrei ab | nach Vereinbarung |
| Zimmer | 9 |
| Schlafzimmer | 6 |
| Badezimmer | 3 |
| Garage/Stellplatz | Garage |
| Anzahl Garage/Stellplatz | 1 |
Kosten
| Kaufpreis |
218.000 € |
|---|---|
| Provision |
Die Käuferprovision beträgt 3,57 % inkl. 19 % MwSt. vom beurkundeten Kaufpreis. |
Finanzierungsrechner:
Kaufpreis:
600.000 €
Eigenkapital:
600.000 €
Monatliche Rate
0 €
Effektiver Jahreszins
0 %
Sollzinsbindung
10 Jahre
Bausubstanz & Energieausweis
| Baujahr | 1976 |
|---|---|
| Letzte Sanierung | 2009 |
| Objektzustand | Renovierungsbedürftig |
| Qualität der Austattung | Normal |
| Heizungsart | Zentralheizung |
| Wesentliche Energieträger | Gas |
| Energieausweis | liegt vor |
| Energieausweistyp | Bedarfsausweis |
| Energieverbrauchskennwert | 130,3 kWh/(m²*a) |
| Energieeffizienzklasse | E |
130,3
kWh/(m²*a)
Energieeffizienzklasse E
- A+
- A
- B
- C
- D
- E
- F
- G
- H
- 0
- 25
- 50
- 75
- 100
- 125
- 150
- 175
- 200
- 225
- >250
Beschreibung des Objekts
Lage
Sämtliche Versorgungseinrichtungen sind wie auch die medizinische Grundversorgung (Allgemeinmediziner, Zahnärzte, Apotheke), Kindergarten, Grundschule, Haupt- und Realschule am Ort und sind bequem in nur wenigen Minuten zu erreichen.
Augustfehn verfügt über einen Bahnhof an der Bahnstrecke Oldenburg - Leer. Von hier fahren Züge im stündlichen Wechsel in beide Richtungen. Der Bahnhof ist zu Fuß in wenigen Minuten zu erreichen.
Die Kreisstadt Westerstede ist ca. 12 km entfernt. Hier befinden sich u.a. die Ammerland-Klinik, Fachärzte, sämtliche Kreisbehörden und das Gymnasium als weiterführende Schule.
Die Anschlussstelle Nr. 4 der Autobahn (BAB 28) ist nur ca. 5 km entfernt. Die Fahrzeiten nach Oldenburg betragen ca. 30 min, nach Bremen ca. 60 min., nach Leer ca. 20 min. und nach Emden ca. 35 min.
Der bekannte Kurort Bad Zwischenahn ist in ca. 15 Auto- bzw. Bahnminuten zu erreichen.
Sonstige Angaben
Zu diesem Objekt liegt ein ausführliches Exposé mit weiteren Detailinformationen vor, das Sie gerne bei uns anfordern können.
Telefonische Erreichbarkeit:
Montag - Freitag: 8.00 Uhr - 12.30 Uhr und 14.00 Uhr bis 17.30 Uhr
Samstag: 9.00 Uhr -12.00 Uhr
Sie möchten Ihre Immobilie verkaufen.....
..... und suchen den passenden Käufer?
Unabhängig davon, ob Sie aktuell oder erst in unbestimmter Zeit Ihre Immobilie verkaufen möchten, ist eine fundierte Beratung bares Geld wert. Wir wissen, worauf es beim professionellen Verkauf Ihrer Immobilie ankommt.
Über 60 Jahre Marktpräsenz und tausende Vermittlungen sprechen für sich.
Für ein kostenfreies und informatives Beratungsgespräch stehen wir Ihnen jederzeit gerne zur Verfügung.
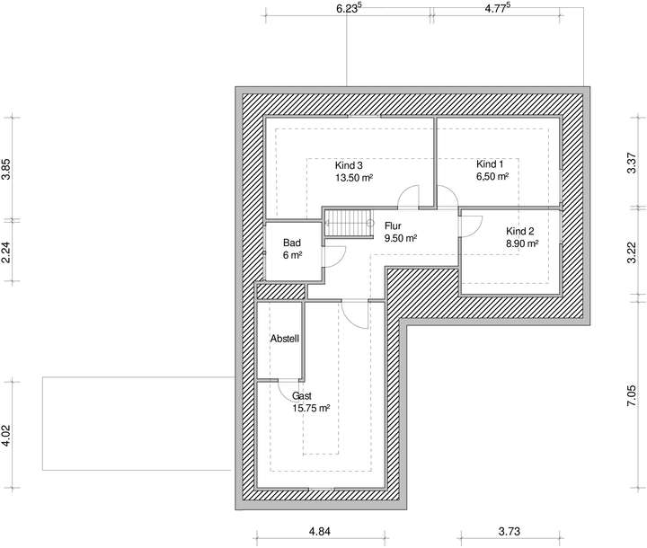
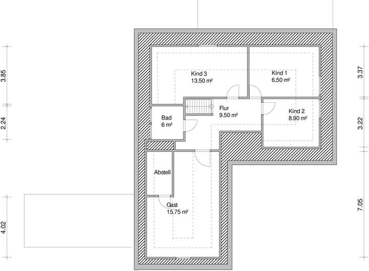
Grundriss
Erdgeschoss
>
>
Dachgeschoss
>
>
Kellergeschoss
>
>
Adresse
26689 Apen
Interessante Orte
Preis- und Lageinformationen
Preistrend für Bestandsimmobilien in Apen