Dieses Objekt in Schladen ist nichts für schwache Nerven – hier wartet eine echte Herausforderung! Die Fachwerk-Doppelhaushälfte ca. aus dem Jahr 1925 ist in einem stark sanierungsbedürftigen Zustand und erfordert entweder eine umfassende Kernsanierung oder den Abriss mit anschließendem Neubau. Wer sich dieser Aufgabe stellt, könnte das Haus in neuem Glanz erstrahlen lassen – oder Platz für eine moderne Alternative schaffen.
Das Haus verfügt über drei Wohnungen mit jeweils ca. 60 m² Wohnfläche, wobei die Dachgeschosswohnung aufgrund der Dachschrägen etwas kleiner ausfällt. Sie ist in den Bauplänen nicht als Wohnraum verzeichnet. Ein Anbau von ca. 1974 erweitert das Haus. Im Untergeschoss, das ursprünglich für einen Pool vorgesehen war – umgesetzt wurde das allerdings nie. Stattdessen gibt es zwei Zimmer, ein Badezimmer und einen kleinen Nebenraum. Im Erd- und Dachgeschoss stehen noch einmal ca. 110 m² Wohnfläche zur Verfügung.
Das Haus ist in einem desolaten Zustand. Massive Feuchtigkeitsschäden haben sich über die Jahre ausgebreitet, Schimmel ist in mehreren Bereichen sichtbar, und ohne eine vollständige Kernsanierung ist das Gebäude nicht mehr bewohnbar.
Alle Angaben in diesem Expose stammen vom Verkäufer und sind uns vom Verkäufer frei gegeben worden. Wir übernehmen deshalb keine Haftung für diese Angaben.
Abriss oder Kernsanierung?
38315 Schladen
Die vollständige Adresse der Immobilie erhalten Sie vom Anbieter.
Auf Karte anzeigen
Die vollständige Adresse der Immobilie erhalten Sie vom Anbieter.
Finanzierungszertifikat
In nur zwei Minuten zu Ihrem persönlichen Finanzierungszertifkat.
Infos
| Haustyp | Mehrfamilienhaus |
|---|---|
| Wohnfläche ca. | 290 m2 |
| Grundstücksfläche | 816 m2 |
| Zimmer | 10 |
| Garage/Stellplatz | Garage |
| Anzahl Garage/Stellplatz | 2 |
Kosten
| Kaufpreis |
80.000 € |
|---|---|
| Provision |
5,95 % inkl. ges. MwSt. |
Finanzierungsrechner:
Kaufpreis:
600.000 €
Eigenkapital:
600.000 €
Monatliche Rate
0 €
Effektiver Jahreszins
0 %
Sollzinsbindung
10 Jahre
Bausubstanz & Energieausweis
| Baujahr | unbekannt |
|---|---|
| Bauphase | Haus fertig gestellt |
| Qualität der Austattung | Einfach |
| Heizungsart | Zentralheizung |
| Wesentliche Energieträger | Öl |
| Energieausweis | liegt vor |
| Energieausweistyp | Bedarfsausweis |
| Energieverbrauchskennwert | 261,1 kWh/(m²*a) |
| Energieeffizienzklasse | H |
261,1
kWh/(m²*a)
Energieeffizienzklasse H
- A+
- A
- B
- C
- D
- E
- F
- G
- H
- 0
- 25
- 50
- 75
- 100
- 125
- 150
- 175
- 200
- 225
- >250
Beschreibung des Objekts
Lage
Schladen ist ein Ortsteil der Gemeinde Schladen-Werla im Landkreis Wolfenbüttel in Niedersachsen. Die Ortschaft liegt zwischen Braunschweig und dem Harz und bietet eine gute Anbindung an die Bundesstraße 82 sowie die Autobahn 36, wodurch Städte wie Wolfenbüttel, Braunschweig und Goslar schnell erreichbar sind.
Schladen ist eine ländlich geprägte Gemeinde mit einer guten Infrastruktur. Es gibt Einkaufsmöglichkeiten, Ärzte, Schulen und Kindergärten. Der Bahnhof Schladen bietet eine Bahnverbindung auf der Strecke Braunschweig–Bad Harzburg, was die Region für Pendler attraktiv macht.
Sonstige Angaben
Fordern Sie noch heute ein aussagekräftiges Exposé mit Grundrissen und weiteren Bildern an.
Wir bitten um Verständnis, dass wir Ihre Anfrage nur bearbeiten können, wenn Sie uns vorher Ihre vollständigen Kontaktdaten mit NAMEN, ADRESSE, EMAIL und eine TELEFONNUMMER mitteilen. Ihre Kontaktdaten werden selbstverständlich vertraulich behandelt und nicht weitergegeben.
Im Web-Exposé finden Sie die Objektadresse, Grundrisse und weitere Bilder. Nutzen Sie das Exposé um sich einen ersten Eindruck von der Immobilie zu verschaffen.
Bitte fordern Sie zuerst das Exposé an, um sich umfassend über die Immobilie zu informieren. Erst bei weitergehendem Interesse können Sie nach einem Besichtigungstermin fragen.
Eine Finanzierungsbestätigung oder ein Bonitätsnachweis erleichtern die Entscheidung für Ihr Angebot und beschleunigt den Prozess. Gerne unterstützen wir Sie auch bei der Finanzierung und können auf Wunsch den Kontakt zu unseren Partnern - erfahrene Finanzberater und Banken - herstellen, um eine passende Finanzierungslösung für Sie zu finden.
Bei weiterführenden Fragen und Interesse an einem Besichtigungstermin nehmen Sie gerne Kontakt mit mir auf.
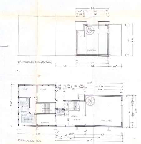
Grundriss
Anbau Erd u. Dachgeschoss
>
>
Ansicht von Osten
>
>
Kellergeschoss
>
>
Schnittzeichnung
>
>
Querschnitt Vorderhaus
>
>
Adresse
38315 Schladen
Interessante Orte
Preis- und Lageinformationen
Preistrend für Bestandsimmobilien in Schladen