Die Erfindung des Bauhauses war ein Meilenstein in der Architekturgeschich-te, die den Hausbau bis heute prägt.
Anlässlich des 100-jährigen Bauhaus-Jubiläums haben wir ein neues Architektenhaus entworfen, was genau diese Merkmale verkörpert.
Escamillo präsentiert sich mit geradlinigen, funktionalen Strukturen, einem modernen Flachdach und einer riesigen Glasfront, welche die Grenze zwischen innen und außen fast verschwinden lässt.
Durch die bodentiefen Fenster werden die Räume mit Tageslicht geflutet und man hat das Gefühl, man säße im Freien
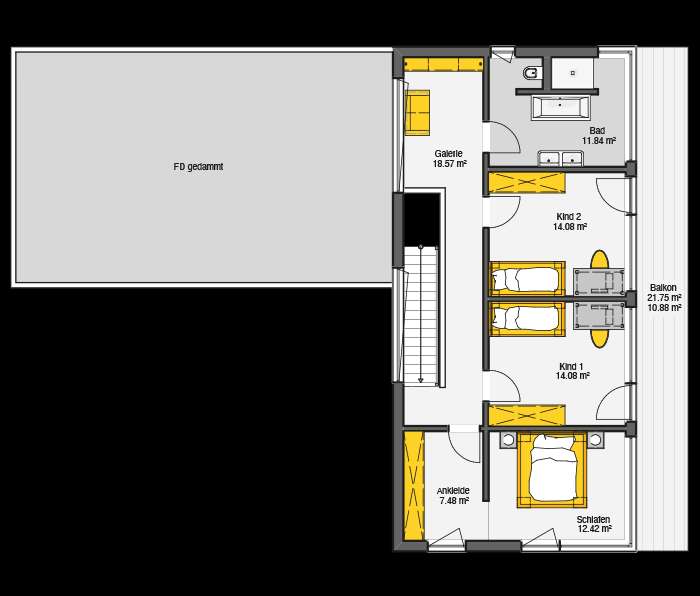
Großzügige 211qm verteilen sich im Escamillo auf zwei Etagen, die über eine Treppe mit schicker Galerie verbunden sind.
Wohnen in Bauhaus Architektur
61267 Neu-Anspach
Die vollständige Adresse der Immobilie erhalten Sie vom Anbieter.
Auf Karte anzeigen
Die vollständige Adresse der Immobilie erhalten Sie vom Anbieter.
Finanzierungszertifikat
In nur zwei Minuten zu Ihrem persönlichen Finanzierungszertifkat.
Infos
| Haustyp | Einfamilienhaus |
|---|---|
| Etagenzahl | 2 |
| Wohnfläche ca. | 211 m2 |
| Grundstücksfläche | 950 m2 |
| Zimmer | 8 |
| Schlafzimmer | 4 |
| Badezimmer | 1 |
Kosten
| Kaufpreis |
1.350.000 € |
|---|---|
| Provision | Nein |
Finanzierungsrechner:
Kaufpreis:
600.000 €
Eigenkapital:
600.000 €
Monatliche Rate
0 €
Effektiver Jahreszins
0 %
Sollzinsbindung
10 Jahre
Bausubstanz & Energieausweis
| Bauphase | Haus in Planung (projektiert) |
|---|---|
| Qualität der Austattung | Gehoben |
Beschreibung des Objekts
Ausstattung
Das Haus ist inklusive Bodenplatte wohn- und schlüsselfertig augestattet.
- hochwertige Böden und Bäder
- smart home
- Luft/Wasser Wärmepumpe
- Fußbodenheizung
- Alu Rollläden
- Raffstores im Wohn- und Essbereich
- 10kW Photovoltaik mit Speicher
- Ladestation
Lage
Ihr neues Zuhause befindet sich in begehrter Lage und angenehmer Nachbarschaft am Ortsrand von Neu-Anspach mit hervorragender Anbindung an die örtliche Infrastruktur und die Verkehrswege.
Sonstige Angaben
Wir bauen in Holzständerbauweise,
individuell, ganz nach Ihren Vorstellungen und Wünschen.
- ökologisch
- nachhaltig
- energieeffizient
- gesund
Die Abbildungen können Sonderausstattungen zeigen, die im Preis nicht enthalten sind.
Grundriss
bbh_hauser_escamillo_grundriss
>
>
bbh_hauser_escamillo_grundriss
>
>
Adresse
61267 Neu-Anspach
Interessante Orte
Preis- und Lageinformationen
Preistrend für Bestandsimmobilien in Neu-Anspach