Die zum Verkauf stehende Doppelhaushälfte wurde im Jahr 1909 errichtet und befindet sich auf einem ca. 567 m² großen Grundstück. Das Einfamilienhaus wurde vor 1970 als Mehrparteienhaus mit drei Wohneinheiten genutzt und kann im Zuge der Sanierung erneut zu einer großzügigen Einheit umgestaltet werden. Eine Baugenehmigung zum Umbau eines Einfamilienhauses in ein Mehrfamilienhaus liegt nicht vor. Die ca. 157 m² Wohnfläche verteilen sich auf drei Etagen, auf welcher jeweils drei Zimmer, ein Tageslichtbadezimmer sowie eine Küche vorzufinden sind. Dementsprechend bietet das großzügige Haus mit seinen neun Zimmern viel Platz für Familien, die Wert auf Raum und Komfort legen.
Die Immobilie verfügt über einen Kriechkeller sowie eine Teilkeller und weist bauzeittypische Feuchtigkeit auf. Für das Haus besteht kein Mietverhältnis und es ist ab sofort bezugsfertig. Weiterführende Unterlagen lassen wir Ihnen gerne nach einer Besichtigung zukommen.
Doppelhaushälfte mit großem Garten
22339 Hamburg
Die vollständige Adresse der Immobilie erhalten Sie vom Anbieter.
Auf Karte anzeigen
Die vollständige Adresse der Immobilie erhalten Sie vom Anbieter.
Finanzierungszertifikat
In nur zwei Minuten zu Ihrem persönlichen Finanzierungszertifkat.
Infos
| Haustyp | Doppelhaushaelfte |
|---|---|
| Wohnfläche ca. | 157 m2 |
| Nutzfläche | 94 m2 |
| Grundstücksfläche | 567 m2 |
| Bezugsfrei ab | nach Vereinbarung |
| Zimmer | 9 |
| Schlafzimmer | 8 |
| Badezimmer | 3 |
Kosten
| Kaufpreis |
585.000 € |
|---|---|
| Provision |
3,57 % inkl. MwSt. |
Finanzierungsrechner:
Kaufpreis:
600.000 €
Eigenkapital:
600.000 €
Monatliche Rate
0 €
Effektiver Jahreszins
0 %
Sollzinsbindung
10 Jahre
Bausubstanz & Energieausweis
| Baujahr | 1909 |
|---|---|
| Heizungsart | Gas-Heizung |
| Wesentliche Energieträger | Erdgas leicht |
| Energieausweis | liegt vor |
| Energieausweistyp | Bedarfsausweis |
| Energieverbrauchskennwert | 445,5 kWh/(m²*a) |
| Energieeffizienzklasse | H |
445,5
kWh/(m²*a)
Energieeffizienzklasse H
- A+
- A
- B
- C
- D
- E
- F
- G
- H
- 0
- 25
- 50
- 75
- 100
- 125
- 150
- 175
- 200
- 225
- >250
Beschreibung des Objekts
Ausstattung
Die Immobilie wurde zuletzt als offenes Einfamilienhaus genutzt, bei welchem jedoch keine Umbaumaßnahmen stattfanden und dementsprechend nach wie vor in drei Einheiten unterteilt ist. Nach Betreten des Hauses gelangen Sie über einen kleinen Flur in den Keller sowie in die erste Wohneinheit im Erdgeschoss. Die repräsentative Wendeltreppe der Immobilie führt in die beiden oberen Wohneinheiten des ersten Obergeschosses und Dachgeschosses. Die Immobilie bietet viel Potenzial zur individuellen Gestaltung und Sanierung nach Ihren Vorstellungen. Im Erdgeschoss bietet die Küche einen Zugang zur nach Osten ausgerichtete ca. 57 m² großen Terrasse mit angrenzendem Garten. Der offen gestaltete Wohn- und Essbereich ist durch die zweiseitige Belichtung freundlich und hell. Die Badezimmer im Erdgeschoss sowie den oberen Etagen stammen aus den Jahren 1960 bis 1990 und bieten eine solide Basis für zeitgemäße Renovierungsarbeiten. Die Küche des Obergeschosses verfügt noch über die Anschlüsse, wurde als solche jedoch zuletzt nicht mehr genutzt. Der großzügige und ruhig gelegene Garten lädt zur Erholung und kreativen Nutzung ein, während ein charmanter Schuppen zusätzlichen Stauraum bietet.
Lage
Die Doppelhaushälfte befindet sich im beliebten Fuhlsbüttel, einem äußerst familienfreundlichen und infrastrukturstarken Stadtteil im Norden Hamburgs mit einer reichen Geschichte und einer lebendigen Gemeinschaft. Bekannt ist Fuhlsbüttel vor allem für seinen Flughafen – den Hamburg Airport – ist jedoch auch ein beliebtes Wohngebiet mit einer Mischung aus Wohnhäusern, Parks und Grünflächen. So bietet dieser Stadtteil auch Erholungsmöglichkeiten im Grünen, wie den bei Joggern und Radfahrern beliebten Alsterwanderweg und den Alstervorlandpark. Auch zahlreiche Einkaufsmöglichkeiten, Schulen, Kindergärten und Freizeiteinrichtungen sind in größerer Zahl vorhanden. Der unweit gelegene und zu Fuß erreichbare Erdkampsweg bietet zahlreiche Einkaufsmöglichkeiten besonders den charakteristischen Wochenmarkt, verschiedene Geschäfte als auch gemütliche Restaurants und Cafés. Durch die gute Verkehrsanbindung mit U-Bahn, S-Bahn und Bus ist Fuhlsbüttel gut an das Hamburger Stadtzentrum und andere Stadtteile angebunden. Fuhlsbüttel ist ein aktiver und attraktiver Stadtteil, der sowohl für Familien als auch für Berufstätige und Reisende eine ideale Wohn- und Aufenthaltslage bietet.
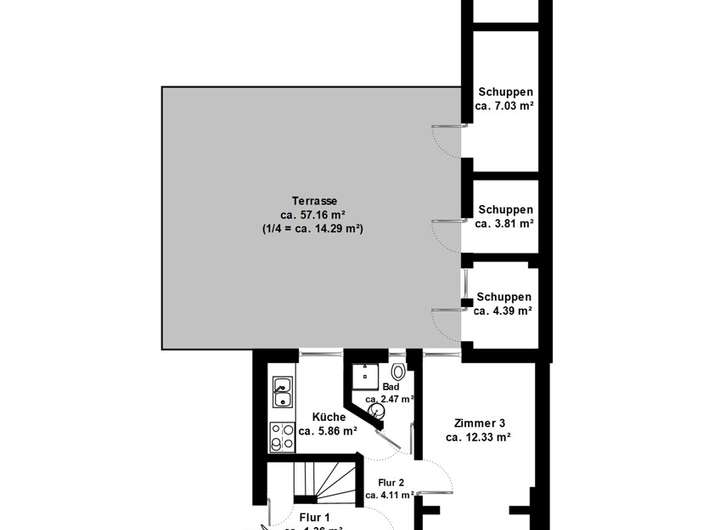
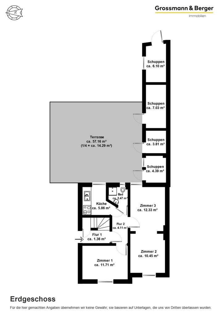
Grundriss
Erdgeschoss
>
>
Obergeschoss
>
>
Dachgeschoss
>
>
Kellergeschoss
>
>
Spitzboden
>
>
Adresse
22339 Hamburg
Interessante Orte
Preis- und Lageinformationen
Preistrend für Bestandsimmobilien in Fuhlsbüttel