Das 1998 erbaute Doppelhaus, von dem die linke Hälfte verkauft werden soll, liegt in einem reinen Wohngebiet in BS-Thune auf einem Erbpachtgrundstück. Die Erbpacht beträgt zZ. mit ca 263,-€ im Monat. Restlaufzeit: 71 Jahre
Sehr gepflegte Doppelhaushälfte auf Erbpacht-Grundstück in BS-Thune
38110 Braunschweig
Die vollständige Adresse der Immobilie erhalten Sie vom Anbieter.
Auf Karte anzeigen
Die vollständige Adresse der Immobilie erhalten Sie vom Anbieter.
Finanzierungszertifikat
In nur zwei Minuten zu Ihrem persönlichen Finanzierungszertifkat.
Infos
| Haustyp | Doppelhaushaelfte |
|---|---|
| Etagenzahl | 2 |
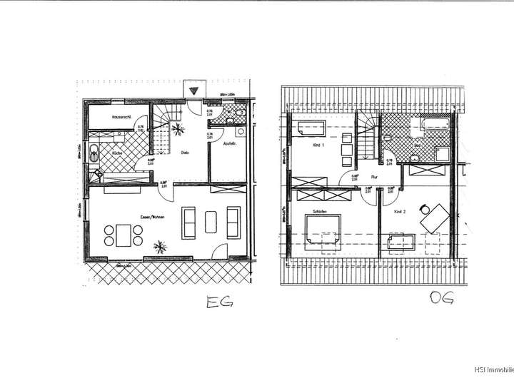
| Wohnfläche ca. | 120 m2 |
| Grundstücksfläche | 499 m2 |
| Zimmer | 4 |
| Schlafzimmer | 3 |
| Badezimmer | 1 |
Kosten
| Kaufpreis |
280.000 € |
|---|---|
| Provision |
3,57 |
Finanzierungsrechner:
Kaufpreis:
600.000 €
Eigenkapital:
600.000 €
Monatliche Rate
0 €
Effektiver Jahreszins
0 %
Sollzinsbindung
10 Jahre
Bausubstanz & Energieausweis
| Baujahr | 1998 |
|---|---|
| Objektzustand | Gepflegt |
| Heizungsart | Gas-Heizung |
| Wesentliche Energieträger | Gas |
| Energieausweis | liegt vor |
| Energieausweistyp | Bedarfsausweis |
| Energieverbrauchskennwert | 173,3 kWh/(m²*a) |
Beschreibung des Objekts
Ausstattung
- massives, gedämmtes Mauerwerk mit Satteldach
- großzügige Raumaufteilung
- Gasheizung aus 2022
- 2-fach verglaste Kunststoff-Fenster
- Dachfenster 2022, teils mit Rolläden (Außenjalousie Solar)
- Holztüren, teils mit Glasausschnitt
Lage
Die Siedlungsgebiete Thunes befinden sich weitestgehend nördlich des Mittellandkanals.
Einkaufsmöglichkeiten sind im nahe gelegenden Stadtteil Wenden gegeben.
Der Thuner Sundern ist seit 2024 zum Naturschutzgebiet erklärt worden.
Über die Kreisstraße 27 ist der Stadtteil mit Harxbüttel und über die Kreisstraße 28 mit Braunschweig verbunden. Nordöstlich befindet sich die Bundesstraße 4, welche die Stadt Braunschweig mit dem Landkreis Gifhorn verbindet. Über die Tangente A 391 ist das Autobahnkreuz Braunschweig-Nord schnell erreichbar.
Verkehr:
Der Ort ist durch Busse und Straßenbahnen der Braunschweiger Verkehrs-GmbH an das öffentliche Nahverkehrsnetz angeschlossen.
Thune liegt am Mittellandkanal. Neben einer Düngemittelfirma, ist hierauch ein Anleger des Wasserstraßen- und Schifffahrtsamt Braunschweigs.
Sonstige Angaben
Provisionshinweise:
Der Maklervertrag mit uns kommt durch die Bestätigung der Inanspruchnahme unserer Maklertätigkeit in Textform zustande. Die Höhe der Courtage richtet sich ab dem 23.12.2020 in Kraft getretenen gesetzlichen Regelungen zur Teilung der Maklercourtage. Hiernach wird die Courtage für beide Parteien (Eigentümer und Käufer) 3,57% auf den Kaufpreis einschließlich gesetzlicher Mehrwertsteuer betragen und ist bei notariellem Vertragsabschluss verdient und fällig. Grunderwerbssteuer, Notar- und Gerichtskosten trägt der Käufer.
Allgemein:
Alle Angaben sind ohne Gewähr und basieren ausschließlich auf Informationen, die uns von unserem Auftraggeber übermittelt wurden. Wir übernehmen keine Gewähr für die Vollständigkeit, Richtigkeit und Aktualität dieser Angaben. Zwischenverkauf bleibt vorbehalten. Sollte das von uns nachgewiesene Objekt bereits bekannt sein, teilen Sie uns dieses bitte unverzüglich mit. Die Weitergabe dieses Exposees an Dritte ohne unsere Zustimmung löst gegebenenfalls Courtage- bzw. Schadensersatzansprüche aus.
Bitte stimmen Sie den Besichtigungstermin nur mit der Margret Scharf Immobilien GbR ab.
Adresse
38110 Braunschweig
Interessante Orte
Preis- und Lageinformationen
Preistrend für Bestandsimmobilien in Wenden-Thune-Harxbüttel