Erfahrene Baupartner planen und realisieren Ihr Haus ganz individuell nach Ihren
Vorstellungen und das ganze Massiv - Stein auf Stein.
Da die Wohnwünsche durchaus sehr vielfältig sind sollte ein Haus „von der Stange“
für Sie nur die 2. Wahl sein. Daher entstehen hier Häuser die im Grunde für jeden
Kunden neu geplant und dann errichtet werden. Somit sind Ihre Wünsche unser
Bauplan!
VORTEILE für Bauherren AUF EINEN BLICK:
• Bei dem hier angegebenen Preis ist bereits der Bauplatz und das schlüsselfertige/
bezugsfertige Haus inklusive. Damit sind auch bereits alle Boden- und Wandbeläge,
Anschlüsse, Bäder etc. einkalkuliert.
• Festpreisgarantie
• Bauzeitgarantie
• 10 Prozent Vertragserfüllungsbürgschaft
Handbuch _ Exposéerstellung
• 5 Prozent Gewährleistungsbürgschaft
• Übernahme der gesamten Baukoordination
• freie & individuelle Planung durch Architekten
• aktive Nutzung aktueller Fördermöglichkeiten
• Bau- und Kostenkontrolle
• kein „Bauträger-Ausfallrisiko“
• kein „Bauträger-Aufschlag“
• Direktverträge mit auf Qualität und Bonität geprüften Handwerksbetrieben
• solide Massivbauweise
• modernste Haus- und Heiztechnik
• Ausstattung mit exakt benannten Produkten namhafter & geprüfter
Markenhersteller
• Güte- und Qualitätskontrolle: Durch eine neutrale Bauleitung, die keinem
Bauträger weisungsgebunden ist, haben Sie die SICHERHEIT, dass Ihre Interessen
vertreten werden. Gleichzeit werden alle Bauvorhaben durch Sachverständige der
DEKRA als zusätzliches Qualitätscontrolling überwacht.
• Zahlungsabwicklung: Gemäß einem alten, handwerklichen und kaufmännischen
Prinzip zahlen Sie bei unseren Partnern erst dann, wenn Leistungen erbracht
wurden.
Diese faire Zahlungsweise bringt Ihnen SICHERHEIT, dass Sie nur das bezahlen, was auch erbracht wurde.
Massives Architenkenhaus im Herzen Worms
67551 Worms
Die vollständige Adresse der Immobilie erhalten Sie vom Anbieter.
Auf Karte anzeigen
Die vollständige Adresse der Immobilie erhalten Sie vom Anbieter.
Finanzierungszertifikat
In nur zwei Minuten zu Ihrem persönlichen Finanzierungszertifkat.
Infos
| Wohnfläche ca. | 185 m2 |
|---|---|
| Grundstücksfläche | 640 m2 |
| Zimmer | 6 |
Kosten
| Kaufpreis |
760.000 € |
|---|---|
| Provision | Nein |
Finanzierungsrechner:
Kaufpreis:
600.000 €
Eigenkapital:
600.000 €
Monatliche Rate
0 €
Effektiver Jahreszins
0 %
Sollzinsbindung
10 Jahre
Bausubstanz & Energieausweis
| Bauphase | Haus in Planung (projektiert) |
|---|---|
| Objektzustand | Erstbezug |
Beschreibung des Objekts
Ausstattung
MIT WENIGER SOLLTEN SIE SICH NICHT ZUFRIEDEN GEBEN:
• Erfahrung: Den Erfahrungsschatz aus über 1.000 Bauvorhaben möchten wir Ihnen
gerne bei Ihrem Bauprojekt zur Verfügung stellen.
Von Planung bis Fertigstellung dient diese Erfahrung Ihrer SICHERHEIT.
• Ein Eigenheim sollte gebaut für Generationen, wertbeständig und solide sein. Aus
diesem Grund bauen Sie mit unseren Partnern in der traditionellen und bewährten,
massiven Bauweise.
• Durch die massive Bauweise ist außer der sehr guten Wärmedämmung auch ein
sehr guter Schall- und Brandschutz gewährleistet.
• Mit unseren Partnern gibt es keine unveränderbaren Typenhäuser, somit sind wir in
der Lage sämtliche Bauherrenwünsche umzusetzen und an alle
Bebauungsvorschriften anzupassen.
• Für jedes Haus wird ein Energiepass – nach individueller Wärmebedarfsberechnung
erstellt und dem Bauherren ausgehändigt.
• Für jedes Haus wird ein Ökopass erstellt und dem Bauherren ausgehändigt.
• Heizen, dass ist nicht einfach nur Wärme! Moderne Heiztechnik fordert heute hohe
Wirtschaftlichkeit und saubere, emissionsarme Verbrennung. Unsere Partner stehen
für Brennwertnutzung auf dem neusten Stand der Technik in Kooperation mit dem
Hersteller VIESSMANN.
• Um eine optimale Wohnraumnutzung auch im Dachgeschoss zu gewährleisten,
werden alle Häuser mit einem überdurchschnittlich hohen Kniestock geplant.
• Gern unterstützen unsere Finanzierungsfachberater Sie bei der Ausarbeitung von
Finanzierungsanträgen und sind bei der Beantragung von Fördermitteln gerne
behilflich.
Selbstverständlich sind unsere Partner auch Profis für bewährte Innovationen wie
z.B. Solartechnik, Regenwassernutzung, BUS- Elektrosystemtechnik, Erdwärme,
kontrollierte Be- und Entlüftung und vieles mehr.
Lage
Worms gilt mit seinen rd. 84.000 Einwohnern als kreisfreie Stadt gelegen im südöstlichen Rheinland-Pfalz und damit am Rand der Metropolregionen Rhein-Neckar und Rhein-Main.
Kulturell gesehen ist Worms auch als Nibelungen- und Lutherstadt für seinen Dom bekannt. Dieser bildet, neben dem Mainzer und Speyerer Dom, einen der drei Kaiserdome.
Des Weiteren bietet das jährliche Jazzfestival Jazz & Joy eine willkommene Abwechslung und zieht jährlich rd. 20.000 Besucher in die Altstadt. Darüber hinaus umrunden die Stadt zahlreiche Weinberge für einen Ausflug ins Grüne.
Zudem gelangt man in rd. 30 min über die A61 nach Mannheim, in 40 min über die A6 nach Heidelberg und in 45 min nach Darmstadt, Mainz und Wiesbaden.
Sonstige Angaben
***!!***
A C H T U N G:
WEITERE ANGEBOTE FINDEN SIE UNTER: www.dFlair.de
WICHTIGER HINWEIS:
Alle Angaben zu Größe, Güte und Beschaffenheit, Bebaubarkeit oder sonstige Eigenschaften
erfolgen ohne eine Gewährleistung durch dFlair Immobilien und dessen Mitarbeiter. Alle
Angaben sind ohne Gewähr und basieren ausschließlich auf Informationen, die uns von
unserem Auftraggeber zur Verfügung gestellt wurden. Wir übernehmen keinerlei Gewähr für
die Vollständigkeit, Richtigkeit und Aktualität dieser Angaben. Die Kauf- und
Baunebenkosten wie u. A. Grunderwerbsteuer, Notar und Grundbuchkosten etc. sind vom
Käufer zu tragen. Irrtum und Zwischenverkauf vorbehalten.
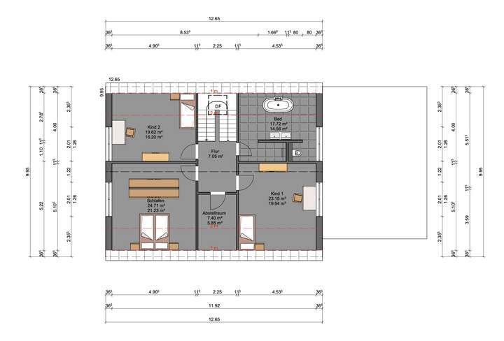
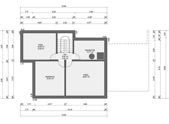
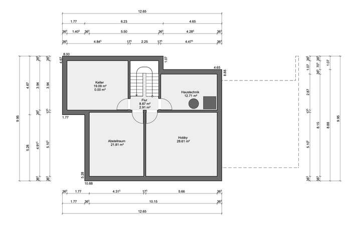
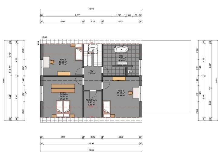
Grundriss
Grundriss_EG
>
>
Grundriss_OG
>
>
Grundriss_Keller (Sonderwunsch
>
>
Adresse
67551 Worms
Interessante Orte
Preis- und Lageinformationen
Preistrend für Bestandsimmobilien in Pfeddersheim