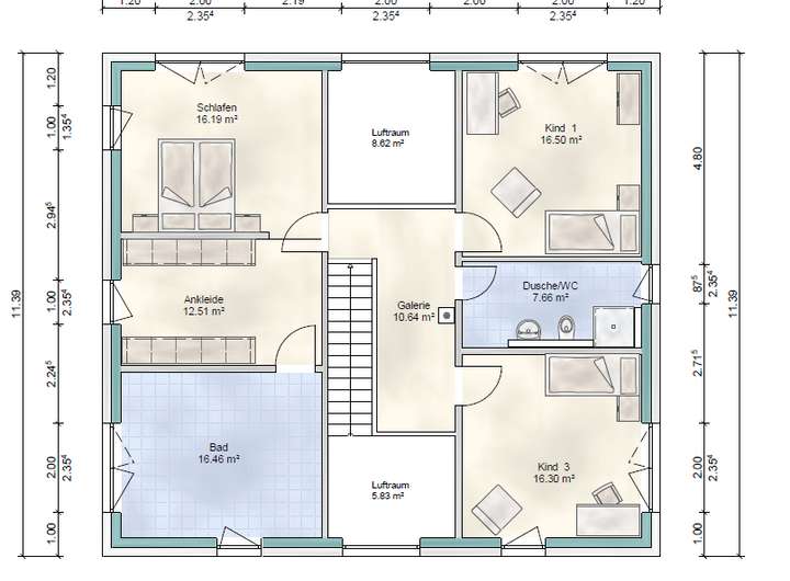
Einfamilienhaus mit neuartiger Raumaufteilung
Dieses Einfamilienhaus besticht durch seinen modernen und geschmackvollen
Baustil. Der offene Wohnbereich wird durch eine stilvolle Küche
mit freistehender Kochinsel ergänzt, die das Herzstück des Hauses bilden
und zum Kochen und Genießen einladen. Ein praktisches Duschbad im
Erdgeschoss sorgt für zusätzlichen Komfort. Durch die besondere Baukonstruktion
entsteht ein überdachter Außenbereich, der ideal für gemütliche
Stunden im Freien genutzt werden kann. Im Obergeschoss bieten drei
großzügige Kinderzimmer viel Platz zum Spielen und Entspannen. Das
Elternzimmer beeindruckt mit einem angrenzenden Ankleideraum und
einem großräumigen Duschbad, das einen privaten Rückzugsort schafft.
Schicke Massive Stadtvilla von EinsteinHaus
55442 Stromberg
Die vollständige Adresse der Immobilie erhalten Sie vom Anbieter.
Auf Karte anzeigen
Die vollständige Adresse der Immobilie erhalten Sie vom Anbieter.
Finanzierungszertifikat
In nur zwei Minuten zu Ihrem persönlichen Finanzierungszertifkat.
Infos
| Haustyp | Villa |
|---|---|
| Etagenzahl | 2 |
| Wohnfläche ca. | 210 m2 |
| Nutzfläche | 213 m2 |
| Grundstücksfläche | 660 m2 |
| Bezugsfrei ab | 2026 |
| Zimmer | 7 |
| Schlafzimmer | 4 |
| Badezimmer | 2 |
| Anzahl Garage/Stellplatz | 3 |
Kosten
| Kaufpreis |
549.900 € |
|---|---|
| Provision | Nein |
Finanzierungsrechner:
Kaufpreis:
600.000 €
Eigenkapital:
600.000 €
Monatliche Rate
0 €
Effektiver Jahreszins
0 %
Sollzinsbindung
10 Jahre
Bausubstanz & Energieausweis
| Bauphase | Haus in Planung (projektiert) |
|---|---|
| Objektzustand | Erstbezug |
| Qualität der Austattung | Gehoben |
| Heizungsart | Wärmepumpe |
Beschreibung des Objekts
Ausstattung
Wärmepumpe mit Fußbodenheizung in allen Räumen.
3fach Verglasung
Einsteinhaus Klimastein
KFW 40 Standard
Bodengutachten
Architektenplanung
Lage
Sehr schönes Grundstück mit 180 Grad
Fernsicht unverbaubar.
Sehr ruhige Lage 2 Minuten Gehzeit zum Golfplatz und Wald.
Glasfaser vorhanden.
Sonstige Angaben
Das Angebotene Haus ist Technikfertig.
Grunderwerbsteuer 5500,00€ werden nur für das Grundstück fällig, nicht wie in der Anzeige angegeben für das ganze Bauvorhaben.
Kellerbau mit Doppelgarage ist möglich.
Grundriss
Screenshot 2025-04-11 110705
>
>
Screenshot 2025-04-11 110734
>
>
Adresse
55442 Stromberg
Interessante Orte
Preis- und Lageinformationen
Preistrend für Bestandsimmobilien in Stromberg