Ein modernes Satteldachhaus, das alleine schon durch die dunkelgraue Fassade ein echter Eyecatcher ist.
Diese moderne Ästhetik zieht sich auch im Inneren des Hauses durch, wo Holz auf klare Linien und anthrazit trifft.
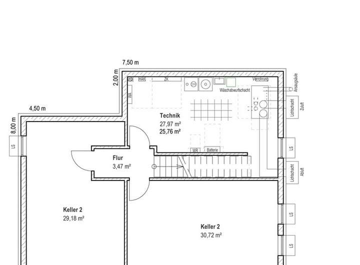
Das moderne Satteldachhaus beherbergt eine Familie mit vier Personen, der Keller (nicht im Angebot enthalten) bietet neben Raum für die Haustechnik noch zwei zusätzliche Räume, also auch eine Menge Stauraum.
Betritt man das Haus, so liegen rechts WC, Abstellraum und dahinter die Garderobe, geraudeaus kommt man in den großzügigen Wohn-Ess-Kochbereich und einmal umdrehen führt zur geradläufigen Treppe ins OG, wo neben zwei Kinderzimmern das Gemeinschaftsbad und der Elternbereich mit Schlafzimmer und Ankleide liegen sowie der Luftraum über dem Esszimmer, der für ein erhabenes Raumgefühl sorgt, wenn man sich durch den großzügigen Wohn-Ess-Kochbereich des modernen Satteldachhauses bewegt.
Das Besondere:
-Individuelle Planung entsprechend Ihrer Wünsche ist unter Berücksichtigung von Minderpreis / Mehrpreis mit unseren Architekten gerne möglich.
(Abbildungen zeigen Sonderausstattungen)
LUXHAUS Einfamilienhaus 162 m² alles individuell planbar Schlüsselfertig 100% Wohlfühlklima
65329 Hohenstein
Die vollständige Adresse der Immobilie erhalten Sie vom Anbieter.
Auf Karte anzeigen
Die vollständige Adresse der Immobilie erhalten Sie vom Anbieter.
Finanzierungszertifikat
In nur zwei Minuten zu Ihrem persönlichen Finanzierungszertifkat.
Infos
| Haustyp | Einfamilienhaus |
|---|---|
| Etagenzahl | 2 |
| Wohnfläche ca. | 162 m2 |
| Grundstücksfläche | 700 m2 |
| Zimmer | 7 |
Kosten
| Kaufpreis |
779.000 € |
|---|---|
| Provision | Nein |
Finanzierungsrechner:
Kaufpreis:
600.000 €
Eigenkapital:
600.000 €
Monatliche Rate
0 €
Effektiver Jahreszins
0 %
Sollzinsbindung
10 Jahre
Bausubstanz & Energieausweis
| Baujahr | 2026 |
|---|---|
| Bauphase | Haus in Planung (projektiert) |
| Objektzustand | Erstbezug |
| Qualität der Austattung | Gehoben |
| Heizungsart | Wärmepumpe |
| Wesentliche Energieträger | Strom |
Beschreibung des Objekts
Ausstattung
LUXHAUS INDIVIDUALITÄT:
Für jeden Geschmack für jeden Anspruch die LUXHAUS Individualität:
-Anpassung der Baukörpergröße.
-Wahl der Dachform Walmdach - Satteldach – Pultdach – Flachdach.
-Individuelle Änderung der Raumaufteilung.
-Mit Keller oder auf Bodenplatte.
-Vier unterschiedliche Ausbaustufen.
-Rundumbetreuung vom ersten Tag bis zur Schlüsselübergabe und selbstverständlich auch darüber hinaus.
-Bankenunabhängiger LUXHAUS Finanzierungsservice.
-Alles aus einer Hand.
-Planen Sie Ihr persönliches LUXHAUS nach Ihren Wünschen und Bedürfnissen komplett individuell mit unseren Architekten.
Unter der Voraussetzung der Einhaltung vom Bebauungsplan.
Lage
Das Baugrundstück befindet sich in einer ruhigen Seitenstraße am oberen Westhang des ländlich geprägten Ortes Born, das zu Hohenstein gehört.
Sonstige Angaben
Besichtigungstermine
Beratungstermine gerne nach Terminvereinbarung.
Weitere Dokumente
AufgeschluesseltMehrwerte
Finanzierung
Sentinel Zertifikat Wohngesund
Grundriss
11
>
>
12
>
>
14
>
>
Adresse
65329 Hohenstein
Interessante Orte
Preis- und Lageinformationen
Preistrend für Bestandsimmobilien in Hohenstein