Schmale Stützen, die das auskragende Dach tragen, der sich um die Glasfassade schmiegende Rahmen und die großzügige überdachte Dachterrasse verleihen dem sonst schlichten Baukörper Raffinesse und Eleganz.
Das Rahmenthema setzt sich auch im Innenraum fort, wo die klassische Galerie mit großen Fensterausschnitten neu interpretiert wird.
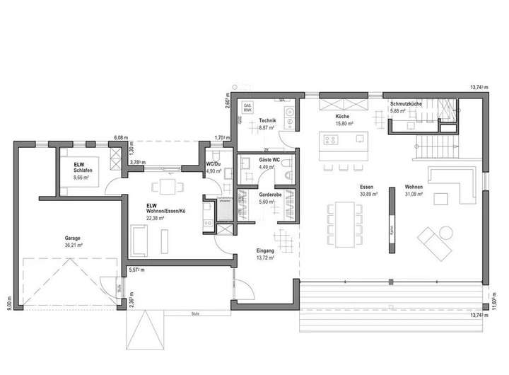
Eine repräsentative Wohn-Ess-Situation mit einer Art-Déco inspirierten Küche sowie einer zusätzlichen Spülküche, in der benutztes Geschirr und Küchenabfälle sofort aus dem Blickfeld verschwinden, verbindet Luxus und Funktion.
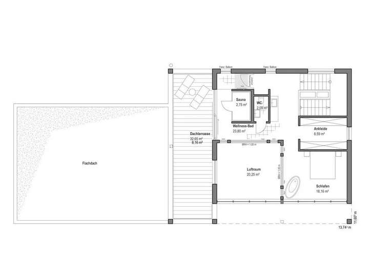
Das für zwei Personen ausgelegte Obergeschoss bietet ein Bad-Konzept, das fließend in Ankleide und Schlafzimmer übergeht. Die Glasfront sorgt für ein fantastisches Raumgefühl und viel Licht, die Dachterrasse kann durch die Überdachung als Erweiterung des Wohnraums genutzt werden.
Die ausgeklügelte Haustechnik ermöglicht es über Photovoltaik mehr Energieertrag als -verbrauch zu erwirtschaften. Ein zukunftsorientiertes Plus-Energie-Haus von zeitloser Ästhetik.
So wie das Haus als realisiert wurde, könnte der eingeschossige Anbau gut als Gästebereich mit eigenem Duschbad und eigener Terrasse, teilweise Loggia, genutzt werden. Wünscht der Bauherr eine Einliegerwohnung, würde der Zugang zur Wohnung separat mit einer zweiten Eingangstür von außen eingeplant werden. Neben der Garderobe kann dann zwischen zwei Wänden eine Kochzeile integriert werden.
Einen eigenen Abstellraum gibt es außerdem.
Das Besondere:
-Individuelle Planung entsprechend Ihrer Wünsche ist unter Berücksichtigung von Minderpreis / Mehrpreis mit unseren Architekten gerne möglich.
(Abbildungen zeigen Sonderausstattungen)
LUXHAUS Villa mit Aussicht 202m² WF inkl. Keller alles noch individuell planbar Schlüsselfertig
65329 Hohenstein
Die vollständige Adresse der Immobilie erhalten Sie vom Anbieter.
Auf Karte anzeigen
Die vollständige Adresse der Immobilie erhalten Sie vom Anbieter.
Finanzierungszertifikat
In nur zwei Minuten zu Ihrem persönlichen Finanzierungszertifkat.
Infos
| Haustyp | Villa |
|---|---|
| Etagenzahl | 2 |
| Wohnfläche ca. | 202 m2 |
| Grundstücksfläche | 700 m2 |
| Zimmer | 6 |
Kosten
| Kaufpreis |
1.089.000 € |
|---|---|
| Provision | Nein |
Finanzierungsrechner:
Kaufpreis:
600.000 €
Eigenkapital:
600.000 €
Monatliche Rate
0 €
Effektiver Jahreszins
0 %
Sollzinsbindung
10 Jahre
Bausubstanz & Energieausweis
| Baujahr | 2026 |
|---|---|
| Bauphase | Haus in Planung (projektiert) |
| Objektzustand | Erstbezug |
| Qualität der Austattung | Gehoben |
| Heizungsart | Wärmepumpe |
| Wesentliche Energieträger | Strom |
Beschreibung des Objekts
Ausstattung
LUXHAUS INDIVIDUALITÄT:
Für jeden Geschmack für jeden Anspruch die LUXHAUS Individualität:
-Anpassung der Baukörpergröße.
-Wahl der Dachform Walmdach - Satteldach – Pultdach – Flachdach.
-Individuelle Änderung der Raumaufteilung.
-Mit Keller oder auf Bodenplatte.
-Vier unterschiedliche Ausbaustufen.
-Rundumbetreuung vom ersten Tag bis zur Schlüsselübergabe und selbstverständlich auch darüber hinaus.
-Bankenunabhängiger LUXHAUS Finanzierungsservice.
-Alles aus einer Hand.
-Planen Sie Ihr persönliches LUXHAUS nach Ihren Wünschen und Bedürfnissen komplett individuell mit unseren Architekten.
Unter der Voraussetzung der Einhaltung vom Bebauungsplan.
Lage
65329 Hohenstein
Sonstige Angaben
Besichtigungstermine
Beratungstermine gerne nach Terminvereinbarung.
Weitere Dokumente
AufgeschluesseltMehrwerte
Finanzierung
Sentinel Zertifikat Wohngesund
Grundriss
8
>
>
9
>
>
Adresse
65329 Hohenstein
Interessante Orte
Preis- und Lageinformationen
Preistrend für Bestandsimmobilien in Hohenstein