Das freistehende Einfamilienhaus in Bösdorf bei Oebisfelde vereint historischen Charme mit modernem Komfort und bietet auf rund 160 m² Wohnfläche verteilt auf Erd- und Dachgeschoss insgesamt fünf Zimmer. Erbaut um 1900, wurden im Jahr 1993 einige Sanierungen durchgeführt: Die Fenster wurden erneuert, das Dach neu eingedeckt, das Vollbad modernisiert und die Elektroanlage größtenteils erneuert. Zeitgleich wurde eine Gaszentralheizung installiert, die das Haus heute zuverlässig versorgt, jedoch hinsichtlich Energieeffizienz noch optimiert werden könnte.
Das rechteckige Grundstück von 483 m² eröffnet vielfältige Gestaltungsmöglichkeiten, sei es für eine großzügige Terrasse, einen blühenden Garten oder einen Carport.
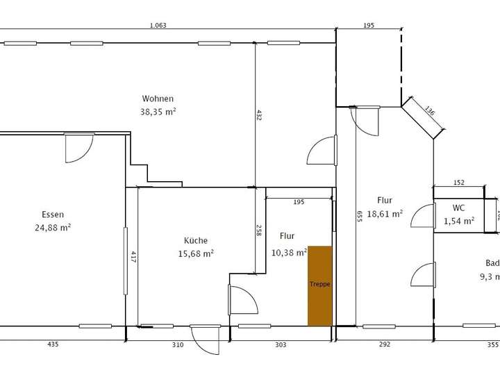
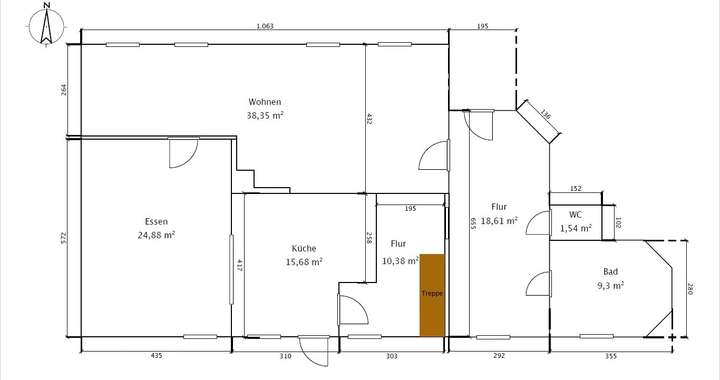
Im Erdgeschoss begrüßt Sie ein großer Wohn und Essbereich mit direktem Zugang zum Außenbereich, eine geräumige Küche, das modernisierte Bad sowie ein großzügiger Flur.
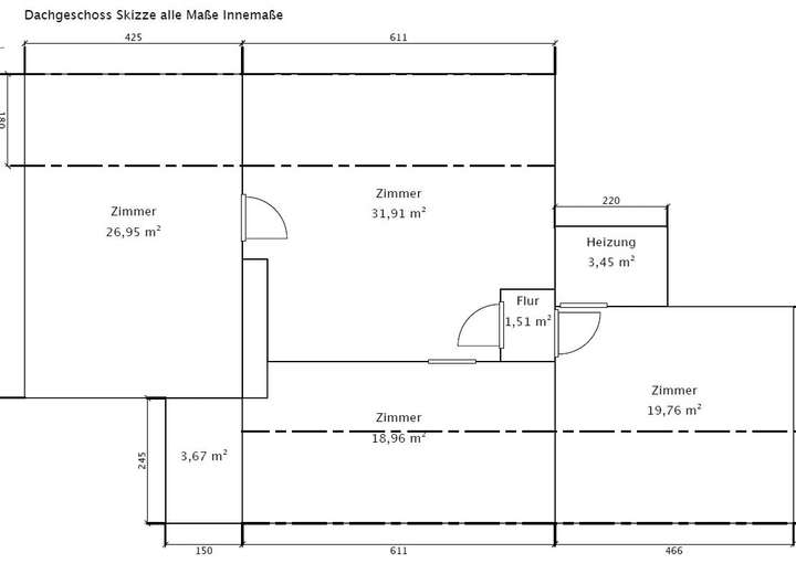
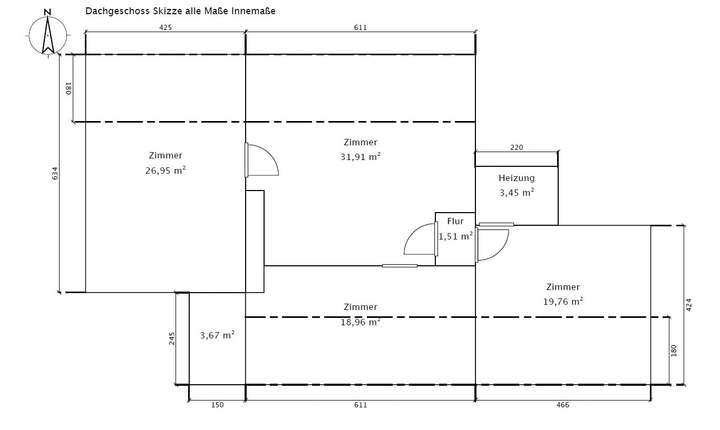
Im Dachgeschoss finden Sie 4 weitere Zimmer.
Zwar stehen noch Renovierungsmaßnahmen wie Bodenbeläge, Malerarbeiten und möglicherweise ein Heizungs Upgrade an, doch gerade für handwerklich versierte Käufer eröffnet sich hier die Chance, dieses historische Haus nach eigenen Vorstellungen auf den neuesten Stand zu bringen und ganz individuell zu gestalten.
Altbau mit Charakter wartet auf Ideen!
39359 Bösdorf
Die vollständige Adresse der Immobilie erhalten Sie vom Anbieter.
Auf Karte anzeigen
Die vollständige Adresse der Immobilie erhalten Sie vom Anbieter.
Finanzierungszertifikat
In nur zwei Minuten zu Ihrem persönlichen Finanzierungszertifkat.
Infos
| Haustyp | Doppelhaushaelfte |
|---|---|
| Etagenzahl | 1 |
| Wohnfläche ca. | 160 m2 |
| Grundstücksfläche | 483 m2 |
| Bezugsfrei ab | nach Vereinbarung |
| Zimmer | 5 |
| Badezimmer | 1 |
Kosten
| Kaufpreis |
139.000 € |
|---|---|
| Provision |
3,57 % inkl. ges. MwSt. |
Finanzierungsrechner:
Kaufpreis:
600.000 €
Eigenkapital:
600.000 €
Monatliche Rate
0 €
Effektiver Jahreszins
0 %
Sollzinsbindung
10 Jahre
Bausubstanz & Energieausweis
| Baujahr | 1900 |
|---|---|
| Letzte Sanierung | 1993 |
| Bauphase | Haus fertig gestellt |
| Objektzustand | Saniert |
| Heizungsart | Zentralheizung |
| Wesentliche Energieträger | Gas |
| Energieausweis | liegt vor |
| Energieausweistyp | Verbrauchsausweis |
| Energieverbrauchskennwert | 141,4 kWh/(m²*a) |
| Energieeffizienzklasse | E |
141,4
kWh/(m²*a)
Energieeffizienzklasse E
- A+
- A
- B
- C
- D
- E
- F
- G
- H
- 0
- 25
- 50
- 75
- 100
- 125
- 150
- 175
- 200
- 225
- >250
Beschreibung des Objekts
Ausstattung
- Objekttyp: Einfamilienhaus
- Baujahr: ca. 1900
- Sanierungen (1993):
- Fenstererneuerung
- Neue Dacheindeckung
- Komplettmodernisierung des Vollbades
- Größtenteils Erneuerung der Elektroanlage
- Installation der Gaszentralheizung (1993)
- Wohnfläche: ca. 160 m² (Erdgeschoss & Dachgeschoss)
- Grundstück: 483 m², mit individuellem Gestaltungspotenzial
- Zimmer: 5
Lage
Das freistehende Einfamilienhaus liegt in idyllischer, ländlicher Umgebung in Bösdorf bei Oebisfelde. Einkaufsmöglichkeiten, Ärzte und Schulen finden Sie im knapp 5 km entfernten Ort Oebisfelde. Die Anbindung an den Regionalbahnhof Oebisfelde gewährleistet schnelle Verbindungen nach Wolfsburg, Magdeburg und in weitere Regionen.
Sonstige Angaben
Alle Angaben haben wir vom Auftraggeber erhalten. Für deren Richtigkeit können wir keine Gewähr übernehmen. Einen Zwischenverkauf behält sich der Auftraggeber/Verkäufer ausdrücklich vor.
Bitte beachten Sie, dass Anfragen nur bei Angabe Ihrer vollständigen Adress- und Kontaktdaten (Name, Anschrift, Telefon, E-Mail) beantwortet werden können.
Weitere Informationen und zusätzliche Ansichten erhalten Sie in unserem separaten Web-Exposé.
Der Zugang dazu erfolgt nach erfolgreicher Nutzung des Kontaktformulars und Freischaltung mittels dann Ihnen zugesandtem Link.
Grundriss
Erdgeschoss
>
>
Dachgeschoss
>
>
Adresse
39359 Bösdorf
Interessante Orte
Preis- und Lageinformationen
Preistrend für Bestandsimmobilien in Bösdorf