Bei der angebotenen Immobilie handelt es sich um ein Einfamilienhaus, das 1974 ursprünglich als Bungalow (EDI-Haus, Modell „Blankenese“) in massiver Bauweise mit Vollkeller errichtet wurde.
Die Außenwände bestehen aus ca. 16 cm starken Betonwänden, einer 2 cm starken Dämmschicht aus Styropor sowie einem vorgelagerten, weiß geschlämmten Verblendstein mit einer Stärke von 11,5 cm.
1998 ist der Bungalow um einen Dachaufbau mit dekorativem Walmdach und einer hochwertigen Schiefereindeckung erweitert worden, so dass zusätzlicher Wohnraum in Form eines großen Studios mit über 80 m² Wohnfläche zzgl. Dachterrasse entstanden ist.
Die weißen Holzfenster sind selbstverständlich isolierverglast und großzügig für einen optimalen Lichteinfall bemessen.
Die Beheizung sowie Warmwasseraufbereitung übernimmt eine Ölheizung von 2001 aus dem Hause Viessmann.
Darüber hinaus stehen den neuen Eigentümern noch ein weitläufiger Vollkeller zur Verfügung, der praktischerweise auch über einen separaten Außenzugang betreten werden kann.
Die Immobilie befindet sich in einem gepflegten und optisch in einem durchaus zeitgemäßen Zustand. Die große Studiofläche im Dachgeschoss ließe sich bei einem Bedarf von weiteren Kinder-/Schlafzimmern mit überschaubarem Aufwand in eine private Schlafebene umbauen.
Einfamilienhaus mit Stil: Einladendes Landhaus mit individuellem, großzügigem Grundriss
Heinrich-Osterath-Straße 131,
21037 Hamburg
Auf Karte anzeigen
Finanzierungszertifikat
In nur zwei Minuten zu Ihrem persönlichen Finanzierungszertifkat.
Infos
| Haustyp | Einfamilienhaus |
|---|---|
| Wohnfläche ca. | 205 m2 |
| Nutzfläche | 113 m2 |
| Grundstücksfläche | 1.079 m2 |
| Bezugsfrei ab | nach individueller Vereinbarung |
| Zimmer | 4,5 |
| Schlafzimmer | 3 |
| Badezimmer | 1 |
| Garage/Stellplatz | Außenstellplatz |
Kosten
| Kaufpreis |
779.000 € |
|---|---|
| Provision |
2,5% des notariell beurkundeten Kaufpreises |
Finanzierungsrechner:
Kaufpreis:
600.000 €
Eigenkapital:
600.000 €
Monatliche Rate
0 €
Effektiver Jahreszins
0 %
Sollzinsbindung
10 Jahre
Bausubstanz & Energieausweis
| Baujahr | 1974 |
|---|---|
| Qualität der Austattung | Gehoben |
| Heizungsart | Öl-Heizung |
| Wesentliche Energieträger | Öl |
| Energieausweis | liegt vor |
| Energieausweistyp | Bedarfsausweis |
| Energieverbrauchskennwert | 141,4 kWh/(m²*a) |
| Energieeffizienzklasse | E |
141,4
kWh/(m²*a)
Energieeffizienzklasse E
- A+
- A
- B
- C
- D
- E
- F
- G
- H
- 0
- 25
- 50
- 75
- 100
- 125
- 150
- 175
- 200
- 225
- >250
Beschreibung des Objekts
Ausstattung
Das stilvolle Einfamilienhaus empfängt den Besucher mit einer großzügigen, lichtdurchfluteten Diele, von der die Räumlichkeiten im Erdgeschoss sternförmig abgehen.
Direkt rechterhand befindet sich der Garderobenflur mit ausreichend Platz für Jacken und Schuhe. Von hier führt der Weg sowohl in das Gäste-WC mit praktischem Fenster zur Belüftung als auch in das Hauptbadezimmer mit Badewanne sowie separater Dusche.
Die zweite Tür auf der rechten Seite geleitet in die einladende Küche, die mit ihrer zeitlosen Einrichtung überzeugt. Weiße Hochglanzfronten mit jeglichen, elektrischen Einbaugeräten namhafter Hersteller und einer Steinarbeitsplatte bieten ausreichend Arbeits- und Staufläche. Für eine gute Belichtung sorgen sowohl das große Fenster sowie auch eingebaute downlights. Zudem befindet sich hier noch Platz für einen kleinen Tisch, für den schnellen Kaffee am Morgen oder einfach zwischendurch.
Neben der Küche befindet sich der großzügige Wohn-/Essbereich mit einer imposanten Fensterfront zum Garten und einem herrlichen Ausblick in die rückwärtigen Gärten.
Der Bereich bietet mit seinen knapp 42 m² Wohnfläche sowohl einem Esstisch als auch einer Sofalandschaft ausreichend Stellfläche. Für Liebhaber offener Küchen, wäre nach statischer Prüfung durchaus auch ein Durchbruch zum Essbereich denkbar.
Vom Wohnbereich lässt sich die Terrasse mit Sundowner-Garantie gen Westen betreten und ein par Stufen geleiten auf das rückwärtige Grundstück.
Da die Immobilie ursprünglich als Bungalow errichtet wurde, bot diese bis zum Dachausbau noch drei weitere Schlafzimmer auf der Erdgeschossebene. Im Zuge der Objektweiterung wurde eines der Schlafzimmer zugunsten des geschmackvollen Treppenaufgangs genutzt, während sich aktuell neben dem Arbeitszimmer noch das Masterschlafzimmer mit direktem Zugang auf die Terrasse im Erdgeschoss befinden.
Das Dachgeschoss bietet den neuen Eigentümern einen ganz eigenen Raum zur persönlichen Entfaltung. Die aktuellen Eigentümer haben hier für sich einen weitläufigen Loftbereich für Wohnen und Arbeiten geschaffen. Die zusätzlich gewonnene Wohnfläche ist durch die eingebauten Gauben in alle vier Himmelsrichtungen mit Tageslicht durchflutet und ein bodentiefes Fenster führt auf die Dachterrasse mit schönem Weitblick.
Für eine Familie mit 2-3 Kindern, wäre auf dieser Ebene allerdings auch ein komplett anderes Raumkonzept mit Kinderzimmern und zusätzlichem Badezimmer umsetzbar.
Der Spitzboden lässt sich über eine ausklappbare Bodentreppe betreten.
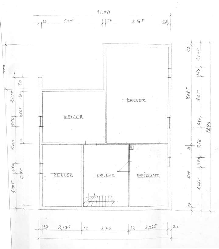
Zurück im Windfang des Eingangsbereichs führt eine Treppe in den Vollkeller des Hauses.
Hier befinden sich neben dem Heizungsraum und Waschküche noch zusätzliche Abstellflächen für Vorräte und alle die Dinge, die man nicht im täglichen Gebrauch hat.
Zudem befindet sich auf dieser Ebene noch ein Saunakeller mit eingebauter Dusche zur ganz persönlichen Entspannung.
Das Kellergeschoss lässt sich praktischerweise auch direkt von dem rückwärtigen Garten aus betreten, so dass sich vor allem Hobbygärtner und Handwerker über optimale Wege freuen.
Lage
Das geräumige Einfamilienhaus befindet sich in Hamburg-Kirchwerder, der größte Stadtteil des charakteristischen Elbmarsch-Gebietes der Vierlande.
Jegliche Einkäufe des täglichen Bedarfs (Edeka, Aldi, Lidl, Rewe, dm-Markt, Apotheke) lassen sich in unweiter Nähe erledigen. Für weitere Besorgungen ist allerdings auch das Zentrum von Bergedorf in nur wenigen Fahrminuten (ob mit dem Auto, dem Fahrrad oder dem Bus) erreichbar. Die längste Fußgängerzone Hamburgs lädt dort mit ihren Boutiquen, Cafés und Restaurants zum Bummeln und Verweilen ein. Ebenfalls befinden sich in Bergedorf diverse Ärzte sowie zwei Krankenhäuser mit gutem Renommee.
Die Hamburger Innenstadt lässt sich mit dem PKW in ca. 25 Minuten über die A25 oder die B5 erreichen. Zudem steht den neuen Eigentümern ab Bahnhof Bergedorf eine sichere und vor allem schnelle S-Bahn Anbindung nach Hamburg im 10-Minuten-Takt zur Verfügung.
Die Bushaltestelle „Seefelder Fischteiche“ mit den Linien 127 und 424 ist nur einen Steinwurf vom Objekt entfernt. Mit diese gelangt man sowohl nach Bergedorf sowie in die Hamburger Innenstadt (Hamburger ZOB).
In Kirchwerder, Fünfhausen, Curslack/Neuengamme sowie Altengamme sind diverse Grundschulen und Kindergärten/KiTas ansässig. Alle weiterführenden Schulen befinden sich in Kirchwerder (Stadtteilschule) sowie Bergedorf (jegliche Schulformen).
Sonstige Angaben
Grundstück
Das angebotene, ca. 1.079 m² große Grundstück überzeugt durch seinen herrlichen Weitblick über die Vier- und Marschlande und die angrenzenden, rückwärtigen Gärten.
Der Vordergarten ist liebevoll mit diversen Stauden angelegt und schafft einen einladenden Gesamtauftritt. Links vom Haus befindet sich ein großer, gepflasterter Hofplatz mit ausreichend Platz für die Autos, der im weiteren Verlauf auch in den rückwärtigen Garten führt.
Der Garten selbst verfügt über eine weitläufige Rasenfläche, die mit dem Nachbargrundstück in eine Fläche übergeht. Ein Holzschuppen bietet Platz für Rasenmäher und Co.
Die private Westterrasse lädt zu geselligen Sonnenstunden und lässt die Tage mit einem entschleunigenden Weitblick gemütlich ausklingen.
Grundriss
Grundriss EG
>
>
Grundriss DG
>
>
Grundriss Keller
>
>
Adresse
Heinrich-Osterath-Straße 131, 21037 Hamburg
Interessante Orte
Preis- und Lageinformationen
Preistrend für Bestandsimmobilien in Kirchwerder