Das hier angebotene Wohnhaus wurde im Jahr 1926 in solider Bauweise "Stein auf Stein" als voll unterkellertes Doppelhaus errichtet und im Jahr 1974 um einen unterkellerten Anbau auf der östlichen Hausseite erweitert. Der rote Klinkerstein ist ein typisches Merkmal der 20er und 30er Jahre und gilt als äußerst beliebt, robust und begehrt. Das geräumige Wohnhaus wurde über drei Generationen liebevoll gepflegt, ist völlig intakt, bedarf jedoch aus heutiger Sicht nun einer umfänglichen Modernisierung, um das Haus für die nächsten Jahrzehnte nach eigenen Vorstellungen zu rüsten.
Das Haus verfügt über 6 Schlafzimmer, zwei Bäder und ein Wohnzimmer mit behaglichem Kaminofen. Der großzügige Garten bietet viel Platz für die Familie und die Kinder zum Spielen, Grillen und Chillen. Im nördlichen Bereich der Grundstücke verläuft eine Stromleitung. Ein Garagengebäude bietet weiteren Platz für Ihren PKW oder die Fahrräder und Gerätschaften.
Begeistern Sie sich für historische Häuser mit Stil und Charme? Dann sind Sie hier genau richtig.
Klassischer Rotklinker in idyllischer Lage
22359 Hamburg
Die vollständige Adresse der Immobilie erhalten Sie vom Anbieter.
Auf Karte anzeigen
Die vollständige Adresse der Immobilie erhalten Sie vom Anbieter.
Finanzierungszertifikat
In nur zwei Minuten zu Ihrem persönlichen Finanzierungszertifkat.
Infos
| Haustyp | Doppelhaushaelfte |
|---|---|
| Wohnfläche ca. | 193 m2 |
| Grundstücksfläche | 1.048 m2 |
| Bezugsfrei ab | nach Vereinbarung |
| Zimmer | 8 |
| Schlafzimmer | 7 |
| Badezimmer | 2 |
Kosten
| Kaufpreis |
770.000 € |
|---|---|
| Provision |
3,57 % inkl. MwSt. |
Finanzierungsrechner:
Kaufpreis:
600.000 €
Eigenkapital:
600.000 €
Monatliche Rate
0 €
Effektiver Jahreszins
0 %
Sollzinsbindung
10 Jahre
Bausubstanz & Energieausweis
| Baujahr | 1926 |
|---|---|
| Objektzustand | Renovierungsbedürftig |
| Heizungsart | Zentralheizung |
| Wesentliche Energieträger | Erdgas leicht |
| Energieausweis | liegt vor |
| Energieausweistyp | Bedarfsausweis |
| Energieverbrauchskennwert | 186,2 kWh/(m²*a) |
| Energieeffizienzklasse | F |
186,2
kWh/(m²*a)
Energieeffizienzklasse F
- A+
- A
- B
- C
- D
- E
- F
- G
- H
- 0
- 25
- 50
- 75
- 100
- 125
- 150
- 175
- 200
- 225
- >250
Beschreibung des Objekts
Ausstattung
Die Ausstattung des Hauses umfasst unter anderem im Erdgeschoss:
Ein großzügiger Wohnbereich mit Belichtung von zwei Seiten, ein behaglicher Kaminofen im Wohnzimmer, großzügige Fensterflächen (teils mit Sprossenunterteilung), eine geräumige Küche mit Terrazzoboden.
Im Obergeschoss befinden sich ein weiteres Bad, ein Raum mit Küchenanschlüssen und vier Schlafzimmer.
Im darüber liegenden Spitzboden befinden sich zwei weitere Schlafräume und geräumige Abstellfläche.
Hinweis: Gelegentlich werden Räume im Weitwinkel abgelichtet, um möglichst viele Details vom Raum zu zeigen - dadurch können aber die Größenverhältnisse täuschen und eine Besichtigung ist daher anzuraten.
Lage
Das sonnige Grundstück liegt in einer ruhigen, schönen Lage im Grenzbereich von Volksdorf, Ammersbek und Bergstedt. Die verkehrsberuhigte Straße ist von alten Bäumen gesäumt und von historischen Einfamilienhäusern, Villen und einigen kleineren Mehrfamilienhäusern geprägt. Direkt vor dem Haus befindet sich ein wunderschöner Platz mit Blumenwiese und mächtigen Bäumen. Die charmante Ortsmitte von Volksdorf bietet vielfältige Einkaufsmöglichkeiten, und der beliebte Wochenmarkt lockt viele Hamburger an.
Die U-Bahn-Station Hoisbüttel der Linie U1 ist nur ca. 500 Meter entfernt und bietet eine schnelle Verbindung ins Hamburger Zentrum. Zahlreiche Grünanlagen und die Lottbek bieten ideale Bedingungen für naturnahes Wohnen. Exzellente Schulen und Kitas befinden sich in der Nähe. Im Sommer laden das "Sommerbad Volksdorf" und das "Parkbad" zum Schwimmen ein.
Sonstige Angaben
*Klinker-Außenfassade
*Massivbauweise
*Bad mit Fenster
*Holzfußböden
*Isolierverglasung
*Gas-Zentralheizung
*Vollholzinnentüren
*Holztreppe
*Renovierungsbedürftig
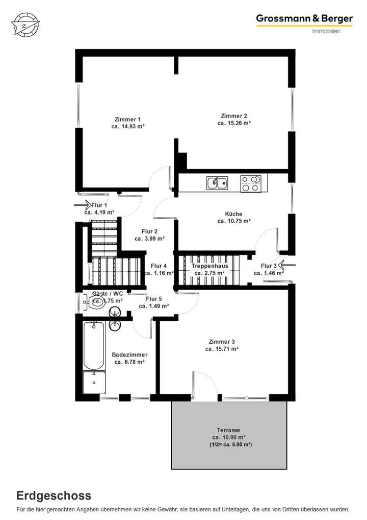
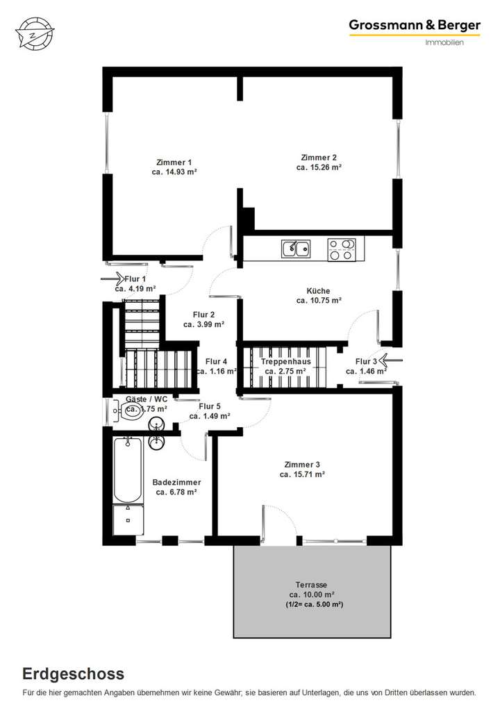
Grundriss
KG
>
>
EG
>
>
OG
>
>
DG
>
>
Adresse
22359 Hamburg
Interessante Orte
Preis- und Lageinformationen
Preistrend für Bestandsimmobilien in Volksdorf