Willkommen in Ihrem neuen Rückzugsort – dieser schöne Bungalow in ruhiger Lage von Bad Kreuznach bietet Ihnen ein naturnahes Wohnerlebnis mit 90 qm Wohnfläche auf einem 520 qm großen Grundstück. Dieses grenzt an einen Ihnen zur Verfügung stehenden 1019 qm großen Garten. Die direkte Lage am Wald und die idyllische Umgebung machen dieses Zuhause zu einem wahren Paradies für Naturliebhaber und Ruhesuchende. Bereits beim Betreten des Grundstücks empfängt Sie ein liebevoll angelegter Vorgarten. Über eine einladende Treppe gelangen Sie in das Hochparterre, wo sich das Herzstück des Hauses entfaltet. Ein kleiner Zwischenflur öffnet sich zum lichtdurchfluteten Wohn- und Essbereich, der durch eine große Verbindungstür entweder als offener Raum oder in zwei separate Bereiche genutzt werden kann – ideal für gemütliche Abende oder gesellige Familienfeiern. Direkt angrenzend befindet sich die gepflegte Küche, ausgestattet mit einem neuen Herd und Geschirrspüler. Dank der baulichen Gegebenheiten lässt sich die Küche auch durch einen einfachen Durchbruch zu einer modernen, offenen Wohnküche umgestalten – perfekt für zeitgemäßes Wohnen mit offenem Charakter. Das Wohnzimmer bietet einen direkten Zugang in den wunderschönen, erhöht liegenden Gartenbereich. Dieser private Rückzugsort eröffnet Ihnen nicht nur ein geschütztes Gartenerlebnis, sondern auch herrliche Ausblicke und vielfältige Gestaltungsmöglichkeiten. Ergänzt wird das Raumangebot im Erdgeschoss durch zwei vielseitig nutzbare Zimmer – ideal als Schlafzimmer, Kinderzimmer oder Homeoffice –, ein helles Badezimmer mit Dusche und Badewanne sowie eine praktische Abstellkammer. Über eine Wendeltreppe gelangen Sie in das großzügige Kellergeschoss: Hier wartet eine beeindruckende Kellerlounge mit rund 40 m² Fläche auf kreative Nutzungsideen – ob als Partylounge, Fitnessstudio oder Gästeetage. Weitere Räume wie ein großer Werkstattbereich, ein Allzweckraum, ein Heizungsraum sowie ein Gäste-WC bieten zahlreiche Optionen und Stauraum. Über das Untergeschoss besteht zudem ein direkter Zugang zur geräumigen Garage, die Ihr Fahrzeug sicher unterbringt. Besonders attraktiv: Über der Garage bietet sich die Möglichkeit, eine zusätzliche Terrasse einzurichten – genießen Sie hier sonnige Stunden mit Blick auf Ihr eigenes Naturparadies! Ob als Zuhause für die Familie, als Rückzugsort für Naturliebhaber oder als kreativer Lebensraum mit großzügigem Grundstück – dieser Bungalow erfüllt vielfältige Wohnträume in traumhafter Lage. Nutzen Sie die Chance auf ein seltenes Angebot mit großem Grundstück, flexiblem Raumangebot und direkter Waldlage! Fordern Sie sich Ihr digitales Exposé mit 360-Grad-Rundgang an. Das Exposé bietet Ihnen einen umfassenden Einblick in diese Immobilie. Erleben Sie jeden Raum in detailgetreuer Darstellung und erhalten Sie zusätzliche Informationen, die Ihnen bei Ihrer Entscheidung helfen.
Attraktiver Bungalow am Waldrand – Naturidylle und großzügiges Grundstück in Bad Kreuznach
55545 Bad Kreuznach
Die vollständige Adresse der Immobilie erhalten Sie vom Anbieter.
Auf Karte anzeigen
Die vollständige Adresse der Immobilie erhalten Sie vom Anbieter.

Finanzierungszertifikat
In nur zwei Minuten zu Ihrem persönlichen Finanzierungszertifkat.
Infos
Haustyp | Einfamilienhaus |
---|---|
Wohnfläche ca. | 90 m2 |
Nutzfläche | 40 m2 |
Grundstücksfläche | 1.539 m2 |
Bezugsfrei ab | sofort |
Zimmer | 5 |
Schlafzimmer | 2 |
Badezimmer | 1 |
Garage/Stellplatz | Garage |
Anzahl Garage/Stellplatz | 2 |
Kosten
Kaufpreis |
299.000 € |
---|---|
Provision |
3,57% inkl. 19% MwSt. inkl. gesetzlicher Umsatzsteuer. |
Finanzierungsrechner:
Kaufpreis:
600.000 €
Eigenkapital:
600.000 €
Monatliche Rate
0 €
Effektiver Jahreszins
0 %
Sollzinsbindung
10 Jahre
Bausubstanz & Energieausweis
Baujahr | 1977 |
---|---|
Bauphase | Haus fertig gestellt |
Objektzustand | Gepflegt |
Qualität der Austattung | Normal |
Heizungsart | Öl-Heizung |
Wesentliche Energieträger | Öl |
Energieausweis | liegt vor |
Energieausweistyp | Bedarfsausweis |
Energieverbrauchskennwert | 180,5 kWh/(m²*a) |
Energieeffizienzklasse | F |
180,5
kWh/(m²*a)
Energieeffizienzklasse F
- A+
- A
- B
- C
- D
- E
- F
- G
- H
- 0
- 25
- 50
- 75
- 100
- 125
- 150
- 175
- 200
- 225
- >250
Beschreibung des Objekts
Ausstattung
- Wohnfläche: 90 qm - Kellerlounge mit ca. 40qm (bewohnbar) zusätzlich - Grundstücksfläche: 520 qm - Gartenfläche: 1019 qm - Keller - Gäste-WC - Tageslichtbad - Dusche - Badewanne - Einbauküche - Garten -Fenster: 2-Fach-Verglasung
Lage
Das Objekt befindet sich in einer ruhigen und naturnahen Lage am Waldrand von Bad Kreuznach. Die nächste Einkaufsmöglichkeit ist in nur 8 Minuten mit dem Auto zu erreichen, ebenso wie Kindergärten und Grundschulen, die ebenfalls in etwa 7 Minuten Fahrzeit liegen. Der nahegelegene Schlosspark ist bequem in 15 Minuten zu Fuß erreichbar und bietet eine grüne Oase zur Erholung. Bad Kreuznach ist eine Kurstadt im Bundesland Rheinland-Pfalz und bekannt für ihre Heilbäder und Thermalquellen. Die Stadt bietet eine gute Infrastruktur mit zahlreichen Einkaufsmöglichkeiten, Schulen und medizinischer Versorgung. Neben dem historischen Stadtkern und den attraktiven Freizeitmöglichkeiten, wie dem Salinental und dem Bäderhaus, zeichnet sich Bad Kreuznach durch seine gute Verkehrsanbindung aus, die sowohl eine schnelle Erreichbarkeit der umliegenden Städte als auch eine gute Anbindung an das Autobahnnetz ermöglicht.
Sonstige Angaben
Die in unserem Exposé enthaltenen Aussagen basieren ausschließlich auf Informationen, die uns vom Verkäufer und von Handwerkern zur Verfügung gestellt wurden. Wir übernehmen daher keine Gewähr für die Vollständigkeit und Richtigkeit der Angaben. Das Immobilienangebot ist freibleibend. Irrtum und Zwischenverkauf bleiben vorbehalten. Weitere Details zum Objekt erläutern wir Ihnen gerne bei einem Besichtigungstermin. Wir bitten um Ihr Verständnis dafür, dass wir nur Anfragen mit vollständigen Adressdaten inklusive Vor- und Zuname, Anschrift, Telefon-/Mobilnummer und Email Adresse bearbeiten können. Sie suchen nach der passenden Finanzierung? Wir finden sie! Als ungebundene Finanzierungsvermittler vergleichen wir über 900 Banken und finden einen optimalen Kredit für Sie. Sparen Sie Geld und Zeit! Mit Sicherheit günstiger als Ihre Hausbank. Wir freuen uns auf den Kontakt zu Ihnen. Immotactics GmbH 0671 – 20272030 info@immotactics.de
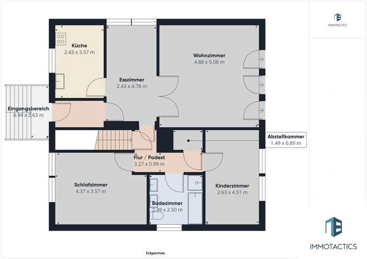
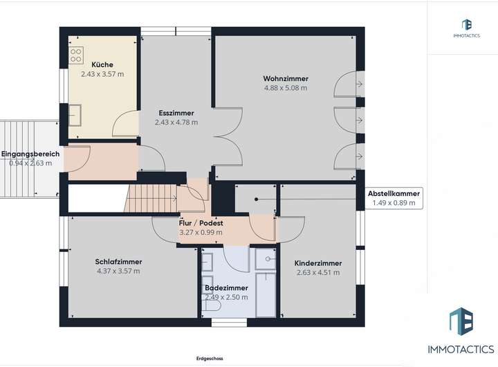
Grundriss
Grundriss EG
>

Grundriss Keller
>

Adresse
55545 Bad Kreuznach
Interessante Orte
Preis- und Lageinformationen
Preistrend für Bestandsimmobilien in Bad Kreuznach