Dieses beeindruckende Mehrfamilienhaus in Oberlahnstein verbindet luxuriöses Wohnen mit vielfältigen Nutzungsmöglichkeiten. Die durchdachte Raumaufteilung lässt keine Wünsche offen und schafft ein angenehmes Ambiente für Familien, Investoren oder Mehrgenerationenwohnen.
Das Haus verfügt über drei separate Wohneinheiten, die vielfältige Nutzungsmöglichkeiten bieten – sei es zur Vermietung, als Mehrgenerationenhaus oder für eine größere Familie. Auf ca. 289,49 m² Wohnfläche erstreckt sich die Hauptwohnung, die sich über zwei Ebenen zieht. Im Erdgeschoss befinden sich zwei Schlafzimmer, eine Küche m, ein Esszimmer sowie ein großzügiges Wohnzimmer mit großen Fensterfronten und Zugang zu einer großzügigen Terrasse mit atemberaubendem Weitblick. Das Badezimmer im Erdgeschoss ist mit einer Sauna ausgestattet und bietet direkten Zugang zur Terrasse. Im Dachgeschoss befindet sich eine offene Empore mit drei Zimmern, einem Badezimmer und einer Dachterrasse.
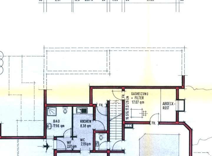
Die 3-Zimmer-Wohnung im 1. UG umfasst ca. 106 m² und ist derzeit vermietet zu einer monatlichen Kaltmiete von 820 € (jährlich 9.840 €). Das Apartment im 2. UG mit ca. 52,91 m² ist aktuell unvermietet und bietet zusätzliche Flexibilität.
Hervorzuheben ist der Indoor-Pool im Haus, der im 2. UG zugänglich ist und über das Haupttreppenhaus mit der Hauptwohnung verbunden ist. Die beiden Wohneinheiten verfügen über separate Eingänge von außen, was Privatsphäre und Unabhängigkeit garantiert. Zudem sind drei separate Gasetagenheizungen installiert.
Der Indoor-Pool, verbunden mit dem Garten und der Terrasse, bietet grenzenlosen Freizeitspaß – hier kann man das ganze Jahr über schwimmen und entspannen. Mehrere Kellerräume sorgen für ausreichend Stauraum. Ein Carport und Garage bietet zudem komfortablen Unterstellplatz für Ihre Fahrzeuge.
Dieses Mehrfamilienhaus vereint modernes Wohnen, Flexibilität und Freizeitkomfort in einer attraktiven Lage. Es ist ideal für Familien, Investoren oder Mehrgenerationen die das Besondere suchen
Exklusives Mehrfamilienhaus mit herrlichem Ausblick, einem Wellnessbereich in Oberlahnstein!
56112 Lahnstein
Die vollständige Adresse der Immobilie erhalten Sie vom Anbieter.
Auf Karte anzeigen
Die vollständige Adresse der Immobilie erhalten Sie vom Anbieter.
Finanzierungszertifikat
In nur zwei Minuten zu Ihrem persönlichen Finanzierungszertifkat.
Infos
| Haustyp | Mehrfamilienhaus |
|---|---|
| Etagenzahl | 2 |
| Wohnfläche ca. | 379 m2 |
| Nutzfläche | 139 m2 |
| Grundstücksfläche | 1.962 m2 |
| Bezugsfrei ab | ab sofort |
| Zimmer | 10 |
| Schlafzimmer | 7 |
| Badezimmer | 4 |
| Garage/Stellplatz | Außenstellplatz |
| Anzahl Garage/Stellplatz | 3 |
Kosten
| Kaufpreis |
899.000 € |
|---|---|
| Provision |
3,57 % inkl. MwSt. |
Finanzierungsrechner:
Kaufpreis:
600.000 €
Eigenkapital:
600.000 €
Monatliche Rate
0 €
Effektiver Jahreszins
0 %
Sollzinsbindung
10 Jahre
Bausubstanz & Energieausweis
| Baujahr | 1981 |
|---|---|
| Objektzustand | Gepflegt |
| Heizungsart | Etagenheizung |
| Wesentliche Energieträger | Gas |
| Energieausweis | liegt vor |
| Energieausweistyp | Bedarfsausweis |
| Energieverbrauchskennwert | 124,7 kWh/(m²*a) |
| Energieeffizienzklasse | D |
124,7
kWh/(m²*a)
Energieeffizienzklasse D
- A+
- A
- B
- C
- D
- E
- F
- G
- H
- 0
- 25
- 50
- 75
- 100
- 125
- 150
- 175
- 200
- 225
- >250
Beschreibung des Objekts
Ausstattung
+ Freistehendes Mehrfamilienhaus in Oberlahnstein aus dem Baujahr 1981
+ Luxuriöses Wohnen mit vielfältigen Nutzungsmöglichkeiten
+ Insgesamt drei separate Wohneinheiten mit ca. 379,39 qm Wohnfläche
+ Grundstück: 1.962,00 qm
+ Hauptwohnung auf zwei Ebenen mit ca. 289,49 m² Wohnfläche, unverbauter Weitblick mit 7 Zimmer, 2 Terrassen, Balkon,
2 Badezimmer, Gäste -WC
+ Der Kamin im Wohnzimmer mit offener Empore im DG sowie die großzügige, windgeschützte Loggia im Erdgeschoss überzeugen durch
ihren beeindruckenden Ausblick.
den Rhein auf Schloss Stolzenfels und ist das perfekte Highlight
+ 3-Zimmer-Wohnung im 1. Untergeschoss ca. 106 m², aktuell vermietet (Kaltmiete 820 €/Monat, 9.840 €/Jahr)
+ Apartment im 2. Untergeschoss ca. 52,91 m², unvermietet, flexibel nutzbar
+ Indoor-Pool im Haus im 2. Untergeschoss mit ca. 54 qm Nutzfläche, verbunden mit dem Garten und der Terrasse, ganzjährig nutzbar
+ Separate Eingänge für die Wohneinheiten für Privatsphäre
+ Drei separate neu Gasetagenheizungen (2024) für effiziente Versorgung und Abrechnung
+ Mehrere Kellerräume für ausreichend Stauraum, ein Kühlraum
+ Carport und eine Doppelgarage für komfortables Fahrzeugunterstellen
+ Attraktive Lage, modernes Wohnen, Flexibilität, großzügiger Freizeitkomfort
+ Ideale Immobilie für Familien, Investoren oder Mehrgenerationenwohnen
Lage
Die zentrale Lage in Oberlahstein bietet eine hervorragende Infrastruktur und eine attraktive Umgebung. Die lebendige Innenstadt von Lahnstein ist nur wenige Minuten entfernt, in weniger als 3 Kilometern. Auch Koblenz, mit ihren vielfältigen Angeboten und Sehenswürdigkeiten, ist bequem in nur 9 km erreichbar – über die B42 und B9 in kurzer Fahrzeit. Für die Mobilität im Alltag sorgen zwei Bushaltestellen in unmittelbarer Nähe des Wohnhauses, die eine schnelle Anbindung an den öffentlichen Nahverkehr gewährleisten.
Familien profitieren von einer Vielzahl an Bildungseinrichtungen und Freizeiteinrichtungen im nahen Umkreis: Schulen, Kindergärten und das Schwimmbad sind innerhalb von 2 bis 6 Kilometern bequem erreichbar. Das Medizinische Zentrum auf der Lahnhöhe befindet sich ebenfalls in weniger als 3 km Entfernung und sorgt für eine umfassende medizinische Versorgung.
Der Standort bietet eine optimale Versorgung für alle Belange des täglichen Bedarfs, die bequem zu Fuß oder mit dem Auto erreichbar sind. Die exzellente Anbindung an die B42, B9 sowie die A61, verbunden mit einem guten Bahn- und Busnetz, unterstreicht die hervorragende Erreichbarkeit und Flexibilität.
Ein besonderes Highlight ist die Nähe zum Festungspark, der nur ca. 11 km entfernt liegt. Das ehemalige BUGA-Gelände auf dem Höhenrücken hat sich zu einem beliebten Naherholungsgebiet entwickelt. Zusammen mit der imposanten Festung Ehrenbreitstein bietet es eine außergewöhnliche Kulisse für Erholung und Freizeitgestaltung. Auch die historischen Sehenswürdigkeiten wie die Burg Lahneck und die Marksburg, beide etwa 6 km entfernt, bereichern das kulturelle Umfeld des Standorts.
Dieser Standort verbindet urbanes Leben mit Natur und Geschichte – ein idealer Ort für Familien und alle, die das Leben in einer lebendigen, gut erschlossenen Region schätzen.
Sonstige Angaben
Sämtliche Bilder in diesem Exposé sind urheberrechtlich geschützt und dürfen nicht durch Dritte verwendet bzw. weitergegeben werden. Dieses Exposé wurde mit Sorgfalt zusammengestellt. Alle darin enthaltenen Angaben über das Objekt beruhen auf Informationen des Verkäufers. Eine Haftung für deren Richtigkeit und Vollständigkeit können wir nicht übernehmen.
Adresse
56112 Lahnstein
Interessante Orte
Preis- und Lageinformationen
Preistrend für Bestandsimmobilien in Lahnstein