LUXHAUS - Das Familienunternehmen blickt auf eine beeindruckende Tradition zurück, die bis ins Jahr 1924 reicht. Seit mehr als einem Jahrhundert steht der Name für Innovation, Design und Nachhaltigkeit in der Fertigung individueller Architektenhäuser. Mit viel Liebe zum Details und Gefühl für Materialien und Wohlfühlräume für Ihren lebenslangen Wohngenuss! Auf diesem traumhaften Grund entsteht eine exklusive Ein- bzw. Zweifamilienvilla mit innovativer Technik. Nahezu unabhängig von außen lässt sich dieses Anwesen betreiben und produziert dabei einen großen Teil der benötigten Energie selbst. Die Lage ist einmalig: Auf dem traumhaft großzügigen Grundstück in traumhafter Aussichtslage ist purer Genuss garantiert. Entspannen oder einfach mal abschalten nach einem anstrengenden Tag! Das alles ist hier möglich! Ob im Garten, auf der Terrasse oder im integrierbren Infinity-Pool - Sie werden es Lieben und es nicht mehr missen wollen! Natürlich planen wir auf Wunsch auch ihr Home Office intelligent ein, so, dass Sie ungestört arbeiten können. Legen Sie gerne auch selbst Hand? Dann gestalten Sie ihr zukünftiges Zuhause doch einfach mit - noch ist dies möglich! Das Grundstück für dieses Haus hält insgesamt rd. 1.000m² vor und wird gänzlich nach ihren Wünschen und Vorstellungen gestaltet. Die Wohnfläche kann insgesamt zwischen 250 und 400m² liegen. Vollunterkellerung ist natürlich auch möglich! Ihr neues Zuhause empfängt Sie im Erdgeschoss hell und großzügig. Die neue Küche ist entweder offen oder geschlossen gestaltet, je nachdem, was Ihnen persönlich besser gefällt. Der Wohn-/Essbereich lädt dazu ein, Familie und Freunde zu bewirten und gemeinsam unvergessliche Abende zu verbringen. Ein Gäste-/Dusch-WC gibt es selbstverständlich auch. Im Obergeschoss sind die Schlafräume und das geräumige Wellness-Bad vorgesehen. Außerdem ist ein separater Ankleideraum bereits Standard. Die dargestellten Abbildungen und Grundrisse sind Vorschläge, die nach Ihren Wünschen und Ideen individuell angepasst werden können, so, dass Sie Ihr maßgeschneidertes Traumhaus bekommen werden! Ebenso sind die Größen- und Preisangaben auf ein Haus in der angegeben Größe bezogen. Ihr Haus planen wir natürlich individuell für Sie. Der hier ausgewiesene Preis bezieht sich auf das Grundstück rd. 1.000m² (das separat erworben wird) und das Haus mit einer Wohnfläche von rd. 270qm zzgl. Kauf- und Baunebenkosten. Änderungen in Gestaltung, Wohnflächen und Ausstattung sind natürlich möglich! OPTIONAL MÖGLICH: PENTHOUSE-GESCHOSS mit DACHTERRASSE!
Leben mit Blick: Genuß in wundervoller Aussichtslage!
64665 Alsbach-Hähnlein
Die vollständige Adresse der Immobilie erhalten Sie vom Anbieter.
Auf Karte anzeigen
Die vollständige Adresse der Immobilie erhalten Sie vom Anbieter.

Finanzierungszertifikat
In nur zwei Minuten zu Ihrem persönlichen Finanzierungszertifkat.
Infos
Haustyp | Einfamilienhaus |
---|---|
Etagenzahl | 2 |
Wohnfläche ca. | 270 m2 |
Nutzfläche | 0 m2 |
Grundstücksfläche | 1.000 m2 |
Zimmer | 7 |
Schlafzimmer | 4 |
Badezimmer | 2 |
Garage/Stellplatz | Garage |
Anzahl Garage/Stellplatz | 2 |
Kosten
Kaufpreis |
2.590.000 € |
---|---|
Provision | Nein |
Finanzierungsrechner:
Kaufpreis:
600.000 €
Eigenkapital:
600.000 €
Monatliche Rate
0 €
Effektiver Jahreszins
0 %
Sollzinsbindung
10 Jahre
Bausubstanz & Energieausweis
Baujahr | 2026 |
---|---|
Bauphase | Haus in Planung (projektiert) |
Objektzustand | Erstbezug |
Qualität der Austattung | Gehoben |
Heizungsart | Wärmepumpe |
Wesentliche Energieträger | Erdwärme |
Beschreibung des Objekts
Ausstattung
Innovative Haustechnik, attraktive Architektur und hochwertige Qualität bietet Ihnen der hier angebotene Haustraum mit unserem All-Finish-Paket: - Teilunterkellerung inklusive - Effizienzhaus 40 (inkl. PV Anlage mit Batteriespeicher) - Climatic Wand Technologie - Professionelle Dachkonstruktion - Komplette Elektro-, Sanitär- und Heizungs-Installation - Optional Smart-Home-Technologie – Intelligentes Gebäude-Management für die Licht- und Rollladen-Steuerung oder Loxone Premium Smart Home System - Elektrische Rollläden oder optional Raffstores - Luft-Wasser Wärmepumpen-Heizung optional kombiniert mit zentraler Wohnraum Be- und Entlüftung mit Wärmerückgewinnung für das Effizienzhaus 40 - Optional SOLE-Wasser-Wärmepumpe mit Fußbodenheizung + Kühlfunktion - Hochwertige, mehrschichtige Sicherheits-Haustüre - Aluprofil-Fenster mit 3-Scheiben-Wärmeschutzverglasung - optional Dachfenster mit sowie elektrischen Beschattung - optional Aufzug über alle Etagen - optional Klimaanalge - Massiv-Vollholz-Treppe mit hochmoderner Echtholz Interieur Ausstattung - Schickes Exterieur Ausstattungspaket - Hochwertige Interieur Ausstattung - Hohe Geschosshöhen / Wandhohe Verglasung - Auf einzelne Bauteile bis zu 30 Jahre Gewährleistung
Lage
Diese traumhafte Anwesen entsteht naturnah mit atemberaubender Aussicht in Alsbach-Hähnlein in sehr ruhiger und wundervoller Aussichtslage! Haben Sie bitte Verständnis dafür, dass Details zur genauen Lage des Projektes im Rahmen eines persönliches Gespräches erfolgt!
Sonstige Angaben
Als exklusiver Partner und Handelsvertretung der LUXHAUS Vertrieb GmbH & Co. KG entwickeln und projektieren wir individuell und nach Ihren Anforderungen und Wünschen ihr ganz persönliches Wohlfühlambiente! Wir betreuen Sie vom Erstkontakt bis zur Schlüsselübergabe und sind ihr kompetenter Ansprechpartner rund um ihr gesamtes Neubauprojekt! Fühlen Sie unsere Innovationsfreude für nachhaltiges Wohnen und Leben! Wir stehen für nachhaltige, innovative und hochmoderne Häuser welche Ihnen ein Leben lang Freude bereiten werden. Bitte beachten Sie, dass die dargestellten Bilder und Grundrisse beispielhaft sind und unter Umständen Sonderbauteile enthalten, die nicht im angegebenen Preis beinhaltet sein können.
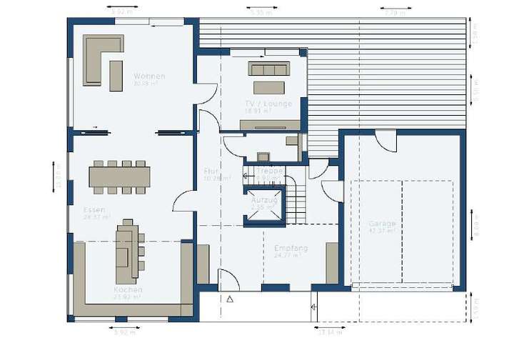
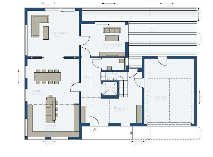
Grundriss
Mögliches EG
>

Mögliches OG 1
>

Opt. Penthouse OG 2
>

Adresse
64665 Alsbach-Hähnlein
Interessante Orte
Preis- und Lageinformationen
Preistrend für Bestandsimmobilien in Alsbach-Hähnlein