Sie sind handwerklich begabt, suchen ein Zuhause mit Charakter und möchten Ihre eigenen Wohnideen verwirklichen? Dann bietet dieses Haus in Budenheim am Rhein die ideale Grundlage für Ihr Projekt! In einer ruhigen Seitenstraße gelegen, wartet dieses teilentkernte Einfamilienhaus darauf, durch Ihre Kreativität zu neuem Leben erweckt zu werden.
Das Haus steht auf einem kompakten Grundstück von rund 225 m² – genau richtig für alle, die keinen großen Garten pflegen möchten, aber dennoch nicht auf schöne Außenbereiche verzichten wollen. Hinter dem Haus befindet sich eine geschützte Terrasse sowie eine gepflasterte Fläche, die flexibel genutzt werden kann: Ob als Erweiterung des Terrassenbereichs oder als Stellplatz für zwei Fahrzeuge – hier ist Raum für Ihre Ideen.
Die Außenflächen setzen sich weiter fort: Ein kleiner Vorgarten sowie ein seitlicher Grünstreifen bieten mit insgesamt ca. 95 m² zusätzlichen Freiraum. Besonders schön: Im Vorgarten lässt sich am Abend entspannt die Sonne genießen. Wer Wert auf Privatsphäre legt, kann diesen Bereich ganz einfach mit einem Sichtschutz gestalten – oder ihn alternativ zur Anlage weiterer Stellplätze nutzen, da das Gebäude rund 5 Meter von der Straße zurückversetzt steht.
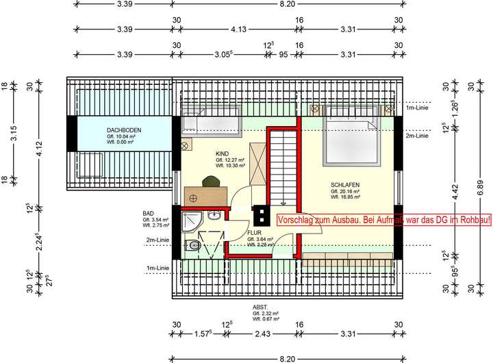
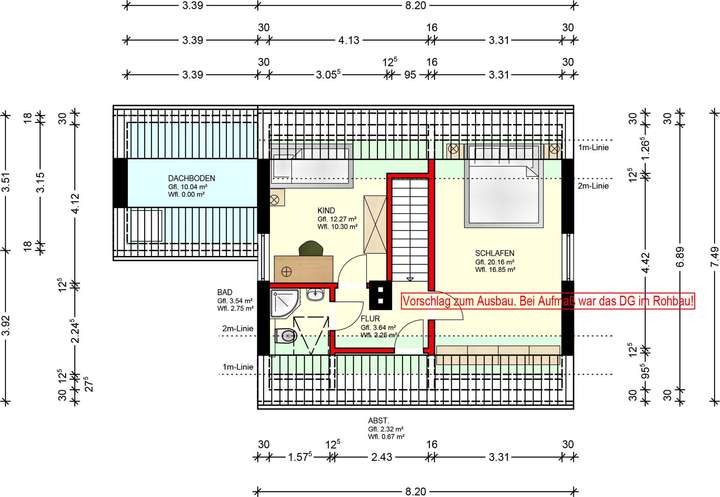
Das bestehende Wohnhaus stammt aus den 1940er Jahren und wurde bereits teilweise entkernt – ein großer Vorteil für alle, die sanieren möchten, ohne erst aufwändig rückbauen zu müssen. Im Inneren bieten rd. 91 m² Wohnfläche im Bestand zahlreiche Optionen für eine moderne Grundrissgestaltung. Das Obergeschoss ist aktuell offen und kann ganz nach Wunsch neu aufgeteilt werden.
Ein überdachter Außenbereich, angrenzend an die Küche, schafft eine harmonische Verbindung zwischen Innen und Außen – ideal für entspannte Stunden mit Blick in den hinteren Terrassenbereich.
Auch praktisch: Das Gebäude ist voll unterkellert und bietet mit rund 45 m² Nutzfläche zusätzlichen Raum für Hobbys, Technik oder Stauraum. Die (bereits abgeklemmte) Gasheizung befindet sich ebenfalls im Keller.
Selbst gestalten statt von der Stange kaufen – Sanierungsobjekt mit Charme und vielen Möglichkeiten
Jahnstraße 46,
55257 Budenheim
Auf Karte anzeigen
Finanzierungszertifikat
In nur zwei Minuten zu Ihrem persönlichen Finanzierungszertifkat.
Infos
| Haustyp | Einfamilienhaus |
|---|---|
| Etagenzahl | 3 |
| Wohnfläche ca. | 90 m2 |
| Nutzfläche | 80,98 m2 |
| Grundstücksfläche | 226 m2 |
| Bezugsfrei ab | sofort |
| Zimmer | 3 |
| Schlafzimmer | 2 |
| Badezimmer | 1 |
| Anzahl Garage/Stellplatz | 2 |
Kosten
| Kaufpreis |
260.000 € |
|---|---|
| Provision | Nein |
Finanzierungsrechner:
Kaufpreis:
600.000 €
Eigenkapital:
600.000 €
Monatliche Rate
0 €
Effektiver Jahreszins
0 %
Sollzinsbindung
10 Jahre
Bausubstanz & Energieausweis
| Baujahr | 1940 |
|---|---|
| Heizungsart | Zentralheizung |
| Wesentliche Energieträger | Gas |
| Energieausweis | liegt vor |
| Energieausweistyp | Bedarfsausweis |
| Energieverbrauchskennwert | 428,2 kWh/(m²*a) |
| Energieeffizienzklasse | H |
428,2
kWh/(m²*a)
Energieeffizienzklasse H
- A+
- A
- B
- C
- D
- E
- F
- G
- H
- 0
- 25
- 50
- 75
- 100
- 125
- 150
- 175
- 200
- 225
- >250
Beschreibung des Objekts
Ausstattung
Besonderheiten im Überblick:
· Ruhige, familienfreundliche Lage mit guter Anbindung nach Mainz
· Sanierungsobjekt mit solider Bausubstanz und abgeschlossener Entkernung
· rd. 91 m² Wohnfläche im Bestand mit flexiblem Grundrisspotenzial
· ca. 225 m² Grundstücksfläche – pflegeleicht, aber mit genug Freiraum
· Überdachte Terrasse und zusätzliche gepflasterte Fläche im hinteren Grundstücksteil
· Vorgarten und seitliche Grünfläche mit zusammen ca. 95 m² – auch für weitere Stellplätze nutzbar
· Abendsonne vor dem Haus – ideal für eine Sitzecke oder Outdoor-Bereich mit Privatsphäre
· rd. 45 m² Nutzfläche im Vollkeller mit separatem Zugang
Dieses Haus bietet die perfekte Grundlage für alle, die mit handwerklichem Geschick und eigenen Ideen ein ganz persönliches Zuhause schaffen möchten. Nutzen Sie die Chance – wir freuen uns auf Ihre Anfrage!
Lage
Willkommen in Budenheim – Lebensqualität für alle, die mehr vom Alltag erwarten.
Budenheim verbindet ländliche Idylle mit urbaner Nähe. Eingebettet in die reizvolle Landschaft Rheinhessens, bietet dieser charmante Ort die perfekte Mischung aus Ruhe, Natur und guter Anbindung an die Stadt – ideal für Singles, Paare und kleine Familien, die Wert auf ein ausgewogenes Leben legen.
Freizeit, Natur und Gemeinschaft vor der Haustür:
Ob Sie joggen im Lennebergwald, Rad fahren entlang des Rheins oder mit den Kindern einen Spaziergang in den Budenheimer Rheinauen genießen – hier beginnt die Freizeit direkt vor der Tür. Outdoor-Aktivitäten, Wassersport und zahlreiche Naherholungsziele bieten Abwechslung für jedes Alter. Wer Anschluss sucht, findet ihn im lebendigen Vereinsleben oder bei den vielen lokalen Veranstaltungen.
Schnell in der Stadt – weit weg vom Alltagsstress:
Mit dem Zug oder Auto erreichen Sie Mainz in nur 10 Minuten – ideal für Berufspendler, Studierende oder Familien mit schulpflichtigen Kindern. Auch Wiesbaden, Frankfurt und der Flughafen sind gut angebunden. So bleiben Sie flexibel und mobil, egal ob für Job, Studium oder Wochenend-Ausflüge.
Alles da – für den Alltag und das Leben dazwischen:
Supermarkt, Apotheke, Arztpraxis oder Café – in Budenheim ist alles Wichtige in unmittelbarer Nähe. Für größere Shoppingtouren oder kulturelle Highlights sind Sie schnell in Mainz oder Wiesbaden – ohne den Trubel der Großstadt im Alltag mitnehmen zu müssen.
Modern wohnen in begehrter Lage:
Das angebotene Haus bietet nicht nur Stil und Komfort, sondern auch ein Wohnumfeld, das zu Ihrem Lebensmodell passt – ob allein, zu zweit oder mit Kind. Ruhig, grün und dennoch zentral gelegen, bietet Budenheim ein Zuhause für Menschen, die selbstbestimmt leben, Gemeinschaft schätzen und ihre Freizeit aktiv gestalten möchten.
Sonstige Angaben
Die vorliegende Beschreibung wurde sorgfältig und nach bestem Wissen erstellt. Die Angaben beruhen zum Teil auf Informationen, die uns vom Auftraggeber zur Verfügung gestellt wurden. Trotz sorgfältiger Prüfung können wir für die Richtigkeit und Vollständigkeit der Angaben keine Haftung übernehmen. Irrtümer und Zwischenverkauf vorbehalten.
Grundriss
Erdgeschoss
>
>
Dachgeschoss (Ausbau-Vorschlag
>
>
Kellergeschoss
>
>
Dachboden (aktuell nicht vorha
>
>
Schnitt
>
>
Adresse
Jahnstraße 46, 55257 Budenheim
Interessante Orte
Preis- und Lageinformationen
Preistrend für Bestandsimmobilien in Budenheim