Sind Sie auf der Suche nach einem großzügigen Objekt für Familien mit Raumbedarf? Dann hätten wir da was für Sie!
Mitte der 60er Jahre wurde dieses große Anwesen errichtet, mit Praxisräumen und einem Wohnteil.
Nun steht der Wohnbereich (rechter Hausteil) zum Verkauf.
Die Zahnarztpraxisräume (linker Hausteil) bleibt bestehen.
Im Ergeschoss verteilen sich ca. 210 qm auf diverse Räume, u.a. ein sehr schöner, großzügiger Wohnbereich mit toller, abgesenkter Kaminlounge.
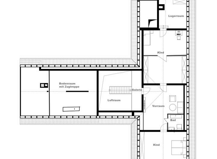
Im Dachgeschoss sind weitere ca. 60 qm vorhanden, verteilt auf drei Zimmer und ein Bad, ideal für Kids.
Die Heizungsanlage ist im Jahre 2023 erneuert worden und
steuert, natürlich getrennt geregelt, sowohl die Praxisräume als
auch den Wohnhaushälftem an.
Das Grundstück mit Westausrichtumg hat etwa 1200 qm.
Das Objekt ist massiv gebaut und in einem gepflegten Zustand.
Dennoch ist einiges in die Jahre gekommen und bedarf einer
kosmetischen sowie einer energetischen Auffrischung.
Bei der Kaufpreisgestaltung wurde das natürlich berücksichtigt.
Großzügige Haushälfte in Klein Hehlen - Musikerviertel
Johann-Strauss-Weg 2a,
29223 Celle
Auf Karte anzeigen
Finanzierungszertifikat
In nur zwei Minuten zu Ihrem persönlichen Finanzierungszertifkat.
Infos
| Haustyp | Doppelhaushaelfte |
|---|---|
| Etagenzahl | 2 |
| Wohnfläche ca. | 270 m2 |
| Nutzfläche | 20 m2 |
| Grundstücksfläche | 1.200 m2 |
| Bezugsfrei ab | sofort |
| Zimmer | 8 |
Kosten
| Kaufpreis |
375.000 € |
|---|---|
| Provision |
2,98% inkl. MWST, jeweils zunzahlen vom Käufer und Verkäufer |
Finanzierungsrechner:
Kaufpreis:
600.000 €
Eigenkapital:
600.000 €
Monatliche Rate
0 €
Effektiver Jahreszins
0 %
Sollzinsbindung
10 Jahre
Bausubstanz & Energieausweis
| Baujahr | 1965 |
|---|---|
| Qualität der Austattung | Normal |
| Wesentliche Energieträger | Öl |
| Energieausweis | liegt vor |
| Energieausweistyp | Bedarfsausweis |
| Energieverbrauchskennwert | 254,0 kWh/(m²*a) |
| Energieeffizienzklasse | H |
254,0
kWh/(m²*a)
Energieeffizienzklasse H
- A+
- A
- B
- C
- D
- E
- F
- G
- H
- 0
- 25
- 50
- 75
- 100
- 125
- 150
- 175
- 200
- 225
- >250
Beschreibung des Objekts
Ausstattung
Kaufinteressenten bitten wir, vor einer Besichtigung sicherzustellen, dass die Finanzierbarkeit gewährleistet ist.
Lage
Die Straße „Johann- Strauss-Weg“, im sogenannten Musikerviertel, liegt unweit
des Zentrums der schönen Altstadt von Celle, dort, wo die begehrten Wohn-lagen Hehlentor und Klein Hehlen nördlich der Aller fließend ineinander übergehen. Die direkte Nachbarschaft
ist geprägt durch gepflegte Anwesen, die sich alle in Privatbesitz befinden, wobei hier nicht die bauliche Ausnutzung der Grundstücke im Fokus stand, sondern eine großzügige
Parzellierung, die der Exklusivität des Standortes gerecht wird. Dieses schöne gewachsene Viertel wird dem Wunsch nach wertigem Wohnen und dennoch optimaler Verkehrsanbindung mehr als gerecht. Gute Einkaufsmöglichkeiten, Kindergarten, Grundschule, Arztpraxen, Apotheke und Sportanlagen decken
alle Bedürfnisse des täglichen Lebens. Natürliche Erlebnisräume wie die Allerniederungen und auch der Stadtforst Celle sowie die Nähe zum Zentrum der historischen Herzogstadt bieten vielfältige Möglichkeiten der Naherholung und bringen die Bereiche
Wohnen, Freizeit, Sport und Kultur in wunderbaren Einklang.
Sonstige Angaben
Mit diesem Immobilienangebot bieten wir Ihnen unsere Vermittlungs- und Nachweistätigkeit als Makler an. Eine Verpflichtung Ihrerseits zur Zahlung einer Provision entsteht erst in dem Fall des Zustandekommens eines Kaufvertrages über ein von uns angebotenes Objekt. Die Provision beträgt 2,98 % des Kaufpreises inklusive Mehrwertsteuer und ist nach Abschluss des Kaufvertrages jeweils vom Käufer und Verkäufer an uns zu zahlen.
Alle in diesem Exposé stehenden Angaben haben wir vom Eigentümer erhalten. Diese wurden von uns mit größtmöglicher Sorgfalt überprüft. Für die Richtigkeit und die Aktualität können wir jedoch, trotz hoher Sorgfalt, keine Gewähr und keine Haftung übernehmen.
Des Weiteren können wir auch nicht gewährleisten, dass zum Zeitpunkt des Zugangs des Exposés oder zu einem späteren Zeitpunkt das Objekt noch zum Verkauf steht. Das Angebot ist somit unverbindlich und freibleibend.
Grundriss
EG Grundriss
>
>
OG Grundriss
>
>
Adresse
Johann-Strauss-Weg 2a, 29223 Celle
Interessante Orte
Preis- und Lageinformationen
Preistrend für Bestandsimmobilien in Celle