Willkommen in Ihrer Traum-Doppelhaushälfte in Celle / Garßen! Dieses stilvolle Haus, das 2024 erbaut wurde, bietet Ihnen den Luxus eines Erstbezugs. Auf einem großzügigen Grundstück von ca. 337 m² erwartet Sie ein Zuhause mit insgesamt ca. 133 m² Wohnfläche, die sich ideal auf 1,5 Etagen verteilt. Die Ausstattung des Hauses ist von gehobener Qualität und erfüllt höchste Ansprüche an modernen Wohnkomfort.
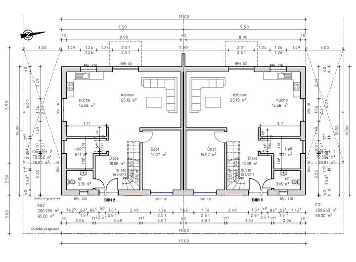
Das Herzstück dieses Hauses bildet der helle und großzügige Wohn- und Essbereich, der durch eine elegante Terrasse erweitert wird – der perfekte Ort für entspannte Abende und gesellige Treffen im Freien. Mit insgesamt vier Schlafzimmern bietet dieses Haus ausreichend Platz für eine Familie oder individuelle Gestaltungsmöglichkeiten. Ein modernes Badezimmer sichert einen stressfreien Tagesstart, während das zusätzliche Gäste-WC für den Komfort Ihrer Besucher sorgt.
Abgerundet wird das Raumangebot durch ca. 8 m² Nutzfläche, die Ihnen praktische Abstellfläche ermöglicht. Zudem sorgt ein pflegeleichter und stilvoll angelegter Garten für eine grüne Oase vor Ihrer Tür.
Dieses Haus vereint modernes Design mit einem ruhigen Wohnumfeld und ist perfekt für alle, die nach einem hochwertigen und komfortablen Zuhause suchen. Lassen Sie sich diese einmalige Gelegenheit nicht entgehen und vereinbaren Sie noch heute eine Besichtigung!
Ihr neues Zuhause in Celle – exklusive Neubau-Doppelhaushälfte mit Grundstück
29229 Celle
Die vollständige Adresse der Immobilie erhalten Sie vom Anbieter.
Auf Karte anzeigen
Die vollständige Adresse der Immobilie erhalten Sie vom Anbieter.
Finanzierungszertifikat
In nur zwei Minuten zu Ihrem persönlichen Finanzierungszertifkat.
Infos
| Haustyp | Doppelhaushaelfte |
|---|---|
| Etagenzahl | 1 |
| Wohnfläche ca. | 133 m2 |
| Nutzfläche | 7,93 m2 |
| Grundstücksfläche | 337 m2 |
| Zimmer | 5 |
| Schlafzimmer | 4 |
| Badezimmer | 2 |
| Garage/Stellplatz | Außenstellplatz |
| Anzahl Garage/Stellplatz | 2 |
Kosten
| Kaufpreis |
430.000 € |
|---|---|
| Provision |
3,57 % |
Finanzierungsrechner:
Kaufpreis:
600.000 €
Eigenkapital:
600.000 €
Monatliche Rate
0 €
Effektiver Jahreszins
0 %
Sollzinsbindung
10 Jahre
Bausubstanz & Energieausweis
| Baujahr | 2024 |
|---|---|
| Objektzustand | Erstbezug |
| Qualität der Austattung | Gehoben |
| Heizungsart | Wärmepumpe |
| Energieausweis | liegt vor |
| Energieausweistyp | Bedarfsausweis |
| Energieverbrauchskennwert | 30,7 kWh/(m²*a) |
| Energieeffizienzklasse | A |
30,7
kWh/(m²*a)
Energieeffizienzklasse A
- A+
- A
- B
- C
- D
- E
- F
- G
- H
- 0
- 25
- 50
- 75
- 100
- 125
- 150
- 175
- 200
- 225
- >250
Beschreibung des Objekts
Ausstattung
Diese Immobilie bietet eine Vielzahl moderner Ausstattungsmerkmale, die sowohl Komfort als auch Nachhaltigkeit gewährleisten. Die Präsenz eines Gästebades sorgt für zusätzlichen Komfort und Flexibilität im Alltag. Eine großzügige Terrasse lädt zu entspannenden Stunden im Freien ein und bietet einen idealen Ort für gesellige Zusammenkünfte.
Für wohlige Wärme sorgt die innovative Fußbodenheizung, die in Kombination mit einer effizienten Wärmepumpe betrieben wird. Diese fortschrittliche Heizungsart gewährleistet nicht nur eine angenehme Wärmeverteilung, sondern trägt auch zu einem energieeffizienten und umweltfreundlichen Wohnen bei. Die Befeuerung erfolgt über eine Luft/Wasser Wärmepumpe, ein System, das für seine Zuverlässigkeit und Nachhaltigkeit bekannt ist.
Mit diesen hochwertigen Ausstattungsmerkmalen erfüllt das Objekt höchste Ansprüche an modernen Wohnkomfort.
Lage
Die angebotene Doppelhaushälfte befindet sich im Neubaugebiet "Blaues Land" in Garßen. Dieser Standort vereint urbanes Flair mit ländlicher Ruhe und bietet somit eine ideale Umgebung für Familien, Paare und alle, die eine gelungene Mischung aus Stadt- und Landleben schätzen.
In unmittelbarer Umgebung finden sich zahlreiche Einkaufsmöglichkeiten des täglichen Bedarfs, darunter Supermärkte, Bäckereien und kleine lokale Geschäfte. Für die Bildung der jüngsten Familienmitglieder stehen Kindergärten und Schulen in der Nähe zur Verfügung.
Die Anbindung an den öffentlichen Nahverkehr ist hervorragend, sodass das Stadtzentrum von Celle und andere Teile der Region problemlos erreichbar sind. Pendler profitieren zudem von der Nähe zu den wichtigen Verkehrsknotenpunkten, die einen schnellen Zugang zu den umliegenden Städten und Gemeinden ermöglichen.
Freizeitaktivitäten kommen in Garßen ebenfalls nicht zu kurz: Eine Vielzahl von Sport- und Freizeitmöglichkeiten, darunter Wanderwege, Radstrecken und Naherholungsgebiete, lädt zu erholsamen Stunden im Freien ein. Auch kulturelle Veranstaltungen und ein reges Vereinsleben tragen zur hohen Lebensqualität dieser Gegend bei.
Insgesamt besticht diese Lage durch ihre perfekte Balance zwischen Ruhe und Erreichbarkeit und bietet somit ein einzigartiges Wohnambiente für unterschiedlichste Lebensstile.
Sonstige Angaben
- Baujahr: 2024 (laut Energieausweis)
- Wesentlicher Energieträger: Luft/Wasser Wärmepumpe
- Moderner, energieeffizienter Neubau
- Nachhaltige Heiztechnologie
- Zeitgemäße und umweltfreundliche Energielösung
Adresse
29229 Celle
Interessante Orte
Preis- und Lageinformationen
Preistrend für Bestandsimmobilien in Celle