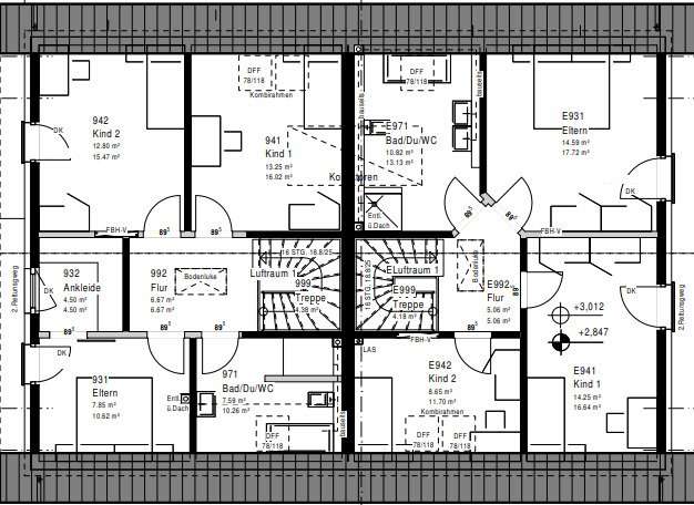
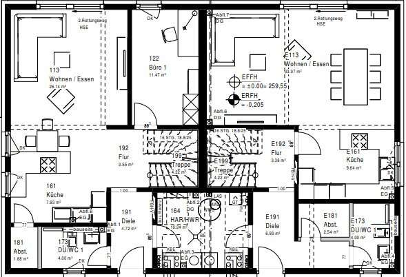
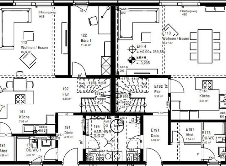
Das Haus kann wie bei einem Doppelhaus mit zwei Eingängen von zwei Familien genutzt werden. Der Preis bezieht sich aber zusammen auf beide Wohneinheiten.
Diese Immobilie mit insgesamt ca. 246 m² Netto-Grundfläche (nach DIN277) im EG und DG bildet die perfekte Einheit für zwei Familien. Noch mehr Platz würden wir durch einen Keller bekommen, den wir optional anbieten können. Und bei modernster Haustechnik erzeugen Sie einen Teil Ihres benötigten Stroms mit der Photovoltaikanlage selbst.
Gerne passen wir den Grundriss aber auch die Hausgröße Ihren Bedürfnissen an. Durch verschiedene Anbauteile, wie sie zu sehen sind, kann das Haus noch an Eleganz gewinnen.
Anbauteile wie Erker, Balkone, Zwerchgiebel, Wintergärten, Garagen usw. sind natürlich auch möglich, um Ihrem Haus noch mehr Flair zu geben. Diese sind im Grundpreis nicht enthalten, aber sprechen Sie mich gerne an.
Bei unserer Raumhöhe von 2,75 m empfinden Sie das Wohnen ganz anders. Diese Raumhöhe ermöglicht nicht nur eine wunderbare Behaglichkeit, sondern macht es auch möglich, dass unsere Terrassentüren und Fenster höher ausgeführt werden können. Der zusätzliche Lichteinfall begeistert all unsere Kunden!
Das Effizienzhaus 55 ist bei uns Standard. Das Effizienzhaus 40 und 40 Plus sind natürlich auch möglich!
Hier wohnen zwei Familien wie in einem Doppelhaus.
65321 Heidenrod
Die vollständige Adresse der Immobilie erhalten Sie vom Anbieter.
Auf Karte anzeigen
Die vollständige Adresse der Immobilie erhalten Sie vom Anbieter.
Finanzierungszertifikat
In nur zwei Minuten zu Ihrem persönlichen Finanzierungszertifkat.
Infos
| Haustyp | Mehrfamilienhaus |
|---|---|
| Etagenzahl | 2 |
| Wohnfläche ca. | 230 m2 |
| Grundstücksfläche | 467 m2 |
| Zimmer | 9 |
| Schlafzimmer | 6 |
| Badezimmer | 4 |
Kosten
| Kaufpreis |
616.844 € |
|---|
Finanzierungsrechner:
Kaufpreis:
600.000 €
Eigenkapital:
600.000 €
Monatliche Rate
0 €
Effektiver Jahreszins
0 %
Sollzinsbindung
10 Jahre
Bausubstanz & Energieausweis
| Baujahr | unbekannt |
|---|
Beschreibung des Objekts
Ausstattung
Ausstattung und im Preis enthalten:
- Grundstück
- Projektiertes Ausbauhaus mit Klima-Plus-Wand
- massa Freiraum = Wohnraumhöhe 2,75 m im EG und DG serienmäßig
- KfW Effizienzhaus 55 mit hochwertigen 3-fach-verglasten Wärmeschutzfenster
- inklusive Architekten- und Ingenieurleistungen (Genehmigungsplanung, Bauantrag,
Statik, Wärmebedarfsberechnungen usw.)
- massa Bodenplatte
Ein Keller ist gegen Aufpreis möglich!
- Bodengutachten für die Untersuchung des Baugrundes
- Luft-Wasser-Wärmepumpe (deutscher Markenhersteller)
- Fußbodenheizung
- Photovoltaikanlage mit Stromspeicher
- Kontrollierte Be- und Entlüftungsanlage für perfektes Wohlfühlklima inkl.
Wärmerückgewinnung
- umfangreiche Elektroausstattung inkl. Installation
- Sanitär-Rohinstallation für alle Bäder und Küche
- Moderne Buchenholztreppen in verschiedenen Farben inkl. Edelstahl-Geländerstäbe
- Alu-Rollläden für alle Fenster und moderne Haustüre zur Auswahl
- Dachrinne und Fallrohre aus Zink
- 15 Monate Festpreisgarantie
- Bezahlung des Hauses erst nach Baufortschritt (Abnahme der Leistungen)
Der genannte Preis versteht sich zuzüglich Bemusterungspaket (komplette Innenausstattung wie z.B. Fliesen, Türen, Sanitärobjekte, Bodenbeläge, usw.), Lohnkosten für den Trocken- und Innenausbau, Baunebenkosten (Erdarbeiten, Hausanschluss, Baustelleneinrichtung usw.), Außenanlage, Grunderwerbsteuer und Notarkosten.
Lage
Das Grundstück liegt in Ortsrandlage von Heidenrod-Kemel.
Sonstige Angaben
Dieses hochwertige Haus in modernster Bauweise schafft bleibende Werte. Unser Standard entspricht dem "KfW Effizienzhaus 55"! Das Effizienzhaus 40 und 40 Plus ist auch möglich!
Unsere zertifizierte Qualität:
- RAL-Gütezeichen von der Bundes-Gütegemeinschaft Montagebau und Fertighäuser e.V.
-Creditreform Bonitätszertifikat "Ausgezeichnete Bonität"
-DGNB Zertifikat für nachhaltiges Bauen (Deutsche Gesellschaft für nachhaltiges
Bauen)
- Urkunde der Qualitätsgemeinschaft Deutscher Fertigbau (QDF) für die Einhaltung der geforderten Gesamtqualitätsrichtlinien
- TÜV Rheinland Zertifikat für gesünderes Bauen mit dem Zertifikat für schadstoffgeprüfte Wohnhäuser
Außerdem bieten wir Ihnen auch andere Ausbaustufen an. Hierbei übernehmen wir für Sie die Koordination und die Durchführung des Ausbaus.
Nutzen Sie auch unseren Grundstücks- und Finanzierungsservice!
Rufen Sie mich an, ich helfe Ihnen gerne.
Grundriss
161962-7130-5-g
>
>
161963-7130-6-g
>
>
Adresse
65321 Heidenrod
Interessante Orte
Preis- und Lageinformationen
Preistrend für Bestandsimmobilien in Heidenrod