Willkommen in Ihrem neuen Zuhause in Idstein-Wörsdorf! Das charmante und geräumige Immobilie mit offenem Kamin und einem großen und angelegten Garten bietet Ihnen ausreichend Platz und Komfort für die ganz Familie.
Das Gebäude überzeugt durch seine großzügige und offene Bauweise und erstreckt sich über zwei Etagen auf einem Grundstücksareal von 611 m². Mit einer Wohnfläche von ca. 212 m² und einer Nutzfläche von ca. 162 m² ist ausreichend Raum für ein bis zwei Familien vorhanden. Insgesamt stehen Ihnen 8 Zimmer und 5 gemütliche Schlafzimmer zur Verfügung. Die beiden Bäder und zwei Gäste-WC´s sorgen für zusätzlichen Komfort im Alltag.
Das massiv errichtete eingeschossige Wohngebäude mit komplett ausgebauten Dachgeschoss und Spitzboden ist zudem auch noch voll unterkellert.
Insgesamt besteht das Objekt aus zwei Gebäudeabschnitten;
- einem Wohngebäude Bj. 1967 und
- einem zweiten Wohngebäude, welches 1995 gartenseitig angebaut wurde.
Im Weiteren sind Teilflächen der Kellergeschosse zu Wohn-, Arbeits- und Hobbyzwecke voll ausgebaut. Dank der großzügigen Unterkellerung bietet das Haus noch weiteren und wertvollen Stauraum. Das Garagengebäude mit PKW-Grube ist an das Wohngebäude einseitig angebaut. Auf der südöstliche Hausseite wurde noch ein Carport angebaut. Der Vorplatz zum Haus ist angelegt und gepflastert.
G A R T E N :
Im Außenbereich lädt ein Balkon und der angelegte Garten der viel Platz für Freiluftaktivitäten bietet, zur Entspannung ein.
V E R F Ü G B A R K E I T :
Das schöne Anwesen ist auch kurzfristig nach Vereinbarung verfügbar. Nutzen Sie diese Chance, ein Zuhause in einer ruhigen und dennoch gut angebundenen Lage zu erwerben. Kontaktieren Sie uns, um einen Besichtigungstermin zu vereinbaren. Wir freuen uns darauf, Ihnen diese besondere Immobilie näher vorzustellen!
VIRTUELLE 3-D BEGEHUNG:
Sie haben im Vorfeld zu einer Besichtigung die Möglichkeit das Anwesen virtuell über eine 3-D Tour von OGULO zu betreten...
Attraktives 2 Familienhaus mit großen Garten in schöner Wohnlage von Idstein-Wörsdorf
65510 Idstein
Die vollständige Adresse der Immobilie erhalten Sie vom Anbieter.
Auf Karte anzeigen
Die vollständige Adresse der Immobilie erhalten Sie vom Anbieter.
Finanzierungszertifikat
In nur zwei Minuten zu Ihrem persönlichen Finanzierungszertifkat.
Infos
| Haustyp | Mehrfamilienhaus |
|---|---|
| Etagenzahl | 2 |
| Wohnfläche ca. | 212 m2 |
| Nutzfläche | 161,94 m2 |
| Grundstücksfläche | 611 m2 |
| Bezugsfrei ab | kurzfristig n.V. |
| Zimmer | 8 |
| Schlafzimmer | 5 |
| Badezimmer | 2 |
| Garage/Stellplatz | Garage |
| Anzahl Garage/Stellplatz | 1 |
Kosten
| Kaufpreis |
574.600 € |
|---|---|
| Provision |
3,57 % vom notariellen Kaufpreis inkl. 19 % MwSt. |
Finanzierungsrechner:
Kaufpreis:
600.000 €
Eigenkapital:
600.000 €
Monatliche Rate
0 €
Effektiver Jahreszins
0 %
Sollzinsbindung
10 Jahre
Bausubstanz & Energieausweis
| Baujahr | 1967 |
|---|---|
| Objektzustand | Gepflegt |
| Qualität der Austattung | Normal |
| Heizungsart | Zentralheizung |
| Wesentliche Energieträger | Gas |
| Energieausweis | liegt vor |
| Energieausweistyp | Verbrauchsausweis |
| Energieverbrauchskennwert | 132,0 kWh/(m²*a) |
| Energieeffizienzklasse | E |
132,0
kWh/(m²*a)
Energieeffizienzklasse E
- A+
- A
- B
- C
- D
- E
- F
- G
- H
- 0
- 25
- 50
- 75
- 100
- 125
- 150
- 175
- 200
- 225
- >250
Beschreibung des Objekts
Ausstattung
Die Ausstattung des Hauses ist solide und umfasst unter anderem Böden aus Fliesen und Teppichböden und eine hochwertige Einbauküche mit direkt angrenzenden Essbereich mit Ausgang zum Balkon. Gemütliche Abende verspricht der Kamin im Wohnbereich, der zu einer einladenden und warmen Atmosphäre beiträgt.
Laut Energieausweis, der als Verbrauchsausweis vorliegt, wurde das Gebäude ursprünglich im Jahr 1970 errichtet. Die Heizung ist Baujahr 2005, als wesentlicher Energieträger dient Gas, was zu einer effizienten und wirtschaftlichen Energienutzung beiträgt.
Für weitere Informationen oder zur Vereinbarung eines Besichtigungstermins stehen wir Ihnen gerne zur Verfügung. Diese Immobilie könnte schon bald Ihr neues Zuhause sein – kontaktieren Sie uns noch heute, um mehr zu erfahren.
V O R D E R H A U S - B A U J A H R 1 9 7 0
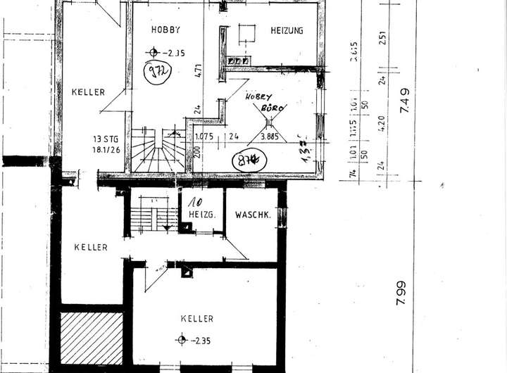
K E L L E R G E S C H O S S :
- Großer Hobbyraum mit Tageslicht
- Vorratsraum / Kellerraum
- Haustechnikraum
- Waschküche / Dusche mit WC
E R D G E S C H O S S :
- innenliegendes Bad mit Wanne und WC (einfach)
- Küche (leer)
- Wohnzimmer mit Essbereich
- Flur mit Zugang zum Keller- und zum Dachgeschoss
D A C H G E S C H O S S :
- WC mit Tageslicht
- 2 Kinderzimmer + Kammer
- 1 Schlafzimmer
D O P P E L G A R A G E :
- elektrisch betriebenes Rolltor
- mit einer PKW Grube
- 2 PKW Einstellplätze - (hintereinander)
- Abstellraum
- Zugang zum Garten
G A R T E N S E I T I G E S - H A U S - A N B A U - 1 9 9 5 :
G a r t e n g e s c h o s s :
- Treppenhaus
- Hobby- und Arbeitsraum
- Heizungskeller
- Viessman Gaszentralheizung
- Kellerräume
E R D G E S C H O S S :
- Gäste WC
- Küche mit Essbereich und Zugang zum Garten
- Hauswirtschaftsraum mit Pantryküche und Geräten
- Großzügiger offener Wohnbereich mit Kachelofen und
- Zugang über die innenliegende Treppe zum Keller- und Dachgeschoss
D A C H G E S C H O S S :
- Treppenhaus
- Flurbereich
- Tageslichtbad mit WC, Waschbecken und Dusche
- 1 Kinderzimmer
- 1 Schlafzimmer
Lage
Dieses charmante Zweifamilienhaus befindet sich in Idstein-Wörsdorf, einer idyllischen und familienfreundlichen Gemeinde in einer der begehrtesten Gegenden der Region. Die Lage besticht durch ihre optimale Balance zwischen Ruhe und hervorragender Anbindung. In einer Entfernung von nur etwa 200 Metern erreichen Sie das Stadtzentrum mit einer Vielzahl von Einkaufsmöglichkeiten, die keine Wünsche offen lassen.
Familien profitieren zudem von der Nähe zu Bildungseinrichtungen – ein Kindergarten und eine Grundschule befinden sich in fußläufiger Reichweite, während weiterführende Schulen wie eine Haupt-, Real- und ein Gymnasium in kurzer Fahrdistanz liegen.
Trotz der ruhigen Umgebung sind Sie bestens an das Verkehrsnetz angebunden: Die Autobahnauffahrt ist lediglich gut drei Kilometer entfernt und gewährleistet eine zügige Verbindung in die umliegenden Städte. Der Bahnhof Wörsdorf ist in nur 5 Minuten bequem per Fuß zu erreichen. Auch Haltestellen des öffentlichen Nahverkehrs sind mit einem kurzen Spaziergang von etwa 310 Metern bequem erreichbar.
Diese außergewöhnliche Lage in Idstein-Wörsdorf verspricht eine hohe Lebensqualität, kombiniert mit der praktischen Erreichbarkeit aller wichtigen Einrichtungen des täglichen Lebens.
Der Stadtteil Wörsdorf liegt in nördlicher Richtung, nur 2 km von der Kernstadt Idstein entfernt und ist u.a. der größte Ortsteil von Idstein. Er zeichnet sich ganz besonders durch seine perfekte und breit gefächerte Angebot aus.
Wörsdorf bietet Ihnen eine sehr gute Infrastruktur mit einem eigenen Bus- und Bahnanschluss und einer sehr guten Verkehrsanbindung nach Idstein, Wiesbaden, Frankfurt a. M. und Limburg. Zum Autobahnanschluss A 3 Idstein - Köln - Frankfurt benötigt man nur wenige Minuten.
Des Weiteren gibt es zwei Kindergärten am Ort sowie die Möglichkeit des anschließenden Besuchs der Grundschule in Wörsdorf. Für den täglichen Bedarf sind ein großer Supermarkt sowie weitere Einkaufsmöglichkeiten gegeben.
Sonstige Angaben
Zum Verkauf steht ein attraktives 2-Familienhaus, welches kurzfristig nach Vereinbarung verfügbar ist. Diese moderne Immobilie bietet eine Vielzahl von Annehmlichkeiten, die den Ansprüchen anspruchsvoller Käufer gerecht werden.
ÜBER UNS:
Martin Brandt Immobilien, gegründet 1993, ist mit mehr als 32 Jahren Erfahrung einer der führenden Immobilien-Dienstleister in der Rhein-Main-Region. Wir unterstützen Sie als unabhängiger Immobilienmakler mit detaillierter Markt- und Objektkenntnis bei der schnellen und kundenorientierten Immobiliensuche und Vermittlung.
HABEN WIR IHR INTERESSE GEWECKT ?
Diese Immobilie gefällt Ihnen? Sie wünschen eine Besichtigung? Bitte nutzen Sie die elektronische Kontaktmöglichkeit auf dieser Seite und senden Sie uns Ihre Mail mit Angabe Ihres vollständigen Namens, Ihrer Telefon Nummer(n), E-Mail-Adresse und Ihres Terminwunsches. Bitte denken Sie auch an einen möglichen alternativen Termin.
B E S I C H T I G U N G S T E R M I N E :
Für weitere Informationen sowie die Vereinbarung eines Besichtigungstermins stehen wir Ihnen gerne zur Verfügung. Wir freuen uns auf Ihre e-Mail Anfrage unter: immobilien@bpi24.de
A N S P R E C H P A R T N E R :
Martin Brandt und Kerstin Brandt
M A K L E R P R O V I S I O N :
Im Falle des Zustandekommens eines Kaufvertrages, ist eine Courtage in Höhe von 3,57 % inkl. 19 % MwSt. vom vereinbarten und notariellen Kaufpreis vom Käufer an den Makler zu zahlen.
FREUNDLICHER HINWEIS :
Alle Angaben in diesem Exposé wurden sorgfältig und so vollständig wie möglich gemacht. Dennoch kann das Vorhandensein von Fehlern nicht ausgeschlossen werden. Die Angaben in diesem Exposé erfolgen daher ohne Gewähr und basieren ausschließlich auf Informationen, die uns vom Verkäufer/Vermieter bzw. von Dritten zur Verfügung gestellt wurden, so dass wir keine Gewähr für die Vollständigkeit, Richtigkeit und Aktualität dieser Angaben übernehmen können. Irrtum und Zwischenverkauf/Zwischenvermietung bleibt vorbehalten.
Grundriss
Grundriss Kellergeschoss
>
>
Grundriss Erdgeschoss
>
>
Grundriss Dachgeschoss
>
>
Kellergeschoss
>
>
Erdgeschoss
>
>
Dachgeschoss
>
>
Adresse
65510 Idstein
Interessante Orte
Preis- und Lageinformationen
Preistrend für Bestandsimmobilien in Idstein