Objektbeschreibung :
Dieses Haus ist bereits im Standard für die
Effizienzhaus-Klasse KfW40 ausstattet. Das heißt
die Dämmung der Fundamentplatte ist im
Grundpreis bereits enthalten.
Die Außenwände im Passiv-Haus-Standard und eine
sparsame Heiztechnik mit integrierter
Wohnraumlüftung und Wärmerückgewinnung
garantieren einen geringen Energieverbrauch und ein
fantastisches Raumklima, das insbesondere Allergiker
aufatmen lässt.
Gebäudetyp: Einfamilienhaus
Wohnfläche: ca. 143 m²
Grundstück ca. 500 m²
Natürlich können wir im Rahmen der Bebauungsmöglichkeiten
das Haus auf Ihre individuellen Wünsche und Größe anpassen !
NEUBAU - EINFAMILIENHAUS IN EINHAUSEN MIT GRUNDSTÜCK
64683 Einhausen
Die vollständige Adresse der Immobilie erhalten Sie vom Anbieter.
Auf Karte anzeigen
Die vollständige Adresse der Immobilie erhalten Sie vom Anbieter.
Finanzierungszertifikat
In nur zwei Minuten zu Ihrem persönlichen Finanzierungszertifkat.
Infos
| Haustyp | Einfamilienhaus |
|---|---|
| Etagenzahl | 2 |
| Wohnfläche ca. | 143 m2 |
| Grundstücksfläche | 500 m2 |
| Bezugsfrei ab | SOFORT |
| Zimmer | 5 |
| Schlafzimmer | 4 |
| Badezimmer | 2 |
| Anzahl Garage/Stellplatz | 0 |
Kosten
| Kaufpreis |
669.000 € |
|---|---|
| Provision | Nein |
Finanzierungsrechner:
Kaufpreis:
600.000 €
Eigenkapital:
600.000 €
Monatliche Rate
0 €
Effektiver Jahreszins
0 %
Sollzinsbindung
10 Jahre
Bausubstanz & Energieausweis
| Baujahr | 2026 |
|---|
Beschreibung des Objekts
Ausstattung
Ausstattung :
Folgende Leistungen sind MEHR WERT - schon im
Grundpreis enthalten!
- Inkl. individuelle Grundrissgestaltung
- Inkl. gedämmte Fundamentplatte
- Inkl. Frischluft-Wärmepumpen- Technologie
mit integrierter Lüftungsanlage mit
Wärmerückgewinnung
- Inkl. Elektroinstallation
- Inkl. Transport- und Montageversicherung
- Inkl. Baustellen WC und Bauschuttentsorgung
- Inkl. Baubetreuung u.v.m.
Der Angebotspreis ist inklusive Grundstück und bezieht
sich beim Haus auf die Standard-Ausbaustufe „Fast
fertig plus“ (FFplus). Ihre Eigenleistungen: Spachtel-
Tapezier- und Malerabreiten, Bodenbeläge, Innentüren.
Bilder können evtl. Anbauteile wie z.B. Carports,
Balkone, Gauben enthalten, die nicht im Angebotspreis
enthalten sind. Gerne machen wir Ihnen ein Angebot.
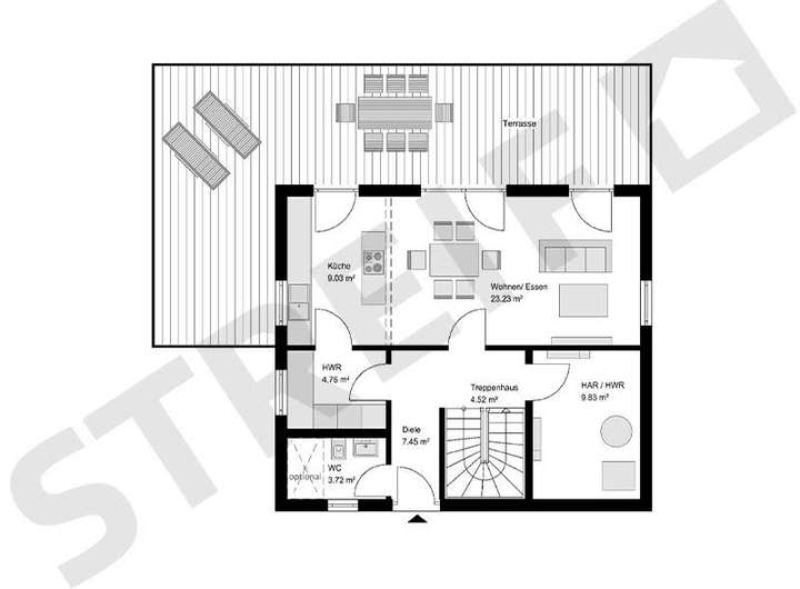
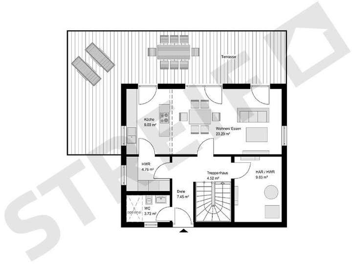
Die Grundrisse sind als Beispiel zu sehen und können nach
Ihren Wünschen und Vorstellungen verändert werden
sowohl in dem Zuschnitt als auch in der Größe und in der Hausform.
Lage
Einhausen liegt an der Bergstraße im Hessischen Ried und gehört zum klimatisch begünstigten nordöstlichen Oberrheingraben. Umgeben ist der von der Weschnitz durchflossene Ort von großen Wald- und landwirtschaftlichen Nutzflächen.
Zur Autobahnauffahrt der A 67 in Lorsch benötigt man ca. 3 Minuten
Zur Autobahnauffahrt der A 5 in Bensheim benötigt man ca. 5 Minuten
Sonstige Angaben
Streif Hauspreis 345.000 €
Grundst.preis 324.000 €
Angebotspreis 669.000 €
Zuzgl. der Baunebenkosten sowie die Notar und Grundbuchkosten und die Grunderwerbssteuer !
Weitere Dokumente
GR EGGR OG
Grundriss
GR EG
>
>
GR OG
>
>
Adresse
64683 Einhausen
Interessante Orte
Preis- und Lageinformationen
Preistrend für Bestandsimmobilien in Einhausen