Willkommen in Ihrem zukünftigen Einfamilienhaus, das perfekt auf Ihre Wünsche und Vorstellungen zugeschnitten wird. Dieses Projekt bietet Ihnen die Möglichkeit, ein maßgeschneidertes Zuhause zu verwirklichen, das nicht nur Ihren Bedürfnissen entspricht, sondern auch höchste Qualität und Nachhaltigkeit vereint. Auf zwei Etagen verteilen sich insgesamt vier Zimmer mit einer Wohnfläche von 123,32 m². Die drei Schlafzimmer bieten ausreichend Platz für Ihre Familie, während das Badezimmer mit Dusche, Wanne und Fenster sowie ein zusätzliches Gäste-WC Komfort für alle Bewohner sicherstellen.
Ihr Traumhaus- Individuell und Nachhaltig!
67294 Ilbesheim
Die vollständige Adresse der Immobilie erhalten Sie vom Anbieter.
Auf Karte anzeigen
Die vollständige Adresse der Immobilie erhalten Sie vom Anbieter.
Finanzierungszertifikat
In nur zwei Minuten zu Ihrem persönlichen Finanzierungszertifkat.
Infos
| Haustyp | Einfamilienhaus |
|---|---|
| Etagenzahl | 2 |
| Wohnfläche ca. | 123 m2 |
| Grundstücksfläche | 540 m2 |
| Zimmer | 4 |
| Schlafzimmer | 3 |
| Badezimmer | 1 |
Kosten
| Kaufpreis |
351.864 € |
|---|---|
| Provision | Nein |
Finanzierungsrechner:
Kaufpreis:
600.000 €
Eigenkapital:
600.000 €
Monatliche Rate
0 €
Effektiver Jahreszins
0 %
Sollzinsbindung
10 Jahre
Bausubstanz & Energieausweis
| Baujahr | unbekannt |
|---|---|
| Bauphase | Haus in Planung (projektiert) |
| Heizungsart | Wärmepumpe |
Beschreibung des Objekts
Ausstattung
Die Ausstattung Ihres neuen Zuhauses lässt keine Wünsche offen: Ob Parkett oder Fliesen - Sie entscheiden über den Bodenbelag und genießen die Vorteile Ihrer Wahl, wie zum Beispiel die Langlebigkeit von Fliesen oder die Wärme von Holz. Beheizt wird Ihr Haus mit einer effizienten Wärmepumpe, die nicht nur umweltschonend ist, sondern auch für niedrige Energiekosten sorgt. Dank des Passivhaus-Standards und des Niedrigenergie-Neubaustandards bleibt Ihr Energieverbrauch minimal.
Sonstige Angaben
Das Grundstück wird vom Eigentümer erworben.
Bei der Suche des Traumgrundstücks wird gerne unterstützt.
Zögern Sie nicht und sichern Sie sich noch heute einen persönlichen Beratungstermin.
Bequem per WhatsApp oder telefonisch unter:
0176 459 17 206
oder per Mail an:
Lars.Schneider@allkauf.de
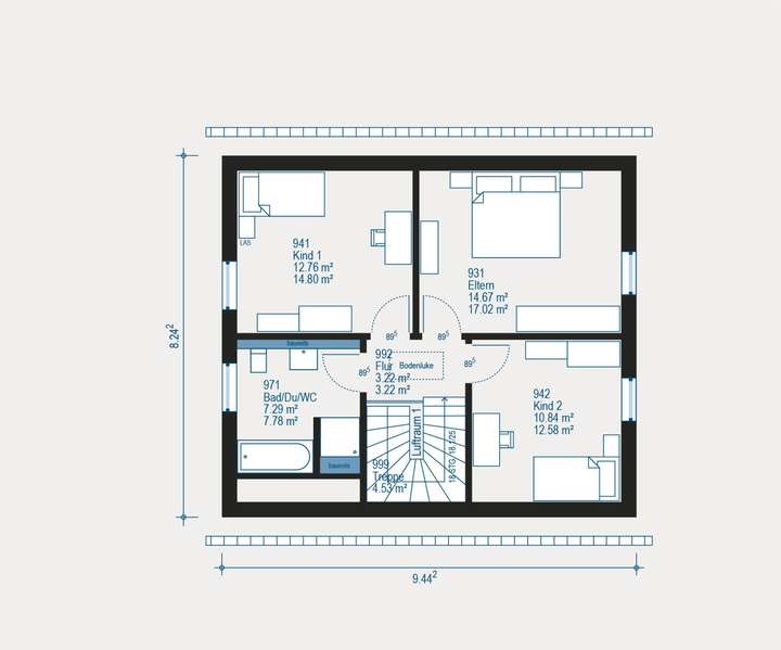
Grundriss
Grundriss
>
>
Grundriss
>
>
Adresse
67294 Ilbesheim
Interessante Orte
Preis- und Lageinformationen
Preistrend für Bestandsimmobilien in Ilbesheim