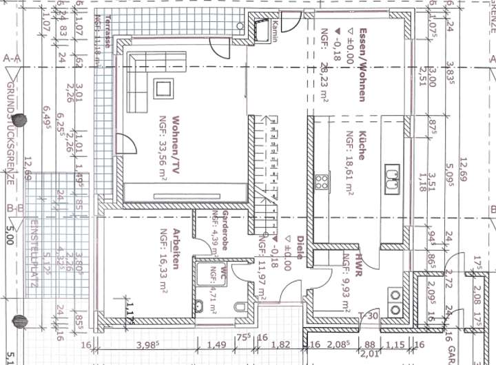
495.000 Euro VB Einfamilienwohnhaus auf 434m² Grundstück: 4 Zimmer, Küche, Hauswirtschaftsraum, Speisekammer, 2 Bäder, Windfang, 4 Kellerräume, massiver Gartenschuppen mit WC, Terrasse, Gartenteich, Aussenkamin Keller ca. 60m², EG ca. 70m², OG ca. 43m² Sanierungen: Gaszentralheizung mit Speichertank aus 2015 Badezimmer EG aus 2018 Küche aus 2020 Bebauungsplan: WA, GRZ 0,4, GFZ 0,8, II, ED Hinterlieger-Baugrundstück auf 414m² Grundstücksfläche. Baugenehmigung für ein Einfamilienhaus inklusive Stellplatz und Garage liegt bereits vor. !!!Keine Bauträgerbindung!!! Grundrisse, Zeichnungen und Schnitte des genehmigten Einfamilienhauses anliegend. Bebauungsplan: WA, GRZ 0,4, I, E Alle Objektrelevanten Unterlagen sind vorhanden und werden Ihnen, bei einem gemeinsamen Besichtigungstermin, zur Verfügung gestellt.
Havelse Einfamilienhaus + Baugrundstück + Baugenehmigung EFH
30823 Garbsen
Die vollständige Adresse der Immobilie erhalten Sie vom Anbieter.
Auf Karte anzeigen
Die vollständige Adresse der Immobilie erhalten Sie vom Anbieter.

Finanzierungszertifikat
In nur zwei Minuten zu Ihrem persönlichen Finanzierungszertifkat.
Infos
Haustyp | Einfamilienhaus |
---|---|
Etagenzahl | 2 |
Wohnfläche ca. | 113 m2 |
Nutzfläche | 70 m2 |
Grundstücksfläche | 848 m2 |
Zimmer | 4 |
Schlafzimmer | 3 |
Badezimmer | 2 |
Anzahl Garage/Stellplatz | 2 |
Kosten
Kaufpreis |
495.000 € |
---|---|
Provision |
3,57 Die Maklerprovision beträgt 3,57% inklusive der gesetzlichen Mehrwertsteuer. Der Immobilienmakler hat einen provisionspflichtigen Maklervertrag in gleicher Höhe mit dem Verkäufer abgeschlossen. |
Finanzierungsrechner:
Kaufpreis:
600.000 €
Eigenkapital:
600.000 €
Monatliche Rate
0 €
Effektiver Jahreszins
0 %
Sollzinsbindung
10 Jahre
Bausubstanz & Energieausweis
Letzte Sanierung | 2020 |
---|---|
Bauphase | Haus fertig gestellt |
Objektzustand | Gepflegt |
Qualität der Austattung | Normal |
Heizungsart | Gas-Heizung |
Wesentliche Energieträger | Gas |
Energieausweis | liegt vor |
Energieausweistyp | Bedarfsausweis |
Energieverbrauchskennwert | 234,0 kWh/(m²*a) |
Energieeffizienzklasse | G |
234,0
kWh/(m²*a)
Energieeffizienzklasse G
- A+
- A
- B
- C
- D
- E
- F
- G
- H
- 0
- 25
- 50
- 75
- 100
- 125
- 150
- 175
- 200
- 225
- >250
Beschreibung des Objekts
Lage
Das Objekt befindet sich in ruhiger und idyllischer Wohnlage in Garbsen-Havelse. Für Mobilität ist dank der in der Nähe verkehrenden Bus- und Bahnlinien gesorgt. Zu Fuß erreichen Sie mehrere Ärzte, zwei Bäckereien, zwei Restaurants und zwei Supermärkte. Außerdem gibt es einige Fitnessstudios, zwei Apotheken, eine Grün- und Parkanlage, ein Modegeschäft und eine Postannahmestelle. Bushaltestellen in 200 Metern: Linie 420, Marienwerder Wissenschaftspark – Garbsen Mitte Linie 431, Seelze Bahnhof – Garbsen U-Bahnlinienhaltestelle in 1,2 Km: U4, Garbsen – Roderbruch (über Kröpke)
Adresse
30823 Garbsen
Interessante Orte
Preis- und Lageinformationen
Preistrend für Bestandsimmobilien in Garbsen