Auf dem 6080 m² großen Grundstück in schöner ruhiger Hanglage von Zwingenberg befindet sich dieses Anwesen. Es besteht aus einer denkmalgeschützten Metzendorfvilla mit Baujahr 1912/13 und wurde 1966 einem eingeschossigen Anbau und einem 2 geschossigem Neubau ergänzt. Im vorderen Grundstücksteil ist der Hof befestigt und wurde mit Garagen im Nebengebäude und Parkplätzen ergänzt. Im hinteren Grundstücksteil befindet sich ein großer Garten mit Pavillion und Spielplatz. Das Anwesen wurde zuletzt als Jungendhilfeeinrichtung genutzt und ist in einem renovierungsbedürftigen aber gutem Zustand. Die Nettogeschossfläche der Villa beträgt ca. 534 m² und die des Anbaus und Neubaus ca. 856 m², wobei der Glaspavillion der Villa 1988 angebaut und das Dach des Neubaus 1984 ausgebaut wurde. Ein Bebauungsplan der Stadt Zwingenberg, der 2 großzügige Baufenster auf dem Areal und den Erhalt der Villa vorsieht, soll bis Mitte 2025 beschlossen sein.
Denkmalgeschützte Metzendorf-Villa mit Nebengebäuden in schöner ruhiger Hanglage von Zwingenberg
64673 Zwingenberg
Die vollständige Adresse der Immobilie erhalten Sie vom Anbieter.
Auf Karte anzeigen
Die vollständige Adresse der Immobilie erhalten Sie vom Anbieter.

Finanzierungszertifikat
In nur zwei Minuten zu Ihrem persönlichen Finanzierungszertifkat.
Infos
Haustyp | Mehrfamilienhaus |
---|---|
Wohnfläche ca. | 736 m2 |
Grundstücksfläche | 6.080 m2 |
Bezugsfrei ab | sofort |
Zimmer | 39 |
Garage/Stellplatz | Garage |
Kosten
Kaufpreis |
2.750.000 € |
---|---|
Provision |
5,95 % inkl. gesetzl. MwSt. |
Finanzierungsrechner:
Kaufpreis:
600.000 €
Eigenkapital:
600.000 €
Monatliche Rate
0 €
Effektiver Jahreszins
0 %
Sollzinsbindung
10 Jahre
Bausubstanz & Energieausweis
Baujahr | 1912 |
---|---|
Denkmalschutzobjekt | Ja |
Objektzustand | Renovierungsbedürftig |
Heizungsart | Zentralheizung |
Wesentliche Energieträger | Öl |
Energieausweis | liegt vor |
Energieausweistyp | Bedarfsausweis |
Energieverbrauchskennwert | 199,2 kWh/(m²*a) |
Energieeffizienzklasse | F |
199,2
kWh/(m²*a)
Energieeffizienzklasse F
- A+
- A
- B
- C
- D
- E
- F
- G
- H
- 0
- 25
- 50
- 75
- 100
- 125
- 150
- 175
- 200
- 225
- >250
Beschreibung des Objekts
Ausstattung
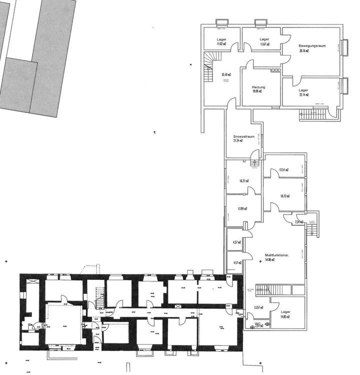
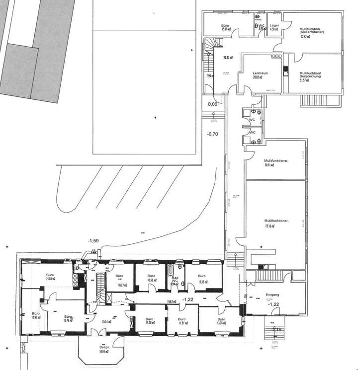
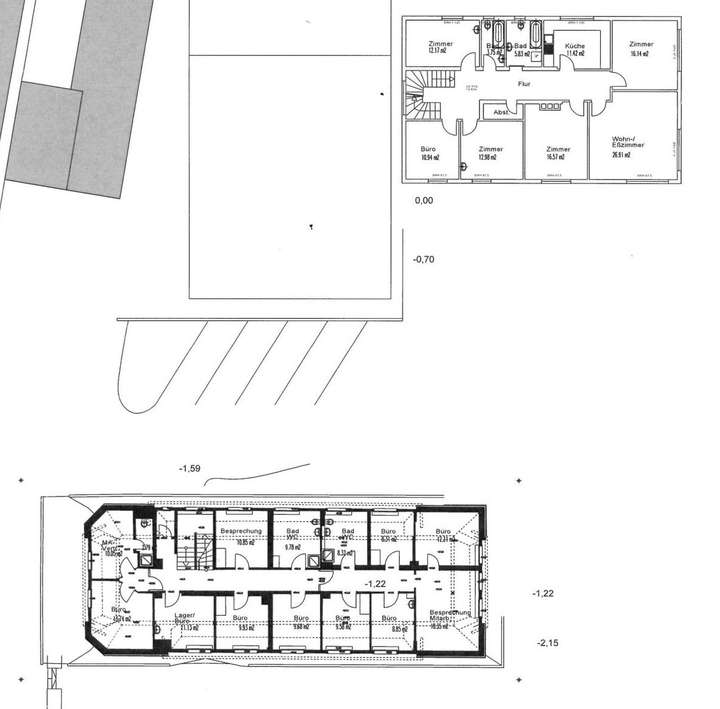
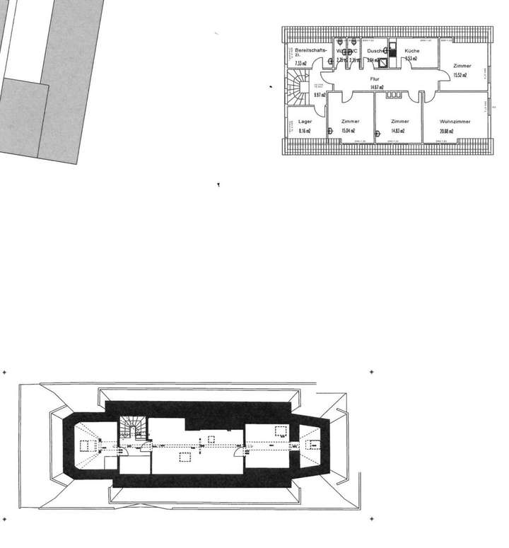
Böden: Fliesen, PVC Fenster: Isolierverglasung, Kunststoff weiß, teils mit Klappläden oder Rollläden Heizung: 2 Öl-Zentralheizungen mit Warmwasserversorgung, Erdtanks im Außenbereich Bäder: Überwiegend Gemeinschaftsbäder und Toilettenanlagen Garagen, Stellplätze auf dem Hof Villa: UG: Funktionsräume, EG: Büroräume, OG: Bereitschaftsräume, Küche, Duschbad, DG: Studioraum Anbau: UG: Funktionsräume, EG: Gruppenräume, Duschen/WC, Neubau: UG: Funktions- + Gruppenräume, EG: Büros, Funktionsräume, WCs, 1. OG +2.OG.: Einzelzimmer mit Waschbecken, Duschen/WCs, Büros, Küche, Vorratsräume
Lage
Zwingenberg mit rund 6900 Einwohnern liegt im südhessischen Kreis Bergstraße und ist seit der Verleihung der Stadtrechte im Jahre 1274 die älteste Stadt im hessischen Teil der Bergstraße und besteht aus den beiden Stadtteilen Zwingenberg mit einer Fläche von 346 Hektar und Rodau mit einer Fläche von 215 Hektar. Zwingenberg liegt zwischen der Gemeinde Alsbach-Hähnlein im Landkreis Darmstadt-Dieburg im Norden und der Stadt Bensheim im Kreis Bergstraße im Süden. Im Westen grenzen die Bensheimer Stadtteile Fehlheim und Langwaden an den Stadtteil Rodau. Im Osten grenzt Zwingenberg an den Melibokus, dessen Gipfel in der Gemarkung Auerbach, einem Stadtteil von Bensheim an der Bergstraße, liegt. Zwingenberg ist Teil des kleinen Weinbaugebietes Hessische Bergstraße. An den Hängen des Melibokus liegen in der Großlage Auerbacher Rott, die Lagen Zwingenberger Steingeröll und Zwingenberger Alte Burg. Nördlich schließt sich die Lage Alsbacher Schöntal an. Spargel- und Erdbeeranbau prägen das flachere Umfeld Richtung Rodau hin. Typisch für Zwingenberg sind daher ein kräftiger trockener Riesling und zarte Spargelgerichte. In der Gemarkung von Zwingenberg stehen große Waldgebiete als Natura2000-Gebiet „Kniebrecht, Melibocus und Orbishöhe bei Seeheim-Jugenheim, Alsbach und Zwingenberg“ unter Schutz. Zwingenberg ist über die Abfahrt (29) an die A 5 Frankfurt-Basel angebunden, an der A 67 ist bei der Abfahrt Gernsheim (8) ebenfalls Zwingenberg ausgeschildert. Der Frankfurter Flughafen ist 45 km, der Binnenhafen Gernsheim am Rhein 12 km entfernt. Parallel zum Odenwald verläuft hier auch die Bergstraße B 3, welche sich in Zwingenberg in die neue und alte Bergstraße unterteilt, die sich dann bei Darmstadt-Eberstadt wieder vereinen. Die Main-Neckar-Bahn Frankfurt–Darmstadt–Heidelberg/Mannheim, führt durch Zwingenberg. Der kleine Bahnhof wird von Regionalbahnen (halb-) stündlich bedient. Quelle: Wikipedia
Sonstige Angaben
ENERGIEAUSWEIS: Für die denkmalgeschützte Villa besteht keine Pflicht. PROVISION: Der Erwerber zahlt eine Provision in Höhe von 5,95 % inkl. gesetzl. MwSt. auf den Kaufpreis an die Firma Kleinsteuber Immobilien GmbH. Angebote nur für den Empfänger selbst bestimmt. Weitergabe an Dritte nicht gestattet, anderenfalls Schadensersatzleistung in Höhe der ortsüblichen Nachweis- bzw. Vermittlungsgebühr. ANGEBOTE FREIBLEIBEND - UNVERBINDLICH - IRRTUM - AUSLASSUNGEN - ZWISCHENVERWERTUNG vorbehalten. Wir weisen darauf hin, dass die von uns weitergegebenen Objektinformationen vom Verkäufer bzw. von Dritten stammen und von uns weder auf Richtigkeit noch auf Vollständigkeit überprüft worden sind.
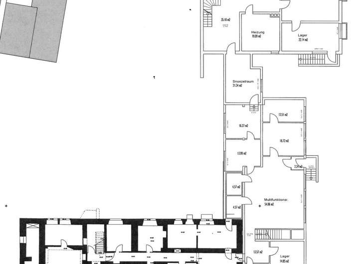
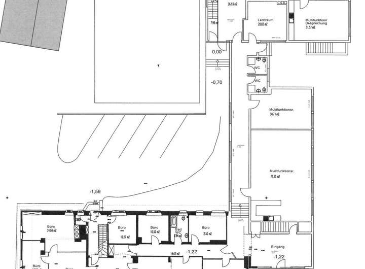
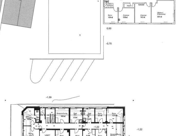
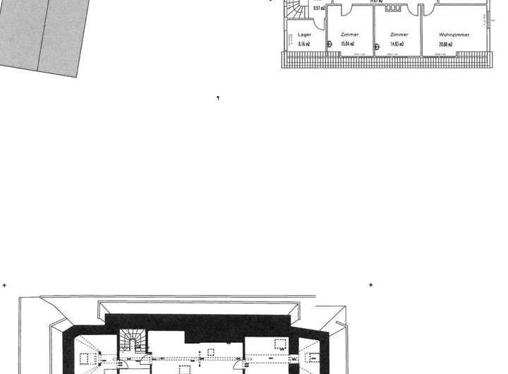
Grundriss
Grundriss KG
>

Grundriss EG
>

Grundriss OG
>

Grundriss DG
>

Adresse
64673 Zwingenberg
Interessante Orte
Preis- und Lageinformationen
Preistrend für Bestandsimmobilien in Zwingenberg