Freistehendes Einfamilienhaus mit viel Platz, Garten und Ausbaupotenzial in Mörfelden-Walldorf (OT Walldorf)
Dieses freistehende Einfamilienhaus aus dem Jahr 1976 liegt in ruhiger Wohnlage im Ortsteil Walldorf der Stadt Mörfelden-Walldorf – direkt am Naherholungsgebiet. Ob Spaziergänge, Joggingrunden oder Radtouren: Naturfreunde finden hier beste Bedingungen direkt vor der Haustür.
Gleichzeitig bietet die familienfreundliche Umgebung eine hervorragende Infrastruktur: Einkaufsmöglichkeiten, Kindergärten, Schulen, Bäcker, Eisdiele sowie diverse Vereine sind bequem zu Fuß erreichbar. Die sehr gute Anbindung an den öffentlichen Nahverkehr sowie an die A5 und A67 macht den Standort auch für Pendler attraktiv.
Raum für Ihre Wohnideen
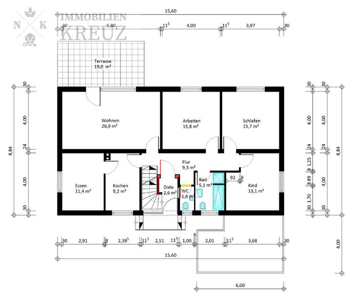
Mit ca. 175 m² Wohnfläche auf zwei Etagen und insgesamt acht Zimmern bietet das Haus viel Platz für Familien, Wohnen und Arbeiten unter einem Dach oder ein Mehrgenerationenmodell.
Das Erdgeschoss umfasst einen offenen Wohn-/Essbereich mit Zugang zur Terrasse und Garten, eine Küche, ein Tageslichtbad mit Dusche und Wanne, ein Gäste-WC sowie drei weiteren Zimmer. Der rund 300 m² große Garten lädt zum Entspannen, Spielen oder Gärtnern ein – ein echtes Plus für Familien oder Gartenliebhaber.
Nutzfläche und Ausbaureserven
Das Kellergeschoss bietet neben Hauswirtschaftsraum, Dusche/WC, Heizungs- und Vorratsraum auch drei wohnlich ausgebaute Räume mit vielfältigen Nutzungsmöglichkeiten. Die angrenzende Garage mit integrierter Montagegrube spricht besonders Bastler oder Hobbyschrauber an.
Ein besonderes Highlight: Der Dachboden lässt sich mit bereits vorliegender Baugenehmigung und bestehenden Ausbauplänen in weiteren Wohnraum umwandeln – ideal für die Schaffung eines Zweifamilienhauses durch Aufstockung.
Das Grundstück umfasst insgesamt 531 m².
Modernisierungen und Technisches
In den letzten Jahren wurden bereits wichtige Modernisierungen durchgeführt, darunter die Erneuerung der Fenster (3-Fach Verglasung) im Jahr 2022 sowie die Installation der elektronischen Rückstauklappe im Jahr 2024. Die Ölheizung stammt aus dem Jahr 2011 und wurde regelmäßig von einer Fachfirma gewartet. Darüber hinaus besteht Renovierungs- und Sanierungsbedarf, wodurch sich die Möglichkeit bietet, das Objekt ganz nach eigenen Wünschen zu gestalten und den Wert nachhaltig zu steigern.
Fazit
Ein großzügiges Haus mit vielen Möglichkeiten – ob als klassisches Einfamilienhaus, Mehrgenerationenlösung oder Investition mit Ausbaupotenzial. Ruhige Lage, gute Infrastruktur und viel Platz für individuelle Gestaltung machen diese Immobilie zu einer seltenen Gelegenheit.
Gerne sende ich Ihnen weitere Informationen zu und präsentiere Ihnen dieses Objekt bei einem Besichtigungstermin.
Ich freue mich auf Ihre Anfrage!
Freistehendes Einfamilienhaus in bester Walldorfer Wohnlage
64546 Mörfelden-Walldorf
Die vollständige Adresse der Immobilie erhalten Sie vom Anbieter.
Auf Karte anzeigen
Die vollständige Adresse der Immobilie erhalten Sie vom Anbieter.
Finanzierungszertifikat
In nur zwei Minuten zu Ihrem persönlichen Finanzierungszertifkat.
Infos
| Haustyp | Einfamilienhaus |
|---|---|
| Etagenzahl | 3 |
| Wohnfläche ca. | 174 m2 |
| Nutzfläche | 60 m2 |
| Grundstücksfläche | 531 m2 |
| Zimmer | 8 |
| Schlafzimmer | 2 |
| Badezimmer | 2 |
| Anzahl Garage/Stellplatz | 2 |
Kosten
| Kaufpreis |
530.000 € |
|---|---|
| Provision |
die Käuferprovision beträgt 3,57 % (inkl. MwSt.) des beurkundeten Kaufpreises |
Finanzierungsrechner:
Kaufpreis:
600.000 €
Eigenkapital:
600.000 €
Monatliche Rate
0 €
Effektiver Jahreszins
0 %
Sollzinsbindung
10 Jahre
Bausubstanz & Energieausweis
| Baujahr | 1976 |
|---|---|
| Letzte Sanierung | 2024 |
| Bauphase | Haus fertig gestellt |
| Qualität der Austattung | Einfach |
| Heizungsart | Öl-Heizung |
| Wesentliche Energieträger | Öl |
| Energieausweis | liegt vor |
| Energieausweistyp | Bedarfsausweis |
| Energieverbrauchskennwert | 167,7 kWh/(m²*a) |
| Energieeffizienzklasse | F |
167,7
kWh/(m²*a)
Energieeffizienzklasse F
- A+
- A
- B
- C
- D
- E
- F
- G
- H
- 0
- 25
- 50
- 75
- 100
- 125
- 150
- 175
- 200
- 225
- >250
Beschreibung des Objekts
Lage
Diese attraktive Immobilie befindet sich in der charmanten Stadt Mörfelden-Walldorf, die für ihre hervorragende Anbindung und Lebensqualität bekannt ist.
Die Lage bietet eine ideale Kombination aus Ruhe und Erreichbarkeit. Die Umgebung ist geprägt von gepflegten Ein- und Zweifamilienhäusern sowie einer grünen, familienfreundlichen Nachbarschaft.
Nur wenige Schritte entfernt beginnt ein weitläufiges Naherholungsgebiet, das ideale Möglichkeiten für Spaziergänge, Joggingrunden, Fahrradtouren oder Gassigängen im Grünen bietet – perfekt für Naturliebhaber und Familien gleichermaßen. Trotz der naturnahen Lage profitieren Sie von einer sehr guten Infrastruktur: Kindergärten, Schulen, Spielplätze, Sportvereine, Einkaufsmöglichkeiten, Bäcker, eine Eisdiele und ein Supermarkt sind bequem fußläufig erreichbar.
Die Anbindung an den öffentlichen Nahverkehr ist hervorragend: Der Bahnhof Walldorf mit S-Bahn-Anschluss (S7 Richtung Frankfurt) ist nur wenige Minuten entfernt und bietet eine schnelle Verbindung in die Rhein-Main-Metropole (ca. 20 Minuten). Auch die Autobahnen A5 und A3 sowie der Flughafen Frankfurt sind in kurzer Zeit erreichbar, was den Standort besonders attraktiv für Berufspendler macht. Die nächste Bushaltestelle ist fußläufig in 5 Minuten erreichbar.
Das Objekt selbst befindet sich in einer ruhigen Seitenstraße ohne Durchgangsverkehr (Spielstraße), ideal für Familien mit Kindern oder alle, die ein entspanntes, sicheres Wohnumfeld zu schätzen wissen.
Hier wohnen Sie in gewachsener Nachbarschaft mit hohem Freizeitwert und gleichzeitig bester Anbindung an das Rhein-Main-Gebiet.
Sonstige Angaben
Wichtige Informationen zum Geldwäschegesetz (GwG)
Als Immobilienmaklerunternehmen sind wir, Immobilien Kreuz, gemäß § 2 Abs. 1 Nr. 14 und § 11 Abs. 1, 2 des Geldwäschegesetzes (GwG) dazu verpflichtet, die Identität unserer Vertragspartner zu überprüfen. Dies gilt sowohl bei der Begründung einer Geschäftsbeziehung als auch bei ernsthaftem Interesse an einem Immobilienkaufvertrag.
Natürliche Personen: Bitte stellen Sie uns die relevanten Daten Ihres Personalausweises zur Verfügung, beispielsweise in Form einer Kopie.
Juristische Personen: Wir benötigen eine Kopie des Handelsregisterauszugs, aus dem der wirtschaftlich Berechtigte hervorgeht.
Die erhobenen Unterlagen werden gemäß den gesetzlichen Vorgaben für fünf Jahre aufbewahrt. Bitte beachten Sie, dass gemäß § 11 Abs. 6 GwG auch eine Mitwirkungspflicht Ihrerseits besteht.
Wir danken Ihnen für Ihr Verständnis und Ihre Unterstützung bei der Erfüllung dieser gesetzlichen Anforderungen.
Wichtige Hinweise zur Haftung
Die von uns bereitgestellten Objektinformationen, Unterlagen und Pläne stammen direkt vom Verkäufer oder Vermieter. Daher können wir keine Haftung für die Richtigkeit oder Vollständigkeit dieser Angaben übernehmen.
Es liegt in der Verantwortung unserer Kunden, die bereitgestellten Informationen eigenständig auf ihre Richtigkeit und Vollständigkeit zu überprüfen.
Alle unsere Immobilienangebote sind freibleibend und erfolgen unter Vorbehalt von Irrtümern, Zwischenverkauf, Zwischenvermietung oder sonstiger Zwischenverwertung.
Wir danken Ihnen für Ihr Verständnis und stehen Ihnen bei Rückfragen jederzeit gerne zur Verfügung.
Alle Angaben sind ohne Gewähr und basieren ausschließlich auf Informationen, die uns von unserem Auftraggeber zur Verfügung gestellt wurden. Wir übernehmen keine Gewähr für die Vollständigkeit, Richtigkeit und Aktualität der Angaben.
Grundriss
Grundriss UG
>
>
Grundriss EG
>
>
Adresse
64546 Mörfelden-Walldorf
Interessante Orte
Preis- und Lageinformationen
Preistrend für Bestandsimmobilien in Mörfelden-Walldorf