Willkommen in Vogelsdorf – in einer Villa, die mehr als nur Wohnraum bietet. Dieses freistehende, denkmalgeschützte Anwesen wurde mit Sorgfalt saniert und verbindet historische Substanz mit zeitgemäßem Komfort. Ob als Familiensitz, Rückzugsort oder Ort kreativer Entfaltung – hier eröffnen sich viele Möglichkeiten.
Der gepflegte Garten samt Vorgarten rahmt das Haus stimmig ein. Raum, Licht und Ruhe prägen die Atmosphäre und machen das Gebäude zu einem Ort mit spürbarem Charakter.
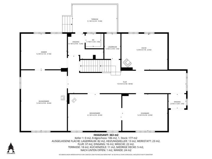
Erdgeschoss
Das Herzstück ist die klassische Küche mit gemütlichem Essbereich und stilvollem Ofen – ideal für gemeinsame Stunden. Ergänzt wird das Erdgeschoss durch ein großzügiges Musikzimmer, zwei helle Räume mit Flügeltür, ein Gäste-WC, einen weitläufigen Flur und einen praktischen Hauswirtschaftsraum. Ein weiterer Raum steht noch zum Ausbau bereit – perfekt für individuelle Ideen.
Obergeschoss
Ein großzügiges Schlafzimmer mit eigenem Bad (Wanne und Dusche), drei weitere Zimmer – eines davon mit Kamin – sowie ein zusätzliches Badezimmer mit Wanne bieten flexible Nutzungsmöglichkeiten. Der Flur führt zur Dachbodenluke; der Dachboden ist aktuell unausgebaut. Ein weiterer Raum im Obergeschoss befindet sich im ursprünglichen Zustand und kann ebenfalls individuell gestaltet werden.
Keller
Der große, vollständig unterkellerte Bereich bietet Platz für Vorräte, Hobbys oder Werkstatt. Ein zusätzlicher Zugang vom Garten sorgt für kurze Wege im Alltag oder bietet Optionen für eine gewerbliche Nutzung.
Diese Villa steht nicht für Standard, sondern für Individualität, Geschichte und Perspektive. Wer einen Ort mit Seele sucht, der Raum für neue Kapitel lässt, wird sich hier wiederfinden. Die Lage in Vogelsdorf verbindet naturnahes Wohnen mit guter Erreichbarkeit – eine seltene Gelegenheit.
Hinweis: Unsere Fotos wurden mit einer professionellen Weitwinkelkamera aufgenommen, wodurch die Räume leicht größer wirken können.
Wir freuen uns auf Ihre Anfrage und auf ein persönliches Kennenlernen vor Ort.
Finanzierungszertifikat
In nur zwei Minuten zu Ihrem persönlichen Finanzierungszertifkat.
Infos
| Haustyp | Villa |
|---|---|
| Etagenzahl | 2 |
| Wohnfläche ca. | 300 m2 |
| Nutzfläche | 350 m2 |
| Grundstücksfläche | 2.113 m2 |
| Bezugsfrei ab | nach Absprache |
| Zimmer | 10 |
| Badezimmer | 2 |
| Anzahl Garage/Stellplatz | 2 |
Kosten
| Kaufpreis |
499.000 € |
|---|---|
| Provision |
Die Käufer-Provision beträgt 3,57 % vom Kaufpreis inkl. MwSt. |
Finanzierungsrechner:
Kaufpreis:
600.000 €
Eigenkapital:
600.000 €
Monatliche Rate
0 €
Effektiver Jahreszins
0 %
Sollzinsbindung
10 Jahre
Bausubstanz & Energieausweis
| Baujahr | 1890 |
|---|---|
| Letzte Sanierung | 2023 |
| Denkmalschutzobjekt | Ja |
| Objektzustand | Saniert |
| Qualität der Austattung | Gehoben |
| Energieausweis | laut Gesetz nicht erforderlich |
Beschreibung des Objekts
Ausstattung
- ca. 2.100 m² Grundstücksgröße
- ca. 220 m² Wohnfläche
Bausubstanz & Technik
- Wände neu verputzt (2006)
- Elektrik erneuert (2006)
- Dach nach Denkmalschutzvorgaben erneuert inkl. Dachstuhl (2016)
- Bau der Kanalisation und Regenwasserableitung (2007)
- Vollunterkellerung, neue Kellertüren (2007)
- Heizung (2023): neuer Hybridkessel, geeignet für Solar, Wärmepumpe, 20 % Wasserstoff, Biomethan & Bio-Flüssiggas
Garten
- Terrasse erneuert (2011), Geländer modernisiert (2019)
- Einfahrt & Hof neu gepflastert (2020), Regenwasserablauf Hof restauriert, Außenleuchte installiert
- Zaun und Pfeiler zur Straßenseite sowie Gartenmauer erneuert (2012)
Fenster & Türen
- Fenster: doppelt verglaste Holzfenster (massiv), Außenseite 2009 erneuert, Innenseite original
- Kellerfenster erneuert (2024)
- Elektrisches Tor mit Fernsteuerung (2021)
- Freisprechanlage vorhanden
Moderne Infrastruktur
- Glasfaseranschluss (2024)
Fassade
- Fassade gereinigt und restauriert (2009–2012)
Besonderheiten & Aufteilung
- 10 Zimmer, aufgeteilt auf Erdgeschoss und Obergeschoss
Unter den Dokumenten, in dieser Anzeige, finden Sie weitere Unterlagen.
- 4 Kamine, die jedoch nicht Bestandteil des Angebots sind. Die Eigentümer sind bereit, über einen separaten Erwerb zu verhandeln.
Denkmalschutz: Herausforderung oder Chance?
Wenn es um den Kauf einer denkmalgeschützten Immobilie geht, sind viele Menschen zunächst verunsichert. Die Gedanken kreisen um Auflagen, hohe Kosten und Bürokratie. Doch wie sieht die Realität wirklich aus?
Tatsächlich bietet der Denkmalschutz zahlreiche Vorteile – vor allem für Käufer, die langfristig denken und den Charme von Geschichte schätzen. Eine denkmalgeschützte Immobilie erzählt Geschichten, bewahrt Kultur und hebt sich deutlich von modernen Bauten ab. Zudem gibt es zahlreiche Fördermöglichkeiten und steuerliche Vorteile, die diese Objekte finanziell attraktiver machen. Insbesondere bei Sanierungen können Sie Kosten wie Handwerkerleistungen steuerlich geltend machen, was den vermeintlichen Mehraufwand deutlich reduziert.
Natürlich gibt es Regeln, die eingehalten werden müssen – aber diese sind meist gut kalkulierbar und vor allem klar geregelt. Und der große Vorteil: Sie investieren in Werte, die Bestand haben, denn Immobilien mit historischem Charakter sind nicht nur bei Eigentümern, sondern auch bei Mietern und Käufern sehr gefragt.
Ein Haus mit Geschichte ist mehr als ein Zuhause – es ist ein Statement für Qualität, Individualität und Nachhaltigkeit. Mit der richtigen Beratung wird der Denkmalschutz von einer Herausforderung zur echten Chance.
Haben Sie Fragen zu denkmalgeschützten Immobilien? Lassen Sie uns sprechen – gemeinsam finden wir heraus, was möglich ist.
Lage
Der Ortsteil Vogelsdorf gehört zur Gemeinde Huy im Landkreis Harz in Sachsen-Anhalt und liegt eingebettet in die reizvolle Landschaft des Nordharzvorlandes. Umgeben von weiten Feldern, Wiesen und kleinen Wäldern bietet Vogelsdorf eine naturnahe und ruhige Umgebung, die vor allem durch ihre Ursprünglichkeit und landschaftliche Weite geprägt ist.
Besonders markant ist die Nähe zum Höhenzug Huy, einem bewaldeten Bergrücken, der mit seinen zahlreichen Wanderwegen, naturbelassenen Pfaden und Aussichtspunkten ein beliebtes Ziel für Naturfreunde, Spaziergänger und Radfahrer ist. Auch das nahegelegene Landschaftsschutzgebiet „Großes Bruch“, ein ausgedehntes Feuchtgebiet mit hoher ökologischer Bedeutung, trägt zum besonderen landschaftlichen Reiz der Region bei.
Der Ort selbst ist ländlich geprägt, mit gewachsener dörflicher Struktur und einer ruhigen, entspannten Atmosphäre. Historische Gebäude, offene Flächen und der Blick ins Grüne bestimmen das Ortsbild. Die naturnahe Lage macht Vogelsdorf besonders attraktiv für Menschen, die Erholung und Ruhe im Einklang mit der Natur suchen.
Sonstige Angaben
Alle Daten in diesem Exposé beruhen auf Angaben des Eigentümers der Immobilie. Die Angaben zum Objekt sind von uns, Sterling-Immobilien.de, mit großer Sorgfalt zusammengestellt worden. Wir übernehmen keine Haftung für die Angaben des Angebotes, welche uns der Verkäufer/Anbieter übermittelt hat. Irrtümer bleiben vorbehalten.
Der Energieausweis wird aufgrund des Denkmalschutzes nicht benötigt.
Die Provision ist verdient und fällig mit notarieller Beurkundung. Der Immobilienmakler hat einen provisionspflichtigen Maklervertrag in gleicher Höhe mit dem Verkäufer abgeschlossen. Grunderwerbsteuer (5 %), Notar- und Grundbuchkosten sind vom Käufer zu tragen.
Bitte beachten Sie, dass die gelieferten Grundrisse rein für die visuelle Vorstellung sind und nicht zu 100 % genau.
Weitere Dokumente
FlurkarteGrundrisse.pdf
Grundriss
Grundriss Erdgeschoss
>
>
Grundriss Obergeschoss
>
>
Grundriss Keller
>
>
Adresse
Hauptstraße 40, 38836 Huy
Interessante Orte
Preis- und Lageinformationen
Preistrend für Bestandsimmobilien in Huy