Diese charmante Doppelhaushälfte bietet auf ca. 124 m² Wohnfläche eine durchdachte Raumaufteilung und viel Platz für individuelle Gestaltung.
Im Erdgeschoss heißt der einladende Eingangsbereich die Bewohner willkommen. Hier befinden sich ein praktisches Gäste-WC sowie eine Garderobe. Die separate Küche ist gut geschnitten und geht direkt in den Hauswirtschaftsraum über. Der großzügige Wohnbereich besticht durch sein helles Ambiente und ermöglicht durch den Zugang zur Terrasse ein angenehmes Wohngefühl, das sowohl im Sommer als auch im Winter genutzt werden kann.
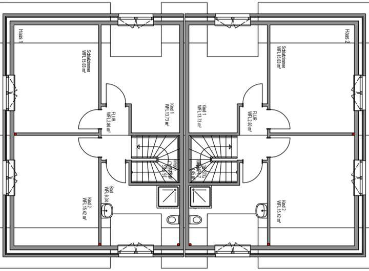
Im Obergeschoss finden sich das gemütliche Schlafzimmer sowie zwei weitere Räume, die vielseitig genutzt werden können – ideal als Kinderzimmer, Büro oder auch als begehbare Garderobe. Das vollausgestattete Badezimmer rundet das Obergeschoss ab.
Diese Doppelhaushälfte eignet sich perfekt für Familien oder Paare, die eine gut geschnittene, funktionale und gleichzeitig komfortable Wohnlösung suchen.
*Reserviert* Gepflegte Doppelhaushälfte am Splitting - Zentral und doch ruhig!
26871 Papenburg
Die vollständige Adresse der Immobilie erhalten Sie vom Anbieter.
Auf Karte anzeigen
Die vollständige Adresse der Immobilie erhalten Sie vom Anbieter.
Finanzierungszertifikat
In nur zwei Minuten zu Ihrem persönlichen Finanzierungszertifkat.
Infos
| Haustyp | Doppelhaushaelfte |
|---|---|
| Wohnfläche ca. | 124 m2 |
| Nutzfläche | 3,14 m2 |
| Grundstücksfläche | 127 m2 |
| Bezugsfrei ab | sofort |
| Zimmer | 4 |
| Schlafzimmer | 3 |
| Badezimmer | 1 |
| Garage/Stellplatz | Carport |
| Anzahl Garage/Stellplatz | 1 |
Kosten
| Kaufpreis |
289.950 € |
|---|---|
| Provision |
3,57% inkl. 19% MwSt. |
Finanzierungsrechner:
Kaufpreis:
600.000 €
Eigenkapital:
600.000 €
Monatliche Rate
0 €
Effektiver Jahreszins
0 %
Sollzinsbindung
10 Jahre
Bausubstanz & Energieausweis
| Baujahr | 2020 |
|---|---|
| Objektzustand | Gepflegt |
| Heizungsart | Fußbodenheizung |
| Wesentliche Energieträger | Solarheizung, Gas |
Beschreibung des Objekts
Ausstattung
+ Brennwerttherme
+ Carport
+ Fußbodenheizung
+ Bodentiefe Dusche
+ Dreifachverglaste Fenster
+ Terrasse mit Garten
+ vermietet bis zum 31.10.2025
Lage
Die Immobilie befindet sich in einer familienfreundlichen und ruhigen Siedlung.
In wenigen Minuten können Sie mit dem Auto sowie mit dem Fahrrad einige Einkaufsmöglichkeiten erreichen.
Neben den Einkaufsmöglichkeiten gelangen Sie ebenfalls mit dem Auto oder mit dem Fahrrad zu den Dienstleistungen für den alltäglichen Gebrauch.
Für Familien ist der Standort sehr attraktiv, da Sie mit dem Fahrrad oder auch zu Fuß, zum Beispiel die Kindertagesstätte erreichen. Grund- und weiterführende Schulen liegen ebenfalls in der näheren Umgebung.
Um zu den Geschäften oder ins Zentrum von Papenburg zu kommen benötigen Sie kein Auto, da Sie diese auch mit dem Bus erreichen können. In ca. 200m Entfernung und somit fast vor der Haustür befindet sich eine Bushaltstelle.
Von der Immobilie gelangen Sie außerdem mit dem Auto auf die B70.
Die idyllischen Landschaften in der Umgebung eigenen sich sehr gut für entspannte und gemütliche Spaziergänge mit der Familie oder mit Freunden.
Das Zentrum von Papenburg erreichen Sie auch innerhalb von wenigen Minuten. Dort wird Ihnen einiges an Freizeitmöglichkeiten geboten. In Papenburg befindet sich zum Beispiel die bekannte Meyer Werft, welche zu einer der größten und modernsten Werften zählt. Die Stadt Leer ist auch ein attraktives Ausflugsziel und kann in weniger als 20min von der Immobilie erreicht werden. Dort lohnt sich ein Besuch am Stadthafen sowie ein Ausflug in die Altstadt um sich die sehenswerten Gebäuden und Geschäften anzuschauen.
Sonstige Angaben
Unsere Immobilienangebote verstehen sich freibleibend und unverbindlich. Zwischenvermittlung ausdrücklich vorbehalten. Die Angaben zum Objekt basieren auf erteilten Informationen Dritter. Für die Richtigkeit und Vollständigkeit kann deshalb keine Haftung übernommen werden.
Im Fall des Kaufs der Immobilie, hat der Käufer die ortsübliche Provision an CapitalReal GmbH & Co. KG zu zahlen. Die Provision ist mit Wirksamwerden des Hauptvertrages fällig
Wir können Anfragen nur mit vollständig angegebenem Namen, Adresse und Telefonnummer bearbeiten. Wir bitten um Ihr Verständnis.
Die erforderlichen Energieangaben wurden entweder bereits im Exposé eingetragen oder der Energieausweis befindet sich derzeit in Bearbeitung.
Alle in dieser Anzeige gemachten Angaben, insbesondere zu den Energieverbrauchswerten, beruhen auf den Informationen aus dem uns vorliegenden Energieausweis. Trotz sorgfältiger Prüfung können unvollständige oder fehlende Angaben nicht vollständig ausgeschlossen werden. Für die Richtigkeit und Vollständigkeit der Angaben übernehmen wir daher keine Gewähr. Der vollständige Energieausweis kann jederzeit angefordert und eingesehen werden. Sollten Angaben im Exposé fehlen oder unvollständig sein, bitten wir höflich um Mitteilung, damit wir diese ergänzen können. Maßgeblich sind in jedem Fall die Daten aus dem vorliegenden Energieausweis. Sollte dieser in Bearbeitung sein, werden die Angaben umgehend nach Erhalt des Ausweises aufgenommen.
Für dieses Objekt befindet sich der Energieausweis aktuell in Bearbeitung!
Adresse
26871 Papenburg
Interessante Orte
Preis- und Lageinformationen
Preistrend für Bestandsimmobilien in Papenburg