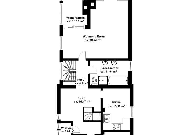
Diese liebevoll gepflegte Immobilie wurde im Jahr 1937 errichtet und 1980 durch einen Anbau erweitert. Im Zuge dessen erfolgte eine umfassende Sanierung des Altbaus. Beim Betreten des Hauses empfängt Sie ein kleiner Windfang, der in die großzügige Diele übergeht. Von hier aus sind alle Räume des Erdgeschosses bequem erreichbar. Rechter Hand befindet sich das geräumige Schlafzimmer mit vielfältigen Stellmöglichkeiten. Die große Küche begeistert Hobbyköche mit viel Platz für eine gemütliche Essecke. Der Wohn- und Essbereich bildet das Herzstück des Hauses – ideal für gesellige Abende oder entspannte Stunden mit der Familie. Der angrenzende Wintergarten ist besonders an kühleren Tagen eine schöne Alternative zum Garten. Abgerundet wird das Raumangebot im Erdgeschoss durch das große Vollbad, ausgestattet mit separater Dusche und Doppelwaschbecken. Das Dachgeschoss bietet zwei weitere gut geschnittene Schlafzimmer, ideal als Kinder-, Gäste- oder Arbeitszimmer, sowie ein separates WC. Der Anbau ist voll unterkellert und bietet reichlich Stauraum. Die Haustechnik findet hier ebenfalls Platz. Das 987 m² große Grundstück liegt ruhig und ist pflegeleicht angelegt – ein Paradies für Gartenfreunde und Erholungssuchende.
Provisionsfrei - EFH auf großem Grundstück
21031 Hamburg
Die vollständige Adresse der Immobilie erhalten Sie vom Anbieter.
Auf Karte anzeigen
Die vollständige Adresse der Immobilie erhalten Sie vom Anbieter.
Finanzierungszertifikat
In nur zwei Minuten zu Ihrem persönlichen Finanzierungszertifkat.
Infos
| Haustyp | Einfamilienhaus |
|---|---|
| Wohnfläche ca. | 171 m2 |
| Nutzfläche | 57 m2 |
| Grundstücksfläche | 987 m2 |
| Bezugsfrei ab | nach Vereinbarung |
| Zimmer | 4 |
| Schlafzimmer | 3 |
| Badezimmer | 1 |
| Garage/Stellplatz | Carport |
| Anzahl Garage/Stellplatz | 1 |
Kosten
| Kaufpreis |
595.000 € |
|---|---|
| Provision | Nein |
Finanzierungsrechner:
Kaufpreis:
600.000 €
Eigenkapital:
600.000 €
Monatliche Rate
0 €
Effektiver Jahreszins
0 %
Sollzinsbindung
10 Jahre
Bausubstanz & Energieausweis
| Baujahr | 1937 |
|---|---|
| Objektzustand | Gepflegt |
| Heizungsart | Zentralheizung |
| Wesentliche Energieträger | Gas |
| Energieausweis | liegt vor |
| Energieausweistyp | Bedarfsausweis |
| Energieverbrauchskennwert | 296,1 kWh/(m²*a) |
| Energieeffizienzklasse | H |
296,1
kWh/(m²*a)
Energieeffizienzklasse H
- A+
- A
- B
- C
- D
- E
- F
- G
- H
- 0
- 25
- 50
- 75
- 100
- 125
- 150
- 175
- 200
- 225
- >250
Beschreibung des Objekts
Ausstattung
Die Immobilie befindet sich in einem gepflegten Zustand, entspricht jedoch nicht mehr ganz den heutigen Ansprüchen modernen Wohnens. Das Erdgeschoss ist einheitlich mit Fliesen ausgestattet. Die Einbauküche mit weißen Hochglanz-Fronten und einer grauen Arbeitsplatte ist mit allen elektrischen Geräten versehen. In der Küche haben Sie zudem Platz für eine gemütliche Essecke. Das Dachgeschoss ist mit einem hellen Teppichboden ausgelegt. Das Vollbad mit Dusche ist hell gefliest. Ein Fenster sorgt für eine gute Be- und Entlüftung. Die Fußbodenheizung im Erdgeschoss sorgt für zusätzlichen Wohnkomfort. Die Kunststofffenster wurden im Jahr 2023 ausgetauscht und sind dreifach isolierverglast. Die Beheizung sowie die Warmwasserversorgung erfolgen über eine Gaszentralheizung aus dem Jahr 2022. Im Jahr 2002 wurde die Elektrik zuletzt erneuert. Lassen Sie sich bei einer Besichtigung vor Ort von diesem tollen Familiendomizil mit viel Potenzial begeistern.
Durch unseren 360°-Rundgang können Sie diese Immobilie bereits vorab besichtigen. Öffnen Sie hierzu bitte folgenden Link: https://tour.ogulo.com/fVDl
Lage
Lohbrügge grenzt direkt an Bergedorf und vereint viele Vorzüge. Ein breites Angebot an Einkaufsmöglichkeiten, der Wochenmarkt und verschiedene Kindergärten und Schulen machen diesen Stadtteil besonders attraktiv. Ruhige Einfamilienhausgebiete, gewachsene Reihenhaussiedlungen und Wohnanlagen unterschiedlicher Baujahre wechseln sich mit Grünflächen und Parks ab. Das grüne Zentrum lädt zum Spielen und Verweilen ein. Fachgeschäfte finden sich in der Fußgängerzone "Alte Holstenstraße", welche in die Fußgängerzonen Bergedorfs mit Anbindung an das CCB übergeht. Der Bergedorfer S-Bahnhof und die verschiedenen Buslinien in Lohbrügge binden den Stadtteil gut an den öffentlichen Personennahverkehr an. Sowohl mit dem PKW als auch mit der S-Bahn gelangt man in nur 20 Minuten in die Hamburger Innenstadt. Verschiedene Freizeitangebote, wie das Bille-Bad in Bergedorf, unterschiedliche Sportvereine oder die Elbe und der Sachsenwald im näheren Umfeld, bieten Erholungsmöglichkeiten für jeden Geschmack. Dieses Einfamilienhaus steht in zentraler Lage nahe einem kleinen Einkaufcenter sowie dem Gymnasium Lohbrügge und einem Kindergarten.
Grundriss
Kellergeschoss
>
>
Erdgeschoss
>
>
Dachgeschoss
>
>
Adresse
21031 Hamburg
Interessante Orte
Preis- und Lageinformationen
Preistrend für Bestandsimmobilien in Lohbrügge