Willkommen in Ihrem neuen Zuhause! Dieses beeindruckende Einfamilienhaus bietet Ihnen auf großzügigen ca. 125 m² Wohnfläche alles, was das Herz begehrt. Mit insgesamt 4 Zimmern, darunter 3 einladende Schlafzimmer und 3 moderne Bäder, ist dieses Haus ideal für Familien oder Paare, die Platz und Komfort zu schätzen wissen.
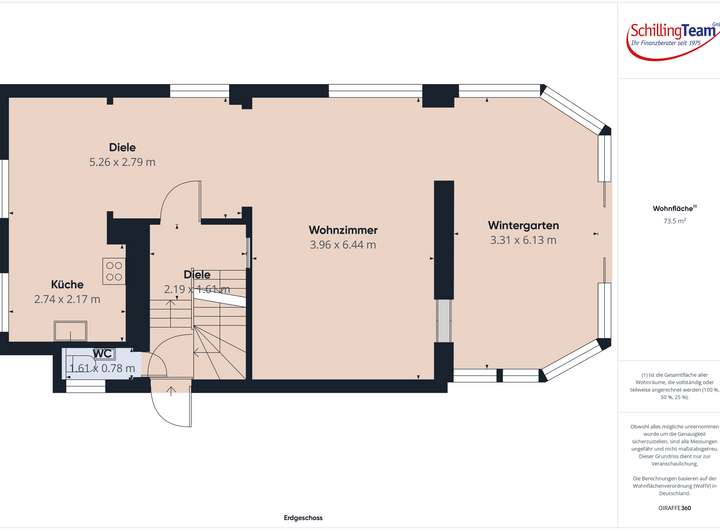
Das Erdgeschoss lädt zum Verweilen ein. Neben der Küche befindet sich dort der Wohn- und Essbereich. Über den Wintergarten hat man einen direkten Zugang zum Garten. Im 1. OG befinden sich zwei Schlafzimmer. Hinter dem größeren Zimmer befindet sich zusätzlich ein begehbarer Kleiderschrank.
Über eine Wendeltreppe gelangt man in das ausgebaute Dachgeschoss. Eine ideale Lösung für ein Büro oder ein weiteres Schlafzimmer. Ältere Kinder hätten dort ihren eigenen Bereich, da sich auch im Dachgeschoss ein Badezimmer mit Badewanne befindet.
Im Keller gibt es eine weitere Option, die Räume als Schlafzimmer zu nutzen, diese können zusätzlich durch eine Fußbodenheizung temperiert werden.
Das Grundstück umfasst ca. 440 m² und bietet Ihnen eine traumhafte Gartenfläche von ca. 200 m², die zum Entspannen und Verweilen einlädt. Genießen Sie sonnige Tage im eigenen Garten oder verbringen Sie gemütliche Abende im Wintergarten.
Die letzte umfassende Modernisierung fand 2021 statt, wodurch das Haus in einem neuwertigen Zustand präsentiert wird. Die luxuriöse Ausstattung wird Sie begeistern: Hochwertige Bodenbeläge aus Parkett, Fliesen, Granit und Laminat verleihen jedem Raum einen besonderen Charme.
Zusätzliche Highlights sind der einladende Kamin, der eine behagliche Atmosphäre schafft. Ein Keller und ein Abstellraum bieten Ihnen ausreichend Stauraum, während ein Gäste-WC den Komfort für Familie und Freunde erhöht.
Eingezäunt ist das Grundstück mit einem eleganten Edelstahlzaun, in dem ein elektrisches Rolltor verbaut ist.
Auf der Gartenfläche ist ein hochwertiger Kunstrasen verlegt, der über die Jahre sehr gut gepflegt wurde.
Die moderne Einbauküche ist der perfekte Ort, um kulinarische Köstlichkeiten zu zaubern, während die Gasheizung eine angenehme Wärme im gesamten Haus garantiert.
Lassen Sie sich diese Chance nicht entgehen und vereinbaren Sie noch heute einen Besichtigungstermin! Dieses Einfamilienhaus in Offenbach am Main wartet darauf, Ihr neues Zuhause zu werden.
Traumhaftes Einfamilienhaus auf der Rosenhöhe in Offenbach
63069 Offenbach am Main
Die vollständige Adresse der Immobilie erhalten Sie vom Anbieter.
Auf Karte anzeigen
Die vollständige Adresse der Immobilie erhalten Sie vom Anbieter.
Finanzierungszertifikat
In nur zwei Minuten zu Ihrem persönlichen Finanzierungszertifkat.
Infos
| Haustyp | Einfamilienhaus |
|---|---|
| Etagenzahl | 3 |
| Wohnfläche ca. | 124 m2 |
| Nutzfläche | 84,38 m2 |
| Grundstücksfläche | 440 m2 |
| Zimmer | 4 |
| Schlafzimmer | 3 |
| Badezimmer | 3 |
Kosten
| Kaufpreis |
649.000 € |
|---|---|
| Provision |
Käuferprovision beträgt 3,57 % (inkl. MwSt.) des beurkundeten Kaufpreises Käuferprovision beträgt 3,57 % (inkl. MwSt.) des beurkundeten Kaufpreises |
Finanzierungsrechner:
Kaufpreis:
600.000 €
Eigenkapital:
600.000 €
Monatliche Rate
0 €
Effektiver Jahreszins
0 %
Sollzinsbindung
10 Jahre
Bausubstanz & Energieausweis
| Baujahr | 1956 |
|---|---|
| Letzte Sanierung | 2021 |
| Objektzustand | Neuwertig |
| Qualität der Austattung | Luxus |
| Heizungsart | Gas-Heizung |
| Wesentliche Energieträger | Gas |
| Energieausweis | liegt vor |
| Energieausweistyp | Bedarfsausweis |
| Energieverbrauchskennwert | 94,5 kWh/(m²*a) |
| Energieeffizienzklasse | C |
94,5
kWh/(m²*a)
Energieeffizienzklasse C
- A+
- A
- B
- C
- D
- E
- F
- G
- H
- 0
- 25
- 50
- 75
- 100
- 125
- 150
- 175
- 200
- 225
- >250
Beschreibung des Objekts
Lage
Diese attraktive Immobilie befindet sich in einer der begehrtesten Wohngegenden von Offenbach am Main. Die Lage bietet eine perfekte Kombination aus urbanem Lebensstil und ruhiger Wohnatmosphäre. In unmittelbarer Nähe finden Sie zahlreiche Einkaufsmöglichkeiten, Restaurants und Cafés, die zu einem entspannten Freizeitvergnügen einladen.
Die Anbindung an den öffentlichen Nahverkehr ist ausgezeichnet: In wenigen Gehminuten erreichen Sie die nächsten Busstationen, die Ihnen eine schnelle Verbindung nach Frankfurt und in andere umliegende Städte ermöglichen. Zudem ist die Autobahnauffahrt zur A661 nur wenige Minuten entfernt, was Ihnen eine hervorragende Mobilität mit dem Auto bietet.
Für Familien ist die Umgebung besonders attraktiv, da zahlreiche Schulen, Kindergärten und Spielplätze in der Nähe sind. Parks und Grünanlagen laden zu erholsamen Spaziergängen und Aktivitäten im Freien ein.
Ob für den Eigenbedarf oder als Kapitalanlage – diese Lage kombiniert alle Vorzüge städtischen Lebens mit den Annehmlichkeiten einer lebenswerten Nachbarschaft. Überzeugen Sie sich selbst von diesem tollen Standort!
Adresse
63069 Offenbach am Main
Interessante Orte
Preis- und Lageinformationen
Preistrend für Bestandsimmobilien in Rosenhöhe