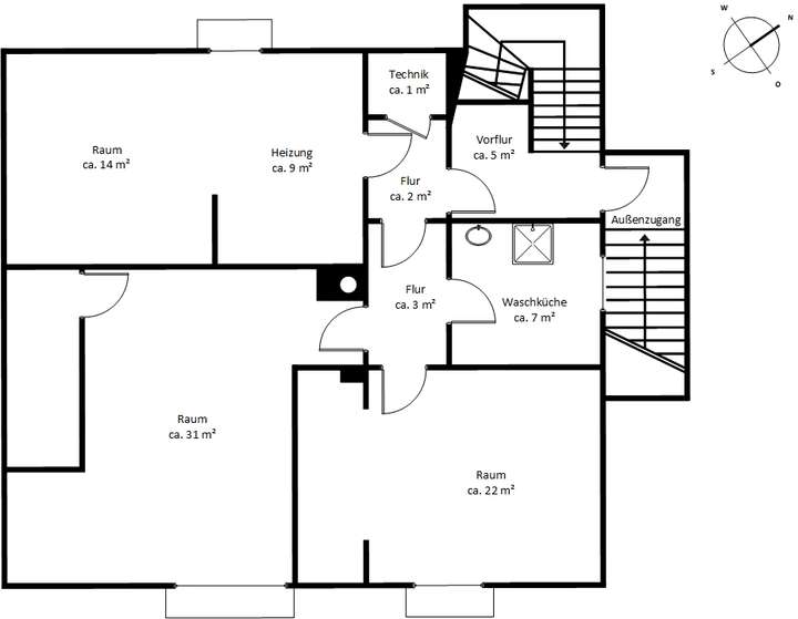
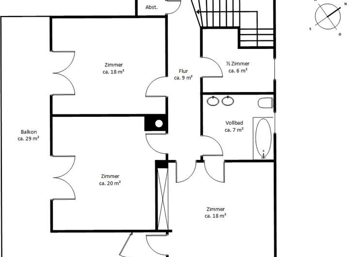
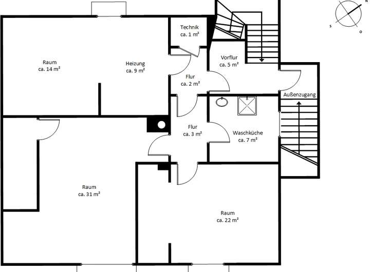
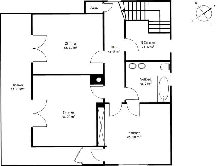
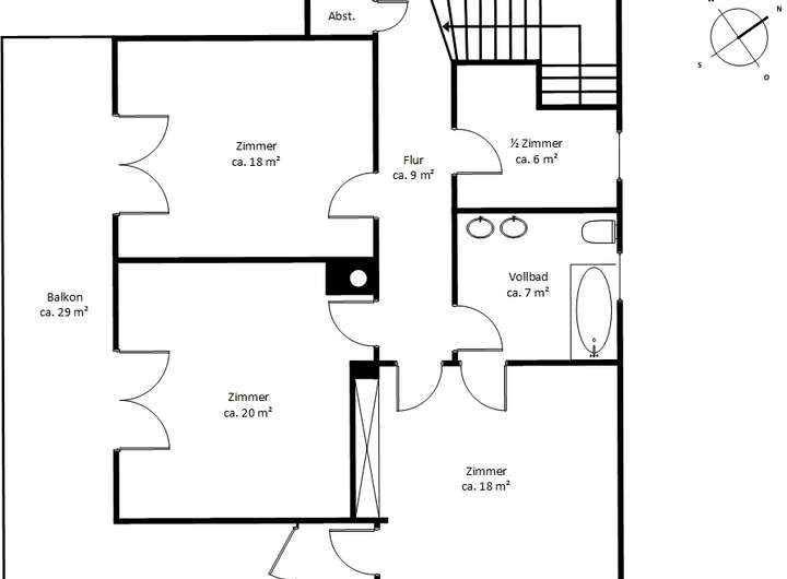
Dieses architektonisch reizvolle Einfamilienhaus wurde 1961 nach einem Entwurf des renommierten Architekten Röpcke errichtet und befindet sich seitdem in Familienbesitz – ein Ausdruck von Beständigkeit, Sorgfalt und gewachsener Wohnkultur. Mit einer Wohnfläche von rund 176 m² bietet das Haus viel Raum für individuelle Lebenskonzepte. Die durchdachte Raumaufteilung umfasst fünfeinhalb Zimmer, darunter vier Schlafzimmer, zwei Bäder sowie einen großzügigen Wohn- und Essbereich mit Kamin, der besonders in der kälteren Jahreszeit für eine behagliche Atmosphäre sorgt.
Im Erdgeschoss empfängt eine elegante Diele mit Natursteinplatten, während im Wohn- und Essbereich hochwertiger Holzboden Wärme und Stil verleiht. Große Fensterfronten mit bodentiefen Elementen lassen viel Licht ins Haus und geben den Blick auf den wunderschönen Garten frei. Ein besonderer Blickfang sind die dekorativen Außenklappläden, die dem Haus eine mediterrane Leichtigkeit verleihen.
Der große, terrassenartige Balkon im Obergeschoss erstreckt sich über die gesamte Hausbreite und bietet einen herrlichen Rückzugsort im Freien. Von hier aus genießt man den Blick in den liebevoll angelegten, blickgeschützten Garten mit alten Rhododendren und sonniger Südwestausrichtung. Ein Ort, der sofort Urlaubsgefühle weckt.
Das Haus ist voll unterkellert und bietet neben klassischen Abstell- und Hauswirtschaftsräumen vielfältige Nutzungsmöglichkeiten, etwa für einen Hobbyraum, Fitnessbereich oder Gästezimmer. Auch ein Partykeller oder Home-Gym lassen sich hier problemlos realisieren. Besonders charmant ist der separat gelegene Wintergarten, der nur vom Garten aus zugänglich ist, ein stiller Rückzugsort mitten im Grünen, ideal als Atelier, Leseraum oder private Lounge.
Eine großzügige Garage ist ebenfalls vorhanden. Beheizt wird das Haus über eine Gasheizung, der Heizkessel stammt aus dem Jahr 2000. Insgesamt befindet sich das Gebäude in einem sehr gepflegten Zustand, bedarf jedoch einer Modernisierung, um heutigen Ansprüchen und energetischen Standards zu entsprechen.
Mit einem großzügigen Grundstück von etwa 890 m², viel Gestaltungsspielraum und einer exzellenten Lage vereint dieses Haus Wohnkomfort, architektonische Qualität und Lebensfreude. Eine seltene Gelegenheit, ein echtes Blankeneser Original mit Geschichte und Charakter nach eigenen Vorstellungen zu gestalten.
Wohnen, wo Hamburg am schönsten ist – Familienidylle im Herzen von Blankenese
22587 Hamburg
Die vollständige Adresse der Immobilie erhalten Sie vom Anbieter.
Auf Karte anzeigen
Die vollständige Adresse der Immobilie erhalten Sie vom Anbieter.
Finanzierungszertifikat
In nur zwei Minuten zu Ihrem persönlichen Finanzierungszertifkat.
Infos
| Haustyp | Einfamilienhaus |
|---|---|
| Wohnfläche ca. | 176 m2 |
| Grundstücksfläche | 890 m2 |
| Zimmer | 5,5 |
| Schlafzimmer | 4 |
| Badezimmer | 2 |
| Anzahl Garage/Stellplatz | 1 |
Kosten
| Kaufpreis |
1.950.000 € |
|---|---|
| Provision |
3,57 % inkl. 19 % MwSt. Bei wirksamem Abschluss eines notariellen Kaufvertrages ist eine Maklercourtage in Höhe von 3,57 % inkl. 19 % ges. MwSt., bezogen auf den vereinbarten Kaufpreis, verdient und fällig und vom Käufer an die Firma MEISSLER & CO zu zahlen, die hierdurch einen unmittelbaren Zahlungsanspruch gegenüber dem Käufer erhält. Die Grunderwerbsteuer sowie die Notar- und Gerichtskosten sind vom Käufer zu tragen. Alle Angaben über diese Immobilie beruhen auf Informationen, die uns der Auftraggeber zur Verfügung gestellt hat. Für die Richtigkeit, Aktualität und Vollständigkeit dieser Angaben übernehmen wir keine Gewähr. Irrtum und Zwischenverkauf vorbehalten. |
Finanzierungsrechner:
Kaufpreis:
600.000 €
Eigenkapital:
600.000 €
Monatliche Rate
0 €
Effektiver Jahreszins
0 %
Sollzinsbindung
10 Jahre
Bausubstanz & Energieausweis
| Baujahr | 1961 |
|---|---|
| Objektzustand | Gepflegt |
| Wesentliche Energieträger | Erdgas schwer |
| Energieausweis | liegt vor |
| Energieausweistyp | Bedarfsausweis |
| Energieverbrauchskennwert | 266,0 kWh/(m²*a) |
| Energieeffizienzklasse | H |
266,0
kWh/(m²*a)
Energieeffizienzklasse H
- A+
- A
- B
- C
- D
- E
- F
- G
- H
- 0
- 25
- 50
- 75
- 100
- 125
- 150
- 175
- 200
- 225
- >250
Beschreibung des Objekts
Lage
In einer der gefragtesten und charmantesten Wohnlagen Hamburgs liegt dieses besondere Einfamilienhaus, eingebettet in eine grüne, ruhige und familienfreundliche Umgebung. Die Straße Ole Hoop ist ein echtes Kleinod in Blankenese verborgen, idyllisch und dennoch perfekt angebunden. Nur wenige Schritte entfernt erwartet Sie das Zentrum von Blankenese mit seinem unverwechselbaren Flair. Kleine Boutiquen, gemütliche Cafés, Bäckereien und Restaurants, laden zum Bummeln und Genießen ein. Der Wochenmarkt am Blankeneser Marktplatz bietet mehrmals wöchentlich frische, regionale Produkte. Auch Ärzte, Apotheken, Banken und Dienstleister befinden sich in unmittelbarer Nähe, kurze Wege, die den Alltag angenehm machen. Familien profitieren von einer erstklassigen Infrastruktur: mehrere Kitas und alle Schulformen Schulen Hamburg liegen nur wenige Minuten entfernt. Ein Highlight ist die Nähe zur Elbe: Spaziergänge durch das malerische Treppenviertel, entspannte Stunden am Elbstrand oder Fahrradtouren entlang des Flusses gehören hier einfach zum Lebensgefühl. Dank der S-Bahn-Station Blankenese sind Innenstadt und Flughafen schnell erreicht, ohne auf Ruhe und Privatsphäre verzichten zu müssen. Blankenese vereint hanseatische Geschichte, Stil und Natur auf einzigartige Weise. Dieses Haus bietet Ihnen die Gelegenheit, genau hier Ihren Traum vom modernen Familienleben zu verwirklichen.
Sonstige Angaben
MEISSLER & CO gehört zu den größten, inhabergeführten Immobilienunternehmen Hamburgs für die Vermittlung hochwertiger Wohnimmobilien in den Elbvororten, an der Alster sowie in der HafenCity.
In den vier Hamburger Standorten:
Büro Blankenese | Blankeneser Bahnhofstr. 8 | 22587 Hamburg
Büro Nienstedten | Nienstedtener Markplatz 29 | 22609 Hamburg
Büro Othmarschen | Waitzstr. 5 | 22607 Hamburg
Büro Ottensen – Alster| Klopstockstr. 31 | 22765 Hamburg
bietet MEISSLER & CO hohe Kompetenz in der Bewertung und der Vermarktung erstklassiger Wohnimmobilien.
Wir freuen uns auf Ihre Kontaktaufnahme für die Abstimmung eines Beratungstermins:
Tel.: 040 86 44 44 | E-Mail: info@meissler-co.de
Adresse
22587 Hamburg
Interessante Orte
Preis- und Lageinformationen
Preistrend für Bestandsimmobilien in Blankenese