Herzlichen Glückwunsch zu Ihrem Wohn- und Geschäftshaus!
Dieses 1991 erbaute Wohn- und Geschäftshaus beherbergt auf fast 2000 m² ein Unternehmen, das sich auf das Herstellen und Errichten von Regalsystemen spezialisiert hat. Dieses Unternehmen ist vom ersten Tag an Mieter dieser Immobilie und es läuft ein 10-Jahres-Mietvertrag, der noch langfristig gute Mietrenditen verspricht.
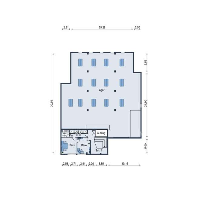
Während im Untergeschoss die Produktion aufgebaut ist, findet sich im Erdgeschoss neben einem Büro das große Hochregallager. Im 1. und 2. Obergeschoss stehen dem Unternehmen weitere Büroräume zur Verfügung und im Dachgeschoss liegt ein großer Schulungs- bzw. Besprechungsraum. Mit einem geräumigen Aufzug erreichen Sie problemlos alle Geschosse dieses Hauses.
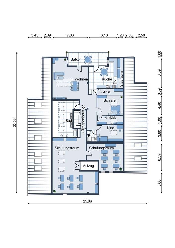
Zusätzlich sind zwei hochwertige Wohnungen in diesem Gebäude vermietet. Die über 215 m² große Wohnung im 2. Obergeschoss mit 4 Schlafzimmern und mehreren Bädern besticht durch die hochwertige Ausstattung und ihren großen Balkon, von dem aus Sie einen phänomenalen Blick auf die Wälder des Taunus haben und auf dem ein komfortables Gewächshaus errichtet ist. Genießen Sie auf dem Balkon die Ruhe des ländlichen Flairs. Im Dachgeschoss wartet die rund 190 m² große zweite Wohnung auf Sie. Die Böden sind mit hochwertigem Parkett ausgelegt. Die Terrasse mit dem Blick über die Dächer Langenhains lässt Ihr Herz höher schlagen.
Auf dem Dach ist eine Photovoltaikanlage installiert, die Strom für das Gebäude liefert. Das großartige Angebot wird durch die Doppelgarage und die sieben Stellplätze vor dem Haus abgerundet.
Die Immobilie zeichnet sich durch die Nähe zu Frankfurt und zum Frankfurter Flughafen aus. Zudem liegt sie so idyllisch, dass Sie jederzeit die reine Luft des Taunus einatmen können.
Auf Anfrage geben wir Ihnen gerne eine Übersicht über die aktuellen Mieten.
Haben wir Ihr Interesse an diesem schönen Wohn- und Geschäftshaus geweckt? Dann kontaktieren Sie uns gerne. Wir freuen uns auf Sie.
Lukrative Kapitalanlage in Hofheim-Langenhain
65719 Hofheim am Taunus
Die vollständige Adresse der Immobilie erhalten Sie vom Anbieter.
Auf Karte anzeigen
Die vollständige Adresse der Immobilie erhalten Sie vom Anbieter.
Finanzierungszertifikat
In nur zwei Minuten zu Ihrem persönlichen Finanzierungszertifkat.
Infos
| Wohnfläche ca. | 405 m2 |
|---|---|
| Nutzfläche | 1.931 m2 |
| Grundstücksfläche | 1.257 m2 |
| Bezugsfrei ab | sofort |
| Zimmer | 18 |
| Schlafzimmer | 6 |
| Badezimmer | 5 |
| Garage/Stellplatz | Garage |
| Anzahl Garage/Stellplatz | 2 |
Kosten
| Kaufpreis |
4.500.000 € |
|---|---|
| Provision |
5,95% (inkl. 19% MwSt.) |
Finanzierungsrechner:
Kaufpreis:
600.000 €
Eigenkapital:
600.000 €
Monatliche Rate
0 €
Effektiver Jahreszins
0 %
Sollzinsbindung
10 Jahre
Bausubstanz & Energieausweis
| Baujahr | 1991 |
|---|---|
| Objektzustand | Gepflegt |
| Heizungsart | Zentralheizung |
| Wesentliche Energieträger | Öl |
| Energieausweis | liegt vor |
| Energieausweistyp | Verbrauchsausweis |
| Energieverbrauchskennwert | 137,6 kWh/(m²*a) |
| Energieeffizienzklasse | E |
137,6
kWh/(m²*a)
Energieeffizienzklasse E
- A+
- A
- B
- C
- D
- E
- F
- G
- H
- 0
- 25
- 50
- 75
- 100
- 125
- 150
- 175
- 200
- 225
- >250
Beschreibung des Objekts
Ausstattung
Dieses Wohn- und Geschäftshaus besticht durch:
- die riesige Gewerbefläche von fast 2000 m²
- die große Wohnfläche aufgeteilt in zwei Wohneinheiten
- die hochwertige Ausstattung des Gebäudes
- den komfortablen Aufzug
- die Photovoltaikanlage auf dem Dach
- die hohen Mieteinnahmen
- die langfristigen Mietverträge, die eine hohe Rendite über viele Jahre garantieren
- die sehr gute Lage in Hofheim-Langenhain
- die Nähe zu Frankfurt und den Flughafen
- die hohen Mieteinnahmen
Lage
Hofheim-Langenhain ist ein bezaubernder Ort, eingebettet in die malerische Landschaft des Taunus. Mit seinem charmanten ländlichen Charakter und seiner Nähe zur pulsierenden Metropole Frankfurt am Main bietet Langenhain eine einzigartige Mischung aus Idylle und Urbanität.
Langenhain liegt 339 m hoch auf einer geraden Linie mittig zwischen Frankfurt und Wiesbaden, mit dem PKW in 20 Minuten Fahrzeit zur Stadtmitte Frankfurt, in 15 Minuten Fahrzeit zur Stadtmitte Wiesbaden und in 12 Minuten Fahrzeit zum Flughafen Frankfurt am Main.
Die Umgebung von Langenhain lädt zu Aktivitäten in der Natur ein. Die sanften Hügel des Taunus bieten Wanderern und Radfahrern eine Vielzahl von Routen, die durch dichte Wälder, saftige Wiesen und entlang glitzernder Bäche führen. Der nahegelegene Feldberg, der höchste Gipfel des Taunus, bietet atemberaubende Aussichten und im Winter ideale Bedingungen für Wintersportarten.
Für kulturelle Erlebnisse und kulinarische Genüsse müssen die Bewohner von Langenhain nicht weit reisen. Die Stadt Hofheim, nur eine kurze Autofahrt entfernt, bietet eine Vielzahl von Restaurants, Cafés und Geschäften sowie kulturelle Veranstaltungen und Festivals das ganze Jahr über. Hier können die Besucher die lokale Küche genießen, die von traditionellen Gerichten bis hin zu internationalen Spezialitäten reicht, oder sich in den gemütlichen Straßencafés entspannen und das Treiben der Stadt beobachten.
Langenhain ist mehr als nur ein Ort - es ist eine Gemeinschaft, in der Tradition und Fortschritt Hand in Hand gehen. Die Bewohner schätzen die Ruhe und Schönheit ihres Dorfes ebenso wie die Annehmlichkeiten und Möglichkeiten, die ihnen die Nähe zur Großstadt bietet. Hofheim-Langenhain ist ein Ort, an dem man die Balance zwischen zwischen Natur und Kultur findet und wo man sich zuhause fühlen kann.
Grundriss
Das Untergeschoss
>
>
Das Erdgeschoss
>
>
Das 1. Obergeschoss
>
>
Das 2. Obergeschoss
>
>
Das Dachgeschoss
>
>
Adresse
65719 Hofheim am Taunus
Interessante Orte
Preis- und Lageinformationen
Preistrend für Bestandsimmobilien in Hofheim am Taunus