Wir verfügen über einen Eklusivauftrag der Eigentümerin diese Immobilie zu vermarkten. Das Gebäude verfügt über eine stattliche Wohnfläche von rd. 270 qm - diese verteilt sich auf 4 Wohnetagen inkl. Giebelgeschoss. Das Gebäude ist vollständig unterkellert. Zum Lieferumfang gehören außerdem 4 Bäder und 2 Küchen. Diese Liegenschaft ist im Hinblick auf die gebäudetechnische Infrastruktur auf dem heutigen Stand der Anforderungen zu betrachten. Die moderne Heizanlage wird mit Gas befeuert. Unter der Regie der Eigentümerin wurden in den zurückliegenden Jahren stets werterhaltende und wertverbessernde Maßnahmen durchgeführt. Die Fenster sind mit Isolierverglasung ausgestattet - allerdings sehen wir in diesem Bereich mittelfristig einen sinnvollen Investitionsbedarf. Ein Anstrich der Gebäuderückfassade wäre ebenfalls mittelfristig zu überdenken. Insgesamt beurteilt präsentiert sich das Gebäude im einem hervorragenden Zustand.
"Zu schön um zu verkaufen"! Altbaudiamant in exponierter Lage Bremen-Bürgerpark
28209 Bremen
Die vollständige Adresse der Immobilie erhalten Sie vom Anbieter.
Auf Karte anzeigen
Die vollständige Adresse der Immobilie erhalten Sie vom Anbieter.

Finanzierungszertifikat
In nur zwei Minuten zu Ihrem persönlichen Finanzierungszertifkat.
Infos
Haustyp | Reiheneckhaus |
---|---|
Etagenzahl | 4 |
Wohnfläche ca. | 251 m2 |
Nutzfläche | 114 m2 |
Grundstücksfläche | 270 m2 |
Bezugsfrei ab | 10/2025 |
Zimmer | 10 |
Schlafzimmer | 6 |
Badezimmer | 4 |
Kosten
Kaufpreis |
1.069.000 € |
---|---|
Provision |
3,57 % inkl. 19% Mehrwertsteuer |
Finanzierungsrechner:
Kaufpreis:
600.000 €
Eigenkapital:
600.000 €
Monatliche Rate
0 €
Effektiver Jahreszins
0 %
Sollzinsbindung
10 Jahre
Bausubstanz & Energieausweis
Baujahr | 1914 |
---|---|
Objektzustand | Gepflegt |
Qualität der Austattung | Gehoben |
Heizungsart | Zentralheizung |
Wesentliche Energieträger | Gas |
Energieausweis | liegt vor |
Energieausweistyp | Bedarfsausweis |
Energieverbrauchskennwert | 220,0 kWh/(m²*a) |
Energieeffizienzklasse | G |
220,0
kWh/(m²*a)
Energieeffizienzklasse G
- A+
- A
- B
- C
- D
- E
- F
- G
- H
- 0
- 25
- 50
- 75
- 100
- 125
- 150
- 175
- 200
- 225
- >250
Beschreibung des Objekts
Ausstattung
Wir heben in unserem Expose einige Besonderheiten stichwortartig hervor: -quartierstypische Grundstücksgröße von rd. 270 qm -Wohn-Nutzfläche ca. 360 qm -alle zeittypischen Stilelemente im Innenausbau sind erhalten -edle Parkett-/Holzböden (tlw. in Fischgrätmuster) verlegt u.v.m. Alle Ausstattungsdetails sowie unser "Video" können Sie unserem ausführlichen Expose entnehmen. Fordern Sie dies gleich an!
Lage
Das schwachhauser Wachmannstraßen-Quartier - einer der exklusivsten Villenlagen in Bremen Wer in dieser exquisiten Wohnlage eine Immobilie erwerben möchte, sucht oftmals sehr lange nach einer passenden Kaufgelegenheit. Altbauten - und dann noch im guten Zustand werden hier nur selten am Markt gehandelt. Seit Jahrzehnten besteht eine konstante Transaktionsarmut - d.h. die Anzahl der Kauffälle typischer Villenaltbauten ist äußerst gering. Gleichzeit ist die Nachfrage nach derartigen Liegenschaften konstant lebhaft. Das hier maßgebliche Wohnviertel besteht fast ausschließlich aus traumhaft schönen Jugendstilgebäuden, die sich wie Perlen an einer Schnur aneinanderreihen. Zumeist verfügen diese großen Altbaugebäude über Wohnflächen zwischen 250 bis 300 qm. Das bietet genügend Raum für eine große Familie ohne dabei auf die heute üblichen Anforderungen wie Home-Office-Zimmer und Gästebereiche zu verzichten. Das Wachmannstraßen-Quartier liegt unmittelbar an der Südflanke des Bremer Bürgerparks in einem Bereich zwischen der Parkallee, Schwachhauser Ring, Georg-Gröning-Straße und dem Stern. Entlang der Wachmannstraße befindet sich ein sehr attraktiver Mix aus kleinen Boutiquen, Restaurants, Weinbars, Cafés, eine beliebte Trattoria sowie Geschäfte für den täglichen Versorgungsbedarf. Wer hier mal in Ruhe bummeln und flanieren möchte, kann das so richtig genießen. Für Freizeitsportler jeder Art ist der Bremer Bürgerpark ein perfekter Ort zum Auftanken und Entspannen. Familie wie auch Junge Paare könne hier nach Lust und Laune chillen und die Schönheit des Parks erleben. ÖPNV-Anbindungen bestehen hier in vielfältiger Weise - u.a,. durch 2 Straßenbahnlinien.
Sonstige Angaben
Der Energieausweis ist in Auftrag gegeben. Die hier veröffentlichten Daten sind als Schätzdaten zu verstehen und können zu den endgültigen Angaben im E-Ausweis variieren. Die hier angegebene Wohn- und Nutzfläche basiert auf einem örtlichen Aufmaß am Gebäude. Das im Gebäude befindliche Mobiliar (siehe Fotos) ist nicht Bestandteil des hier genannten Kaufpreises. Bei einer geplanten Übernahme wird dies separat verhandelt. Bei Abschluss eines notariellen Kaufvertrages berechnen wir dem Käufer eine Vermittlungscourtage von 3,57% inkl. 19% Mehrwertsteuer. Wir haben einen provisionspflichtigen Maklervertrag in gleicher Höhe mit der Verkäuferseite abgeschlossen (paritätische Courtageteilung). GELDWÄSCHE: Als Maklerunternehmen ist die BONUM Immobilien GmbH nach § 2 Abs. 1 Nr. 14 und § 11 Abs. 1, 2 Geldwäschegesetz (GwG) dazu verpflichtet, bei der Begründung einer Geschäftsbeziehung die Identität des Vertragspartners festzustellen und zu überprüfen, bzw. sobald ein ernsthaftes Interesse an der Durchführung des Immobilienkaufvertrages besteht. Hierzu ist es erforderlich, dass wir nach § 11 Abs. 4 GwG die relevanten Daten Ihres Personalausweises festhalten (wenn Sie als natürliche Person handeln) – beispielsweise mittels einer Kopie. Bei einer juristischen Person benötigen wir eine Kopie des Handelsregisterauszugs, aus welchem der wirtschaftlich Berechtigte hervorgeht. Das GwG sieht vor, dass der Makler die Kopien bzw. Unterlagen fünf Jahre lang archivieren müssen.
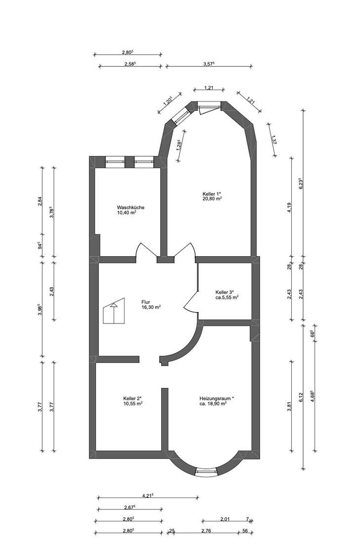
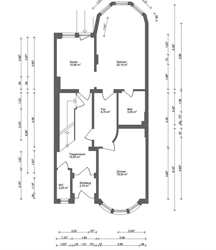
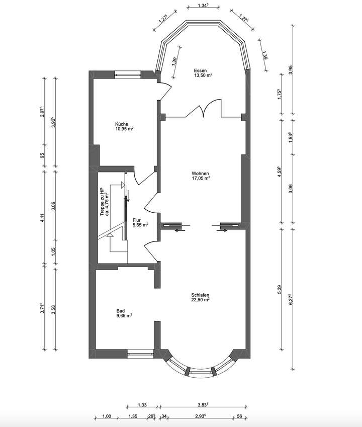
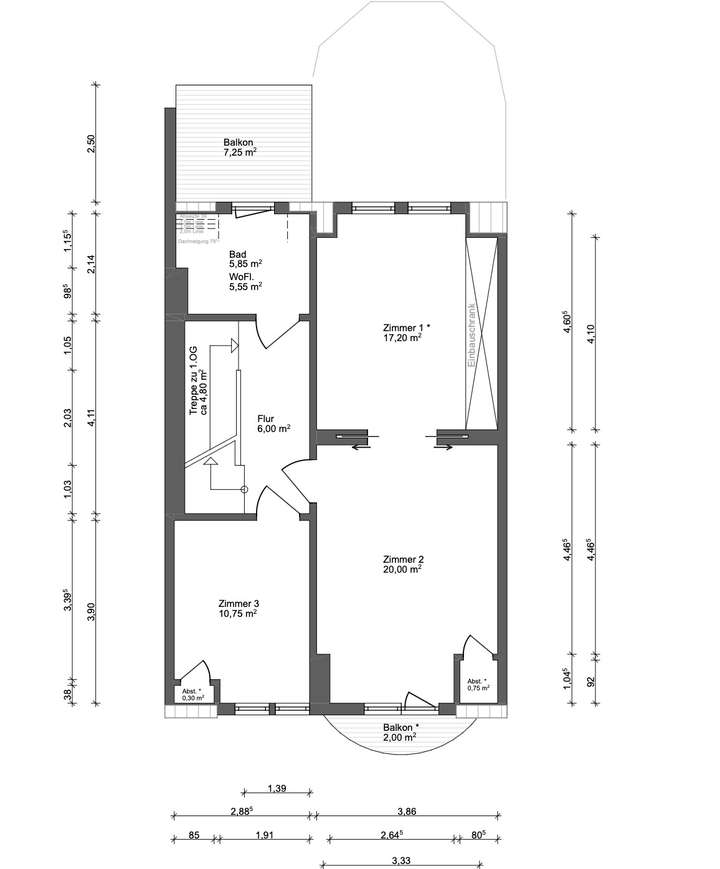
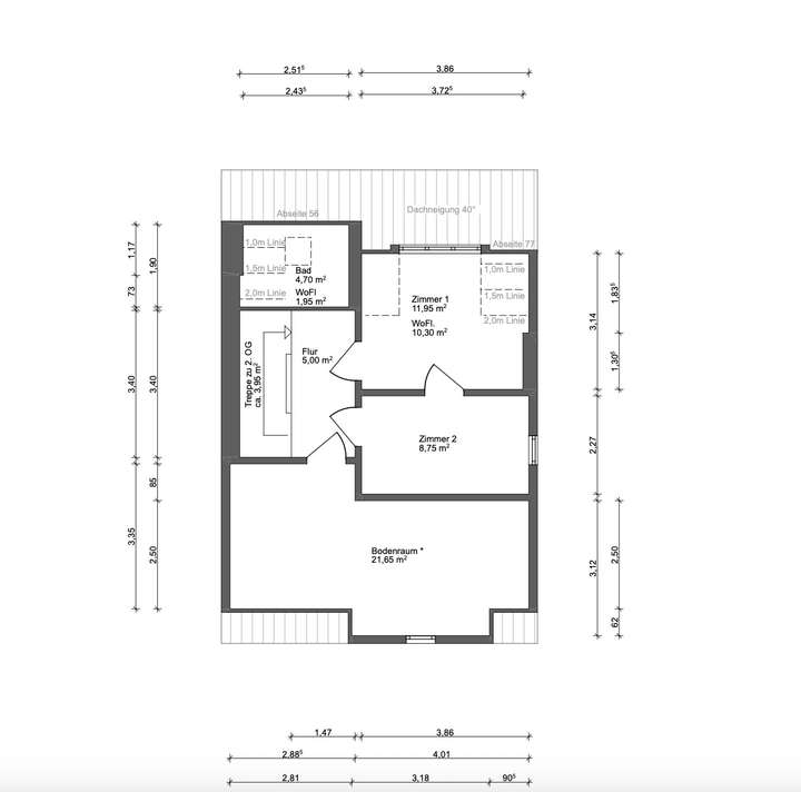
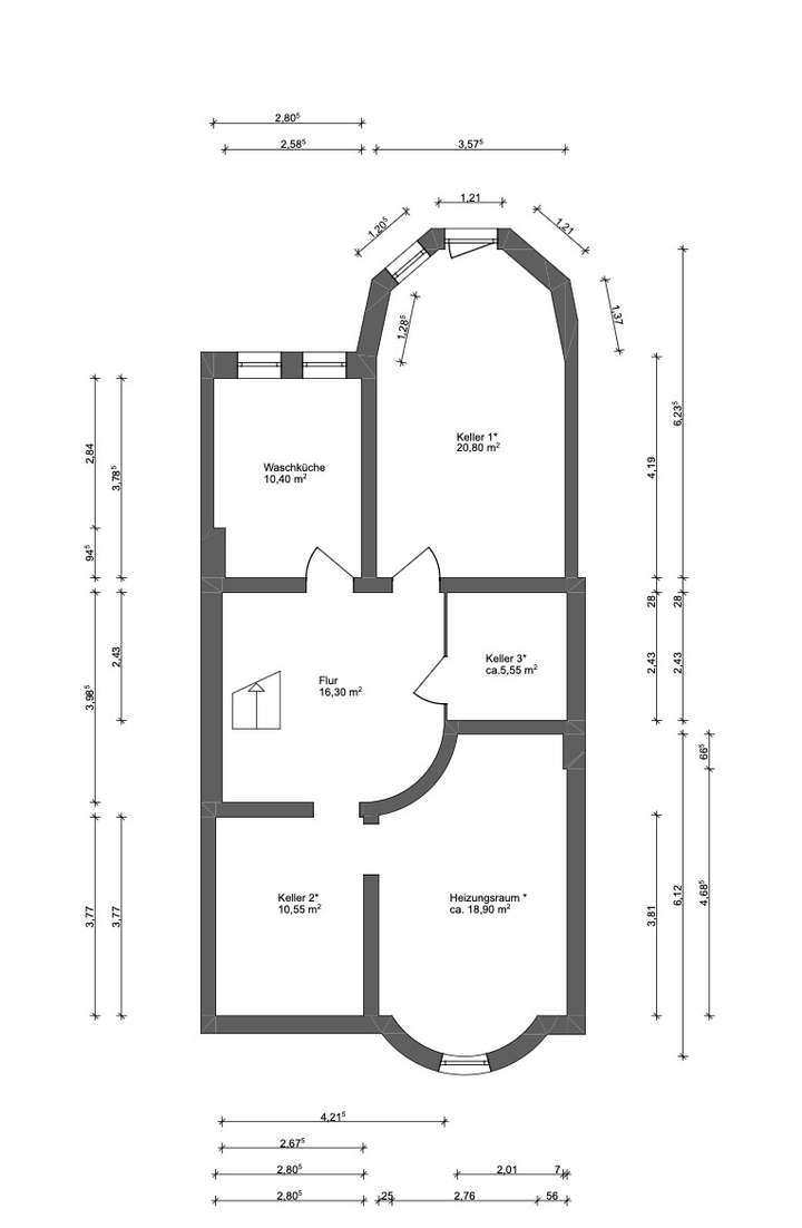
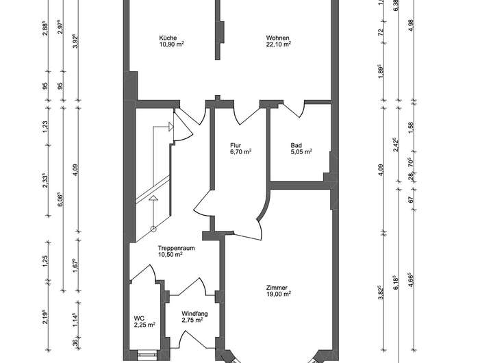
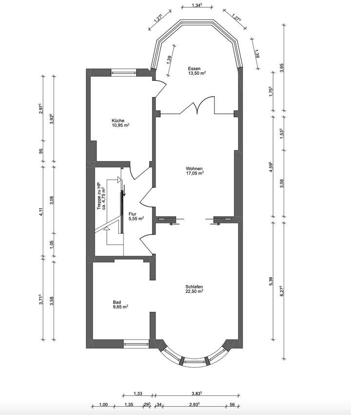
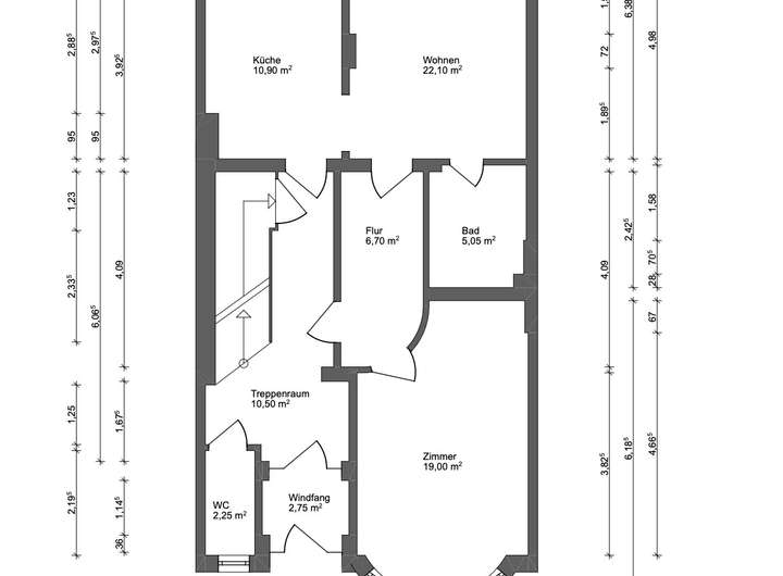
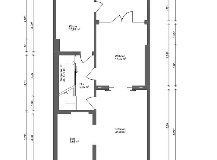
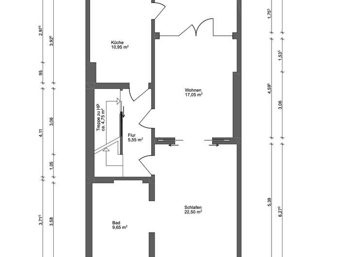
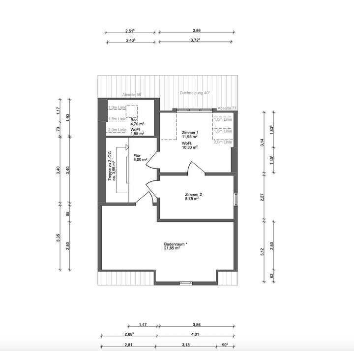
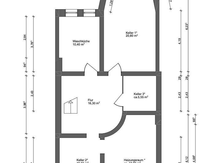
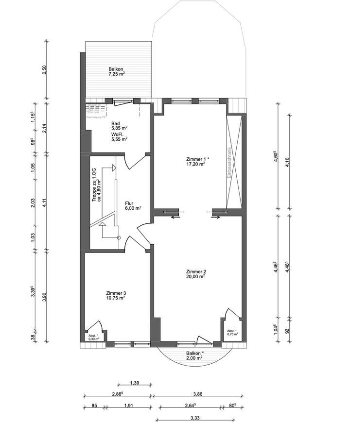
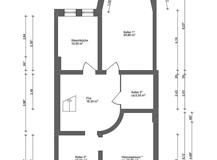
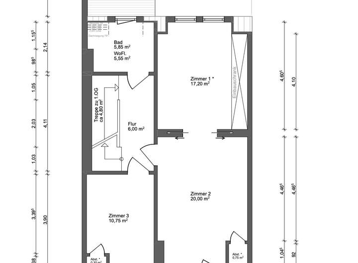
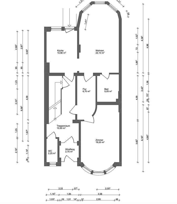
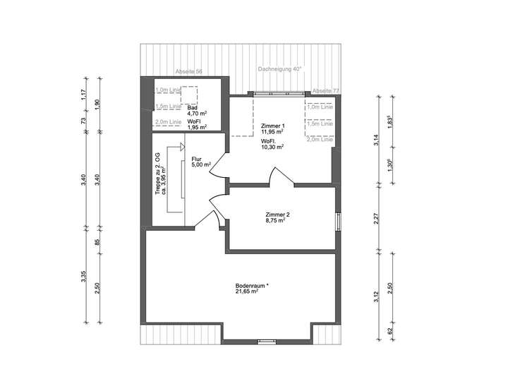
Grundriss
Souterrain-Geschoss
>

Erdgeschoss
>

Obergeschoss 1
>

Obergeschoss 2
>

Giebelgeschoss
>

Adresse
28209 Bremen
Interessante Orte
Preis- und Lageinformationen
Preistrend für Bestandsimmobilien in Bürgerpark