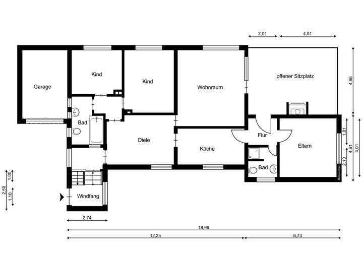
Dieses charmante 4 Zimmer Einfamilienhaus befindet sich in dritter und damit ruhiger Baureihe der Luruper Hauptstraße. Insgesamt stehen ca. 128,6 m² Wohnfläche im Erdgeschoss und ca. 112 m² Nutzfläche im Keller zur Verfügung. Ggfs. könnte noch der Dachboden ausgebaut werden. Vor dem Haus befinden sich eine Einzelgarage und ein Carport für PKW`s. Das Haus befindet sich in einem gepflegten aber modernisierungsbedürftigen Zustand. Beheizt wird das Haus von einer Öl-Zentralheizung von 2004.
Charmantes Einfamilienhaus mit Vollkeller und Potential in ruhiger dritter Baureihe
22547 Hamburg
Die vollständige Adresse der Immobilie erhalten Sie vom Anbieter.
Auf Karte anzeigen
Die vollständige Adresse der Immobilie erhalten Sie vom Anbieter.
Finanzierungszertifikat
In nur zwei Minuten zu Ihrem persönlichen Finanzierungszertifkat.
Infos
| Haustyp | Einfamilienhaus |
|---|---|
| Wohnfläche ca. | 128 m2 |
| Nutzfläche | 112 m2 |
| Grundstücksfläche | 799 m2 |
| Bezugsfrei ab | frei verfügbar |
| Zimmer | 4 |
| Schlafzimmer | 3 |
| Badezimmer | 2 |
| Garage/Stellplatz | Carport |
| Anzahl Garage/Stellplatz | 1 |
Kosten
| Kaufpreis |
535.000 € |
|---|---|
| Provision |
3 % auf den Kaufpreis |
Finanzierungsrechner:
Kaufpreis:
600.000 €
Eigenkapital:
600.000 €
Monatliche Rate
0 €
Effektiver Jahreszins
0 %
Sollzinsbindung
10 Jahre
Bausubstanz & Energieausweis
| Baujahr | 1948 |
|---|---|
| Objektzustand | Renovierungsbedürftig |
| Heizungsart | Öl-Heizung |
| Wesentliche Energieträger | Öl |
| Energieausweis | liegt vor |
| Energieausweistyp | Bedarfsausweis |
| Energieverbrauchskennwert | 302,1 kWh/(m²*a) |
| Energieeffizienzklasse | H |
302,1
kWh/(m²*a)
Energieeffizienzklasse H
- A+
- A
- B
- C
- D
- E
- F
- G
- H
- 0
- 25
- 50
- 75
- 100
- 125
- 150
- 175
- 200
- 225
- >250
Beschreibung des Objekts
Ausstattung
Die Ausstattung des Hauses umfasst folgende Einzelheiten:
- Essdiele mit Kaminanschluss
- Funktionale Einbauküche
- Zwei Bäder mit Fenster
- Holzdielenfußböden
- Außenrollläden
- Große überdachte Terrasse
- Garage und Carport
Lage
Lurup erfreut sich in den letzten Jahren einer deutlich wachsenden Beliebtheit. Perfekte Infrastruktur mit einem guten Anschluss an den HVV und die hamburger Innenstadt sowie diverse Einkaufsmöglichkeiten (Eckhoffplatz) machen das Leben hier besonders Lebenswert.
Grundriss
Erdgeschoss
>
>
Keller
>
>
Adresse
22547 Hamburg
Interessante Orte
Preis- und Lageinformationen
Preistrend für Bestandsimmobilien in Lurup