Willkommen in diesem modernisierten Einfamilienhaus in Griesheim. Das im Jahr 1974 erbaute Haus bietet eine großzügige Wohnfläche und erstreckt sich über drei Etagen: Kellergeschoss, Erdgeschoss und Dachgeschoss. Mit einer Grundstücksfläche von 554 m² genießen Sie ausreichend Platz für die ganze Familie während der gepflegte Garten mit Pool eine echte Wohlfühloase direkt vor der eigenen Haustür bietet.
Im Erdgeschoss erwartet Sie ein lichtdurchflutetes Wohn-Esszimmer mit stilvollem Kamin, das eine gemütliche Atmosphäre erzeugt. Von hier aus haben Sie direkten Zugang zur überdachten Terrasse und dem gepflegten Garten mit Pool, der an warmen Sommertagen für Abkühlung sorgt. Die hochwertige Einbauküche mit Echtsteinplatte ist hochwertig ausgestattet und bietet viel Platz zum Kochen. Drei Schlafzimmer im Erdgeschoss bieten vielseitige Möglichkeiten. Zudem stehen ein Badezimmer und ein separates WC zur Verfügung.
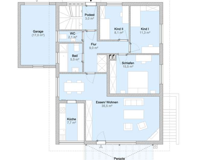
Das Dachgeschoss umfasst einen offenen Wohnbereich, ein abgeschlossenes Zimmer, sowie ein weiteres Badezimmer. Falls gewünscht, kann dieser Bereich weiter unterteilt werden.
Das Kellergeschoss bietet genügend Platz für eine Waschküche und diverse Abstellräume. Besonders hervorzuheben ist der großzügige Raum mit Sauna, der sich ideal als Wellnessbereich umgestalten lassen kann.
Modernisierungen und Ausstattung:
•1993: Ausbau des Dachgeschosses inkl. Gaube und Bad
•1998: Austausch von Fenstern und Türen mit elektrischen Alurollläden und Sonnensensoren
•2000: Doppelgarage mit elektrischem Hoftor
•2001: Modernisierung des Badezimmers im EG
•2004: Dachdämmung inkl. Erneuerung der Dachfenster (140 mm Dämmung)
•2005: Installation einer PV-Anlage
•2006: Modernisierung der Brennwert-Ölheizung sowie Installation einer Solarthermie-Anlage zur Heizungsunterstützung
•2007: Erneuerung der Heizkörper im EG und Keller
•2009: Einbau eines wasserführenden Kaminofens mit 300 Liter Pufferspeicher
•2014: Sanierung des Außenpools
•2015: Neuer Öltank
•2018: Installation einer Klimaanlage im EG sowie Erneuerung der Garteneinfriedung mit maulwurfsicherem Rasen
•2022: Installation einer Klimaanlage im 1. OG
Das Haus überzeugt nicht nur durch seine Ausstattung, sondern auch durch seine hervorragende Lage in der Rhein-Main-Region. Die gute Anbindung an die Autobahn ermöglicht eine schnelle Verbindung in die umliegenden Städte. Lassen Sie die Atmosphäre dieses besonderen Hauses auf sich wirken und entdecken Sie, wie es Ihr zukünftiges Zuhause werden kann.
Modernisiertes Einfamilienhaus mit Garten, Pool & Sauna
64347 Griesheim
Die vollständige Adresse der Immobilie erhalten Sie vom Anbieter.
Auf Karte anzeigen
Die vollständige Adresse der Immobilie erhalten Sie vom Anbieter.
Finanzierungszertifikat
In nur zwei Minuten zu Ihrem persönlichen Finanzierungszertifkat.
Infos
| Haustyp | Einfamilienhaus |
|---|---|
| Etagenzahl | 3 |
| Wohnfläche ca. | 202 m2 |
| Grundstücksfläche | 554 m2 |
| Bezugsfrei ab | VERFÜGBAR |
| Zimmer | 6 |
| Schlafzimmer | 5 |
| Badezimmer | 2 |
| Garage/Stellplatz | Garage |
| Anzahl Garage/Stellplatz | 3 |
Kosten
| Kaufpreis |
785.000 € |
|---|---|
| Provision |
3,57 % inkl. MwSt. |
Finanzierungsrechner:
Kaufpreis:
600.000 €
Eigenkapital:
600.000 €
Monatliche Rate
0 €
Effektiver Jahreszins
0 %
Sollzinsbindung
10 Jahre
Bausubstanz & Energieausweis
| Baujahr | 1974 |
|---|---|
| Heizungsart | Öl-Heizung |
| Wesentliche Energieträger | Öl |
| Energieausweis | liegt vor |
| Energieausweistyp | Verbrauchsausweis |
| Energieverbrauchskennwert | 85,7 kWh/(m²*a) |
| Energieeffizienzklasse | C |
85,7
kWh/(m²*a)
Energieeffizienzklasse C
- A+
- A
- B
- C
- D
- E
- F
- G
- H
- 0
- 25
- 50
- 75
- 100
- 125
- 150
- 175
- 200
- 225
- >250
Beschreibung des Objekts
Ausstattung
Breitband - gem. Angaben unverbindlicher Verfügbarkeitscheck online [Stand: 25.03.25]:
- Telekom: 250 MBit/s max. Download, 40 MBit/s max. Upload (DSL)*
- Vodafone: 100 MBit/s max. Download, 40 MBit/s max. Upload (DSL)*
- o2: 100 MBit/s max. Download, 40 MBit/s max. Upload (DSL)*
Der Glasfaserausbau wird voraussichtlich Ende März durch die Deutsche Telekom beginnen.
*ggf. fallen Anschlussgebühren an
Lage
Griesheim ist eine charmante Stadt im südhessischen Landkreis Darmstadt-Dieburg mit rund 30.000 Einwohnern. Die Stadt bietet eine Vielzahl an Freizeitmöglichkeiten, von den umliegenden Wäldern, die sich ideal für Ausflüge und Wanderungen eignen, bis hin zu verschiedenen Veranstaltungen wie dem Museumsfest und dem Zwiebelmarkt. Diese Feste und Märkte prägen das kulturelle Leben und bieten den Bewohnern und Besuchern eine lebendige Atmosphäre. Für Erholung und sportliche Aktivitäten sorgen das Hallenbad und das Freibad. Besonders beliebt sind auch die zwei Grillhütten, die ausschließlich von Griesheimer Bürgerinnen und Bürgern angemietet werden können, sowie der Skaterpark und zahlreiche Spielplätze, die für Familien und junge Leute ein tolles Freizeitangebot bieten.
Die Verkehrsanbindung von Griesheim ist ausgezeichnet. Die Autobahnen A5 und A67 sind in wenigen Minuten und die nahegelegene Stadt Darmstadt ist in nur 13 Minuten mit dem Auto erreichbar. Der Darmstädter Hauptbahnhof ist mit dem Auto in 10 Minuten und mit dem ÖPNV in etwa 30 Minuten und Frankfurt am Main und Mainz sind ebenfalls in etwa 30 Minuten mit dem Auto zu erreichen.
Entfernungsangaben gem. Google Maps [Stand: 25.03.25]:
Kindergarten/Schulen:
- Kindergarten: 2 Minuten [PKW], 2 Minuten [Fahrrad], 7 Minuten [Fußweg]
- Grundschule: 3 Minuten [PKW], 3 Minuten [Fahrrad], 14 Minuten [Fußweg]
- Realschule: 3 Minuten [PKW], 3 Minuten [Fahrrad], 14 Minuten [Fußweg]
- Gymnasium: 6 Minuten [PKW], 6 Minuten [Fahrrad], 28 Minuten [Fußweg]
Umgebung:
- Supermärkte (Vollsortimenter + Discounter): 3 Minuten [PKW], 4 Minuten [Fahrrad], 15 Minuten [Fußweg]
- Supermärkte (Discounter): 1 Minute [PKW], 1 Minute [Fahrrad], 2 Minuten [Fußweg]
Freizeit:
- Fußballverein: 6 Minuten [PKW], 8 Minuten [Fahrrad], , 30 Minuten [Fußweg]
- Tennisverein: 6 Minuten [PKW], 8 Minuten [Fahrrad], 32 Minuten [Fußweg]
- Hallenbad: 5 Minuten [PKW], 5 Minuten [Fahrrad], 25 Minuten [Fußweg]
- Spielplatz: 3 Minuten [PKW], 2 Minuten [Fahrrad], 7 Minuten [Fußweg]
Sonstige Angaben
Modernisierungskonzept:
Sie spielen mit dem Gedanken, die Immobilie zu renovieren oder zu sanieren?
Gerne unterstützen wir Sie im Rahmen unseres Käufer-Services bei der Erstellung eines individuellen Modernisierungsplans. So können Sie sich zügig einen Eindruck verschaffen, welche potenziellen Kosten auf Sie im Rahmen einer Renovierung oder Sanierung zukommen und welche Priorität welcher Maßnahme beizumessen ist.
Visualisierung:
Um einen besseren Eindruck von den Gestaltungsmöglichkeiten der Immobilie zu bekommen (z.B. Veränderung des Grundrisses oder von Oberflächen im Innenraum oder der Fassade) können wir Sie gerne mit der Erstellung von Visualisierungen unterstützen. Somit bekommen Sie bereits vor dem Gang zu Ihrem Wunscharchitekten einen Eindruck, wie die Immobilie nach Ihren Wünschen gestaltet werden kann.
Finanzierungen:
Finanzierungen unter 2,5 % Zinssatz sind nicht mehr möglich? Das ist nicht richtig (Stand 15.01.2024). Gerne zeigt Ihnen unser Finanzierungspartner unverbindlich auf, welche Förderprogramme es gibt und welche Finanzierungsoptionen sich für Ihr Vorhaben am besten anbieten.
Sonstiges:
Alle Angaben zum Objekt stammen vom Eigentümer, der Makler kann hierfür keine Haftung übernehmen. Irrtum und Zwischenverkauf vorbehalten. Dieses Exposé ist eine Vorinformation, als Rechtsgrundlage gilt allein der notariell abgeschlossene Kaufvertrag.
Die dargestellten Grundrisse inklusive der Beispiel-Möblierung und ggf. Renovierungsbeispiele dienen lediglich zur Veranschaulichung und sind nicht maßstabsgerecht.
Die Käufer-Provision in Höhe von 3,57 % inkl. MwSt. vom notariellen Kaufpreis ist fällig bei erfolgreicher Beurkundung.
Bei Anfragen über ImmobilienScout24:
Einen Besichtigungstermin können wir Ihnen systembedingt erst nach der Durchsicht des Exposés und der 360-Grad-Tour anbieten. Ihrer Anfrage folgt eine automatisierte Antwortmail mit der Bitte die AGB‘s und Widerrufsbelehrung zu bestätigen. Nach dem Öffnen des Exposés erhalten Sie Zugang zur virtuellen Tour, weiteren Objektbildern und ggf. dem Objektvideo.
Grundriss
Erdgeschoss
>
>
Dachgeschoss
>
>
Untergeschoss
>
>
Adresse
64347 Griesheim
Interessante Orte
Preis- und Lageinformationen
Preistrend für Bestandsimmobilien in Griesheim