Diese projektierte Flachdachvilla vereint großzügiges Wohnen mit moderner Funktionalität und hochwertiger Ausstattung. Mit ca. 194 m² Netto-Grundfläche (nach DIN277) und ca. 163 m² Wohnfläche bietet es Platz für Menschen, die stilvoll leben möchten.
Das Herzstück des Hauses ist der lichtdurchflutete Wohn- und Essbereich mit offen gestalteter Küche. Eine zusätzliche Speisekammer wäre auch möglich. Im Dachgeschoss besticht diese Villa durch die ca. 46 m² große Dachterrasse.
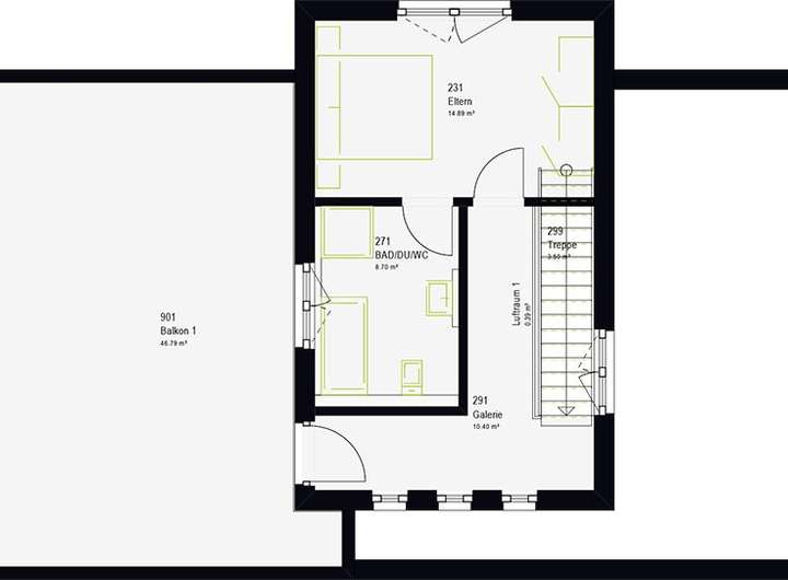
Die Immobilie verfügt in dieser Variante über3 Schlafzimmer, aber durch eine geschickte Umplanung sind auch noch weitere Zimmer möglich. Eine Kombination von Elternschlafzimmer mit Ankleidebereich und dem En-Suite-Bad ist auch im Obergeschoss zu realisieren, und bietet ein hohes Maß an Privatsphäre und Komfort.
Eine Raumhöhe von 2,75 m und hohe bodentiefe Fenster schaffen eine freundliche Atmosphäre, und wenn Sie noch weitere Wünsche haben, passen wir nicht nur den Grundriss, sondern auch die Hausgröße Ihren Vorstellungen an. Auch ein Keller wäre möglich, um noch mehr Platz zu bekommen. Sprechen Sie mich hierzu gerne an.
Die moderne Haustechnik Luft-Wasser-Wärmepumpe, Fußbodenheizung und Belüftungsanlage bildet in Verbindung mit der Photovoltaikanlage die perfekte Einheit, mit der Sie einen Großteil des Stromes selbst erzeugen.
Das Effizienzhaus 55 ist bei uns Standard. Das Effizienzhaus 40 und 40 Plus sind natürlich auch möglich!
Eindrucksvolle Flachdachvilla im Bauhausstil mit Dachterrasse
67591 Wachenheim
Die vollständige Adresse der Immobilie erhalten Sie vom Anbieter.
Auf Karte anzeigen
Die vollständige Adresse der Immobilie erhalten Sie vom Anbieter.
Finanzierungszertifikat
In nur zwei Minuten zu Ihrem persönlichen Finanzierungszertifkat.
Infos
| Haustyp | Einfamilienhaus |
|---|---|
| Wohnfläche ca. | 163 m2 |
| Grundstücksfläche | 602 m2 |
| Zimmer | 4 |
| Schlafzimmer | 3 |
| Badezimmer | 2 |
Kosten
| Kaufpreis |
679.500 € |
|---|
Finanzierungsrechner:
Kaufpreis:
600.000 €
Eigenkapital:
600.000 €
Monatliche Rate
0 €
Effektiver Jahreszins
0 %
Sollzinsbindung
10 Jahre
Bausubstanz & Energieausweis
| Baujahr | unbekannt |
|---|
Beschreibung des Objekts
Ausstattung
Ausstattung und im Preis enthalten:
+ Grundstück
+ Projektiertes Ausbauhaus mit Klima-Plus-Wand
+ Effizienzhaus 55 im Standard (Effizienzhaus 40 und 40-Plus sind auch möglich)
+ 3-fach-verglasten Wärmeschutzfenster
+ Alu-Rollläden für alle Fenster und moderne Haustüre zur Auswahl
+ massa Freiraum = Wohnraumhöhe 2,75 m serienmäßig
+ massa Bodenplatte
Ein Keller ist gegen Aufpreis möglich!
+ Luft-Wasser-Wärmepumpe (deutscher Markenhersteller)
+ Fußbodenheizung
+ Kontrollierte Be- und Entlüftungsanlage für perfektes Wohlfühlklima
inkl. Wärmerückgewinnung
+ umfangreiche Elektroausstattung inkl. Installation
+ Photovoltaikanlage für die eigene Stromversorgung inkl. Stromspeicher
+ Moderne Holztreppe in verschiedenen Farben inkl. Edelstahl-Geländerstäbe
+ Materiallieferung Dämm- und Beplankungsmaterial
+ Architekten- und Ingenieurleistungen (Genehmigungsplanung, Bauantrag,
Statik, Wärmebedarfsberechnungen usw.)
+ Bodengutachten für die Untersuchung des Baugrundes
+ 5-fach-Versicherungsschutz (Bauleistung-, Bauherren-Haftpflicht-,
Feuerrohbau- und Wohngebäudeversicherung, Einkommensschutzversicherung)
+ 15 Monate Festpreisgarantie
+ Bezahlung des Hauses erst nach Baufortschritt (Abnahme der Leistungen)
Nicht im Preis enthalten:
Der genannte Preis versteht sich zuzüglich Bemusterungspaket (komplette Innenausstattung wie z.B. Fliesen, Türen, Sanitärobjekte, Bodenbeläge, usw.), Lohnkosten für den Trocken- und Innenausbau, Baunebenkosten (Erdarbeiten, Hausanschluss, Baustelleneinrichtung usw.), Außenanlage, Grunderwerbsteuer und Notarkosten.
Lage
Das nur 15 Minuten von Worms entfernte, Rheinhessische Wachenheim ist von Weinbergen eingebettet und beeindruckt im Ortskern durch die Burg Wachenheim. Nicht nur die Nähe zur Natur, zur Weinstraße, zu Wanderwegen und zur Pfrimm macht den Ort so interessant, sondern auch die gute Anbindung über die Bundesstraße 47 zur A61 und A6 ermöglicht eine gute Erreichbarkeit und bietet viel Comfort. Also gleichermaßen ideal für Pendler, Natur- und Weinliebhaber.
Sonstige Angaben
Dieses hochwertige Haus in modernster Bauweise schafft bleibende Werte. Unser Standard entspricht dem "KfW Effizienzhaus 55"! Das Effizienzhaus 40 und 40 Plus ist auch möglich!
Unsere zertifizierte Qualität:
- RAL-Gütezeichen von der Bundes-Gütegemeinschaft Montagebau und Fertighäuser e.V.
- Creditreform Bonitätszertifikat "Ausgezeichnete Bonität"
- DGNB Zertifikat für nachhaltiges Bauen (Deutsche Gesellschaft für nachhaltiges
Bauen)
- Urkunde der Qualitätsgemeinschaft Deutscher Fertigbau (QDF) für die Einhaltung der geforderten Gesamtqualitätsrichtlinien
- TÜV Rheinland Zertifikat für gesünderes Bauen mit dem Zertifikat für schadstoffgeprüfte Wohnhäuser
Außerdem bieten wir Ihnen auch andere Ausbaustufen an. Hierbei übernehmen wir für Sie die Koordination und die Durchführung des Ausbaus.
Nutzen Sie auch unseren Grundstücks- und Finanzierungsservice!
Rufen Sie mich an, ich helfe Ihnen gerne!
Grundriss
Erdgeschoss
>
>
Adresse
67591 Wachenheim
Interessante Orte
Preis- und Lageinformationen
Preistrend für Bestandsimmobilien in Wachenheim