Zeitlose Eleganz außen, Weite und ein besonderes Raumgefühl
innen – das ist unser Kickoff 22. Unter dem Satteldach warten
hier rund 130 m² auf zwei Ebenen darauf, bezogen und mit Leben
gefüllt zu werden.
Im Erdgeschoss ist Offenheit Trumpf: Hier
erstreckt sich der große Wohn-Ess-Koch-Bereich nahezu über
die gesamte Ebene, wird nur durch die zentral platzierte Treppe
von der Diele abgetrennt. Das Ergebnis: ein lichtdurchfluteter,
einladender und großzügiger Bereich zum Wohlfühlen und
Treffen. Im Eingangsbereich stehen zudem ein kleines Gäste-
WC sowie ein großer Hauswirtschaftsraum zur Verfügung. Über
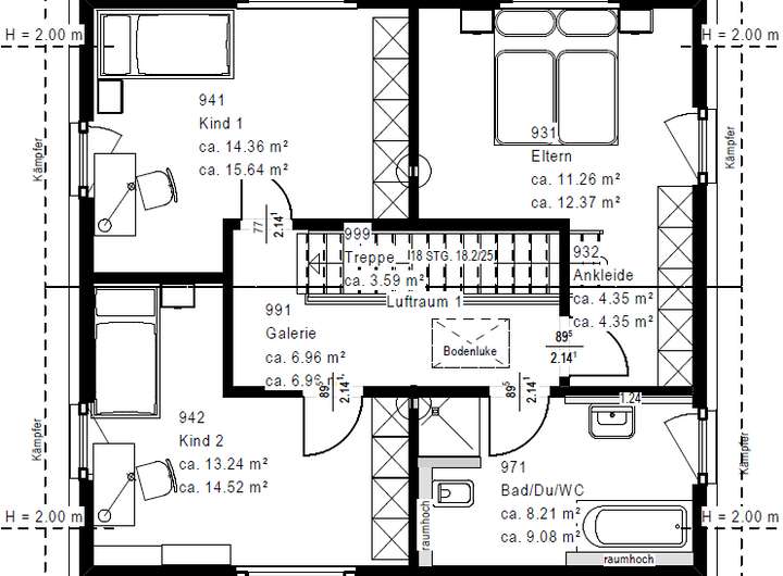
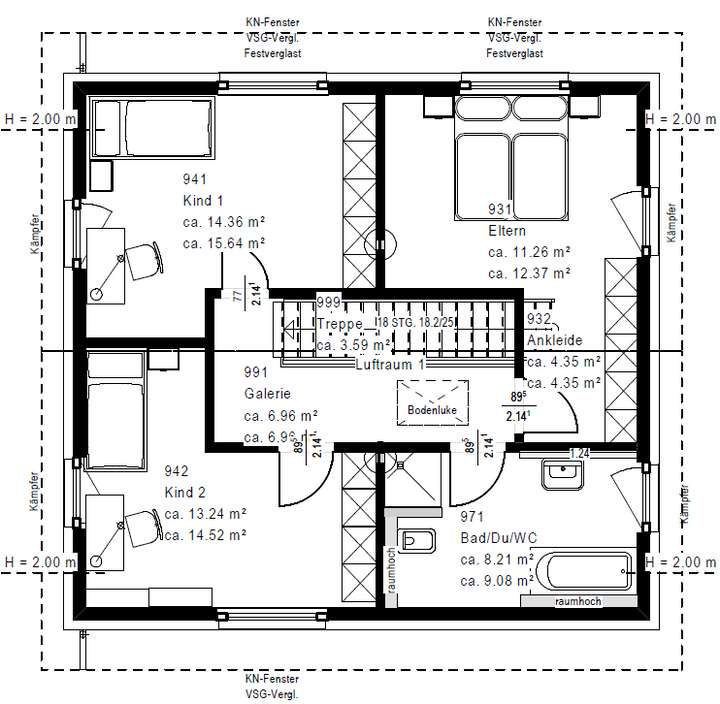
die mittig gelegene Treppe geht es ins Obergeschoss. Hier ist
ausreichend Raum für Eltern und bis zu zwei Kinder. Die Eltern
verfügen über ein großzügig geschnittenes Reich mit separatem
Ankleideraum, zwei große Kinderzimmer lassen ebenfalls keine
Wünsche offen. Abgerundet wird das Raumangebot in der oberen
Etage durch ein großes Badezimmer mit Dusche, Wanne und WC.
modernes, kompaktes Raumkonzept
61231 Bad Nauheim
Die vollständige Adresse der Immobilie erhalten Sie vom Anbieter.
Auf Karte anzeigen
Die vollständige Adresse der Immobilie erhalten Sie vom Anbieter.
Finanzierungszertifikat
In nur zwei Minuten zu Ihrem persönlichen Finanzierungszertifkat.
Infos
| Haustyp | Einfamilienhaus |
|---|---|
| Etagenzahl | 2 |
| Wohnfläche ca. | 131 m2 |
| Grundstücksfläche | 589 m2 |
| Bezugsfrei ab | 2026 |
| Zimmer | 4 |
| Schlafzimmer | 3 |
| Badezimmer | 1 |
Kosten
| Kaufpreis |
597.900 € |
|---|---|
| Provision | Nein |
Finanzierungsrechner:
Kaufpreis:
600.000 €
Eigenkapital:
600.000 €
Monatliche Rate
0 €
Effektiver Jahreszins
0 %
Sollzinsbindung
10 Jahre
Bausubstanz & Energieausweis
| Baujahr | unbekannt |
|---|---|
| Bauphase | Haus in Planung (projektiert) |
| Qualität der Austattung | Gehoben |
| Heizungsart | Wärmepumpe |
| Wesentliche Energieträger | Strom |
| Energieausweis | liegt vor |
| Energieausweistyp | Bedarfsausweis |
| Energieverbrauchskennwert | 24,0 kWh/(m²*a) |
| Energieeffizienzklasse | A+ |
24,0
kWh/(m²*a)
Energieeffizienzklasse A+
- A+
- A
- B
- C
- D
- E
- F
- G
- H
- 0
- 25
- 50
- 75
- 100
- 125
- 150
- 175
- 200
- 225
- >250
Beschreibung des Objekts
Ausstattung
z.B. als Ausbaustufe „malervorbereitet“
im unserem OKAL-Hauspreis enthalten sind unter anderem:
+ umfangreiche Architektenleistung
+ Energieausweis für Neubauten
+ Bodenplatte inklusive Bodengutachten
+ Lüftungsheizung (Wärmepumpe) PROXON
kontrollierte Be- / Entlüftung mit Wärmerückgewinnung
+ Dimension 2,80 im Erdgeschoß
- mehr Raumhöhe (ca. 2,80 m)
- höhere Fenster
- höhere Aussen- und Innentüren
+vorgespachtelte Wände u. Decken
+ Bäder gefliest
+ Fenster/ Türen Wärmeschutz-Verglasung
+ Elektrische Aluminiumrollläden
+ Somfy TaHoma-Box
+ Zertifizierte Nachhaltigkeit
+ Umfangreiches Versicherungspaket
+ Festpreisgarantie 22 Monate
+ Alles aus einer Hand
Grundstückpreis (Preis ist einkalkuliert, jedoch können Sie über mich z.Z. nicht direkt das Grundstück erwerben!)
OKAL bietet Ihnen aber auch einen kostenfreien Grundstückservice an bzw. unterstützt Sie aktiv bei der Grundstücksuche.
Zuzüglich Baunebenkosten (Notarkosten, Erdaushub, Einrichtung der Baustelle, Versorgungsleitungen usw.).
Lage
Bad Nauheim
Sonstige Angaben
Kontaktieren Sie mich um von unserer aktuellen Aktion zu profitieren.
Die in diesem Inserat enthaltenen Bilder und Grundrisse stellen Muster dar, die von der späteren Ausführung Ihres Hauses abweichen können, da jedes OKAL-Haus individuell für Sie geplant und ausgestattet wird.
Weitere Dokumente
Prospekt_neue_ErstinformationOKAL Ausbaustufe Sommer 2021
Grundriss
Kick Off 22_Grundriss EG
>
>
Kick Off 22_Grundriss DG
>
>
Kick Off 22_Schnitt
>
>
Adresse
61231 Bad Nauheim
Interessante Orte
Preis- und Lageinformationen
Preistrend für Bestandsimmobilien in Bad Nauheim