Lassen Sie sich von diesem charmanten Neubau-Bungalow begeistern! Auf einem idyllisch gelegenen Grundstück in Petkum entsteht bis 2026 ein attraktives Wohnensemble mit insgesamt 13 hochwertigen Bungalows – realisiert von einem renommierten regionalen Bauunternehmen. Die Kaufpreise bewegen sich je nach Lage zwischen 285.000 € und 325.000 €. Die äußerst ansprechende Raumaufteilung sowie die bodentiefen Fenster, lassen die ca. 87qm große Wohnfläche lichtdurchflutet und weitläufig erscheinen. Das pflegeleicht angelegte Grundstück bemisst ca. 350qm. Jede Bungalowhaushälfte verfügt über einen eigenen Carport nebst angegliedertem Abstellraum und eine angelegte Terrasse. Die Küche ist als offene Wohnküche geplant und lädt zum gemeinschaftlichen Kochen und Verweilen ein. Eine Küche ist nicht im Kaufpreis enthalten. Der über die Bodentreppe erreichbare Dachboden ist ebenfalls sehr großflächig und bietet Ihnen ausreichend Abstellmöglichkeiten. Die Immobilie wird nach den aktuellen, energetischen Richtlinien eines KFW55 Hauses erstellt. Standardmäßig verfügt der Bungalow über folgende Ausstattung: Elektrische Jalousien, Dreifachverglaste Fenster, Fußbodenheizung, Raufaser tapeziert, hochwertige Fliesen etc. Eine ausführliche Baubeschreibung erhalten
Sie gerne auf Nachfrage. Sonderwünsche können gegen Aufpreis und sofern dies aufgrund des Baufortschrittes noch möglich ist, umgesetzt werden. Aufgrund der barrierefreien Anordnung der Räumlichkeiten eignet sich dieser Bungalow ideal als Altersruhesitz. Beheizt wird das Objekt durch eine Luft-Wärme-Pumpe. Ein Objekt für Menschen die das "ebenerdige Wohnen" bevorzugen. Zögern Sie nicht uns zu kontaktieren und vereinbaren Sie gerne einen Besichtigungstermin für das baugleiche Musterhaus.
Petkum-Ems-Seitenkanal! Schlüsselfertiger Neubau-Bungalow mit Terrasse und Gartenanlage in ruhiger W
26725 Emden
Die vollständige Adresse der Immobilie erhalten Sie vom Anbieter.
Auf Karte anzeigen
Die vollständige Adresse der Immobilie erhalten Sie vom Anbieter.
Finanzierungszertifikat
In nur zwei Minuten zu Ihrem persönlichen Finanzierungszertifkat.
Infos
| Haustyp | Einfamilienhaus |
|---|---|
| Wohnfläche ca. | 87 m2 |
| Grundstücksfläche | 350 m2 |
| Bezugsfrei ab | Fertigstellung 2026 |
| Zimmer | 3 |
| Schlafzimmer | 2 |
| Badezimmer | 1 |
Kosten
| Kaufpreis |
290.000 € |
|---|---|
| Provision |
Die Maklerprovision beträgt für den Käufer 3,57% vom Kaufpreis inkl. ges. MwSt.. |
Finanzierungsrechner:
Kaufpreis:
600.000 €
Eigenkapital:
600.000 €
Monatliche Rate
0 €
Effektiver Jahreszins
0 %
Sollzinsbindung
10 Jahre
Bausubstanz & Energieausweis
| Baujahr | 2026 |
|---|---|
| Objektzustand | Erstbezug |
| Heizungsart | Fußbodenheizung |
| Energieausweis | liegt vor |
| Energieausweistyp | Bedarfsausweis |
| Energieverbrauchskennwert | 36,4 kWh/(m²*a) |
| Energieeffizienzklasse | A |
36,4
kWh/(m²*a)
Energieeffizienzklasse A
- A+
- A
- B
- C
- D
- E
- F
- G
- H
- 0
- 25
- 50
- 75
- 100
- 125
- 150
- 175
- 200
- 225
- >250
Beschreibung des Objekts
Ausstattung
Aufstellung der Besonderheiten:
-Schlüsselfertige Herstellung 2026
-Dreifachverglaste Fenster mit elektrischen Jalousien
-Fußbodenheizung komplett
-Hochwertige Fliesen im Format 30/60
-Malerarbeiten (Raufaser)
-Terrasse und Einfahrt gepflastert
-Luft/ Wasser Wärmepumpe - keine Gaskosten
-Carport-Einstellplatz
Lage
26725 Emden OT. Petkum (Ruhige, zentrale Wohnlage, gute Verkehrsanbindung zur A-31, zahlreiche Einkaufsmöglichkeiten, Edeka, Aldi, Bäcker, Banken, Apotheken etc. in der Nähe)
Sonstige Angaben
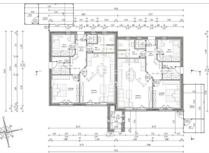
Grundstück:ca.350qm (Gepflasterte Auffahrt und Terrasse, Carport mit Abstellraum)
Gebäude: EG: Flur/Diele, Gäste WC, Duschbad mit WC, Gästezimmer, HWR, offener Wohn-/Essbereich mit Küchenanschlüssen und Zugang zur Terrasse, Abstellraum, Schlafzimmer
DG: Stauraum
Gesamt: Wohnfläche ca. 87qm
Grundriss
EG
>
>
OG
>
>
Adresse
26725 Emden
Interessante Orte
Preis- und Lageinformationen
Preistrend für Bestandsimmobilien in Petkum