Im wunderbar grünen Sasel in der reinen Anwohnerstraße Dannenrüsch entstehen auf einem 1.339 m² großen Grundstück zwei Doppelhäuser mit insgesamt vier Wohneinheiten. Das hier angebotene "Haus 2" verfügt über 5,5 Zimmer auf 134,90 m² Wohnfläche. Im Erdgeschoss werden Sie von einem großzügigen Entrée empfangen. Von hier gelangen Sie in die offene Küche sowie den Ess- und Wohnbereich. Die bodentiefen Fenster eröffnen den Blick in den eigenen Garten und sorgen für Helligkeit und ein entspanntes Raumgefühl. Im Erdgeschoss finden Sie noch einen Abstellraum, ein Gäste-WC und den Hauswirtschafts- und Technikraum.
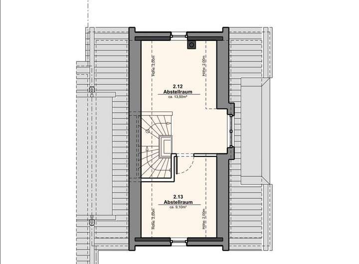
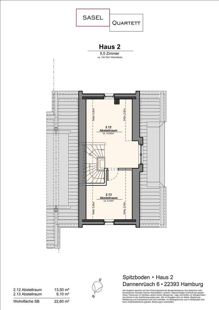
Im Obergeschoss befindet sich das Elternschlafzimmer und das helle Bad mit Doppelwaschtisch, Dusche und Badewanne. Die zwei Kinderzimmer mit je ca. 13 m² schaffen Platz für Ihre Familie. Im Spitzboden finden Sie zusätzlichen Raum für Hobbys oder ein Homeoffice.
Ihr privater Garten und die Terrasse bieten Ihnen die Möglichkeit, im Freien zu entspannen und die ruhige Lage zu genießen. Die Außenanlagen inkl. Terrasse, Rollrasen und Hecken sind im Kaufpreis enthalten.
Zum Haus gehört selbstverständlich auch noch ein PKW-Stellplatz, zu dem eine eigene Auffahrt führt, was neben der Architektur zusätzlich den Charme und die Privatsphäre eines Einfamilienhauses schafft.
Das Sasel-Quartett steht für nachhaltiges Wohnen der Zukunft. Mit der Energieeffizienzklasse KfW 40 und einer innovativen Wärmepumpen-Heizung sind Sie nicht nur umweltfreundlich unterwegs, sondern auch bestens gerüstet für kommende Energieanforderungen. Dieser Standard erreicht einen Energiewert von A+.
Als Option kann für einen Mehrpreis von 50.000 € auch die Energieeffizienzklasse KfW 40 QNG erreicht werden. Dieser Energiestandard wird zusätzlich von der KFW mit einem zinsgünstigeren Darlehen in Höhe von 150.000 € gefördert.
Nähere Informationen zu Ihrem "Familientraum" gewünscht? Kontaktieren Sie uns noch heute, um weitere Details zu erfahren und den Weg zu Ihrem Traumhaus zu ebnen.
Ihr Wohntraum 2026 - Doppelhaushälfte im modernen Stil eines Einfamilienhauses | KfW-40-PLUS |
Dannenrüsch 6b,
22393 Hamburg
Auf Karte anzeigen
Finanzierungszertifikat
In nur zwei Minuten zu Ihrem persönlichen Finanzierungszertifkat.
Infos
| Haustyp | Doppelhaushaelfte |
|---|---|
| Etagenzahl | 3 |
| Wohnfläche ca. | 134 m2 |
| Grundstücksfläche | 313 m2 |
| Bezugsfrei ab | 30.09.2026 |
| Zimmer | 5,5 |
| Schlafzimmer | 4 |
| Badezimmer | 2 |
| Anzahl Garage/Stellplatz | 1 |
Kosten
| Kaufpreis |
959.000 € |
|---|---|
| Provision | Nein |
Finanzierungsrechner:
Kaufpreis:
600.000 €
Eigenkapital:
600.000 €
Monatliche Rate
0 €
Effektiver Jahreszins
0 %
Sollzinsbindung
10 Jahre
Bausubstanz & Energieausweis
| Baujahr | 2026 |
|---|---|
| Bauphase | Haus in Planung (projektiert) |
| Objektzustand | Erstbezug |
| Qualität der Austattung | Gehoben |
| Heizungsart | Wärmepumpe |
| Wesentliche Energieträger | Umweltwärme |
| Energieausweis | liegt vor |
| Energieausweistyp | Bedarfsausweis |
| Energieverbrauchskennwert | 23,0 kWh/(m²*a) |
| Energieeffizienzklasse | A+ |
23,0
kWh/(m²*a)
Energieeffizienzklasse A+
- A+
- A
- B
- C
- D
- E
- F
- G
- H
- 0
- 25
- 50
- 75
- 100
- 125
- 150
- 175
- 200
- 225
- >250
Beschreibung des Objekts
Ausstattung
KEINE VERSTECKTEN ZUSATZKOSTEN!!!
- eigener Privatgarten
- eigene Zufahrt inkl. Stellplatz
- Außenanlagen inkl. Rollrasen im Kaufpreis enthalten
- moderne Architektur mit hochwertiger Klinkerfassade
- 2,75 m Deckenhöhe im Erdgeschoss
- Fussbodenheizung
- 3-fach verglaste Fenster
- Wärmepumpe mit Wärme-Rückgewinnung und Photovoltaikanlage
- Echtholzparkett in allen Wohnräumen
- moderne Bäder mit Villeroy-Boch Fliesen
- inkl. aller Anschlusskosten
- Rollläden an allen Fenstern
- Kaminanschluss optional gegen Mehrpreis möglich
= einfach Einziehen und Ihren Wohntraum genießen
Lage
Sasel ist ein eher ruhiger und grünes Stadtteil im Hamburger Norden, der zum Bezirk Wandsbek gehört. Der Alsterlauf, welcher den Stadtteil durchfließt, ist ein beliebtes Ausflugsziel für Spaziergänger und Radfahrer. Sasel ist geprägt von vielen Einfamilienhäusern und Villen, die inmitten von grünen Gärten und Parks liegen.
Die Infrastruktur in Sasel ist gut ausgebaut. Es gibt mehrere Einkaufsmöglichkeiten, Schulen, Kindergärten und Ärzte in der Umgebung. Auch die Anbindung an den ÖPNV ist gut, sodass man schnell und unkompliziert in die Hamburger Innenstadt gelangen kann. Fussläufig vom Objekt erreichen Sie einen Supermarkt, Bäcker und das im Alstertal sehr bekannte Restaurant Henssler at Home. Das Alstertaler Einkaufszentrum (AEZ) ist ca. 2 km entfernt und zählt zu den besten Einkaufszentren in Hamburg.
In Sasel findet man auch einige kulturelle Angebote, wie z.B. das Sasel-Haus, in dem regelmäßig Veranstaltungen wie Konzerte, Lesungen und Ausstellungen stattfinden.
Wer gerne in der Natur unterwegs ist, findet in Sasel viele Möglichkeiten zum Wandern, Radfahren oder auch Reiten. Auch der nahegelegene Alsterwanderweg lädt zu ausgedehnten Spaziergängen ein.
Insgesamt ist Sasel ein beliebter Wohnort für Familien und Naturverbundene, die die Nähe zur Großstadt schätzen, aber dennoch in einer ruhigen und grünen Umgebung leben möchten.
Sonstige Angaben
UNSER SERVICE FÜR SIE ALS EIGENTÜMER:
Planen Sie den Verkauf oder die Vermietung Ihrer bestehenden Immobilie, so ist es für Sie wichtig, deren Marktwert zu kennen. Lassen Sie kostenfrei und unverbindlich den aktuellen Wert Ihrer Immobilie professionell einschätzen. Mit unserer langjährigen Erfahrung stehen wir Ihnen gern persönlich jederzeit zur Verfügung.
Wir freuen uns auf den Kontakt mit Ihnen.
UNSER SERVICE FÜR SIE ALS SUCHENDE:
Die hier angebotene Immobilien passt nicht zu 100% zu Ihren Vorstellungen? Nutzen Sie unseren Service für Suchende und tragen Sie Ihre Suchkriterien kostenlos und unverbindlich auf unserer Internetseite ein. Ihre Traumimmobilie ist vielleicht nur wenige Klicks von Ihnen entfernt. Wir melden uns sofort bei Ihnen, wenn wir eine Immobilie, die zu Ihren Kriterien passt im Angebot haben oder in Zukunft herein bekommen.
Weitere Dokumente
240829 H2 Grundrissvariation mGrundriss
Grundriss SB
>
>
Haus 2 Grundriss EG mit Duschb
>
>
Grundriss DG
>
>
Adresse
Dannenrüsch 6b, 22393 Hamburg
Interessante Orte
Preis- und Lageinformationen
Preistrend für Bestandsimmobilien in Sasel